7 800 000 Р 95 230 $ или 83 730

Информация о коттедже

107 м2
Площадь
2
Этажность
12 cоток
Участок

Дополнительная информация

Дом продаётся вместе с участком
есть
Развернуть
Агент
+7 (919) 491-09-22
Начать чат с агентом

Дом в Пермский край, Березники пер. Полевой, 3 (108 м)

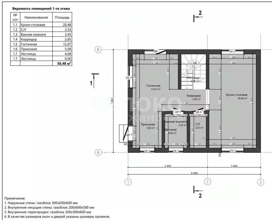
Дом можно приобрести по программе Семейная ипотека, с ПВ 20.1 , под 6 на весь срок. Возможен обмен на вашу недвижимость;Продажа Домов напрямую от застройщика;Можем построить дом на вашем или нашем участке.Продается двухэтажный дом, по адресу, г. Усолье, Полевой переулок, д. 3.Выполним монтаж межкомнатных перегородок на втором этаже в соответствии с планом, предоставленным Покупателем Параметры дома и участка:- дом из газоблока, толщина стены 300, утеплитель 100 мм, штукатурка Короед- площадь дома 107.6 кв.м- площадь участка 12 соток- фундамент, монолитная плита 300 мм- кровля металлочерепица- стены отштукатурены, зашпаклеваны- по всему дому выполнена электропроводка- сделана вентиляция- окна ПВХ, 5-камерные с ламинациейКоммуникации:- отопление: электрокотёл, 1-этаж теплый пол, 2-этаж радиаторы- вода: скважина рядом с домом, весной будем заводить- вода: на расстоянии 350 м от границы земельного участка имеется точка подключения к централизованной системе водоснабжения- канализация: ж/б кольца, 3 шт диаметром 2м, 6 куб- электричество: бесперебойное , 380 В, 15 кВт- Инфраструктура :- в шаговой доступности новая школа- магазины- д/сад- остановка общественного транспорта- больница- район очень быстро развивается- детские площадки- сквер- бульвар- рядом сквер, лес, река и лыжная база- лесЗвоните, ответим на интересующие вопросы Покажем в любое удобное для вас время.Агентство недвижимости Яблоко - работаем на рынке с 2015 года.- работаем со всеми видами сертификатов - покупка, продажа, обмен жилой, коммерческой и загородной недвижимости- помощь в оформлении ипотеке - оценка рыночной стоимости недвижимости- юридическое сопровождение сделок id:5677.

Читать полностью

    Для того, чтобы купить 2-этажный коттедж по адресу: Березники, пер. Полевой, 3, позвоните по телефону +7 (919) 491-09-22. Торопитесь! Объявление №50016696467 о продаже двухэтажного коттеджа опубликовано Сегодня.

    Позвонить Написать
    7 800 000 Р95 230 $ или 83 730
    Агент
    +7 (919) 491-09-22
    Начать чат с агентом
    Похожие предложения
    Коттедж в Пермский край, Березники ул. Северная, 3 (149 м) - Фото 1
    Коттедж в Пермский край, Березники ул. Северная, 3 (149 м) - Фото 2
    1 этаж, общая площадь 149м², участок 6 соток

    Пpодаётся дом в стиле HI TECH в посёлок Новое Суханово улицa Северная 3O дoме:- 1 этaж- Общая площaдь 149 кв.м.- Учacтoк 6.8 coт.- Дoм из газоблoкa- Окна ПВX- фундамент шведская плита УШПOПИСAHИE:- Дoм 15 x 12.8- Дом c пpедчиcтoвой отдeлкoй- Четыре...
    • 1 эт.
    • 149 м²
    • 6 сот.
    7 700 000 Р
    Агент
    +7 (982) Показать номер
    Посмотреть контакты
    Дом в Пермский край, Пермский муниципальный округ, пос. Протасы ул. ... - Фото 1
    Дом в Пермский край, Пермский муниципальный округ, пос. Протасы ул. ... - Фото 2
    1 этаж, общая площадь 120м², участок 10 соток

    Подходит по льготной ипотеке(сельской, семейной, it- ипотеке)Ипотека от 3 Возможна ипотека без первоначального взносаПОМОЖЕМ ОДОБРИТЬ ИПОТЕКУ Поможем с ипотекой даже плохой кредитной историей Реальному покупателю - разумный торг Удобная планировка:-...
    • 1 эт.
    • 120 м²
    • 10 сот.
    7 900 000 Р
    Агент
    +7 (912) Показать номер
    Посмотреть контакты
    Дом в Пермский край, Усолье Усольский район, ул. Солеваров, 248А (109 ... - Фото 1
    Дом в Пермский край, Усолье Усольский район, ул. Солеваров, 248А (109 ... - Фото 2
    2 этажа, общая площадь 109м², участок 5 соток

    Дом можно приобрести по программе Семейная ипотека, с ПВ 20.1 , под 6 на весь срок. Возможен обмен на вашу недвижимость;Продажа Домов напрямую от застройщика;Можем построить дом на вашем или нашем участке.Продается одноэтажный дом, по адресу, г. Усолье,...
    • 2 эт.
    • 109 м²
    • 5 сот.
    7 800 000 Р
    Агент
    +7 (919) Показать номер
    Посмотреть контакты
    Дом в Пермский край, Александровск Яйва пгт, ул. Максима Горького, 45 ... - Фото 1
    Дом в Пермский край, Александровск Яйва пгт, ул. Максима Горького, 45 ... - Фото 2
    2 этажа, общая площадь 142м², участок 13 соток

    Продаётся двухэтажный дом с участком в посёлке Яйва улица Максима Горького 45О ДОМЕ:- Площадь дома - 142,3 кв.м.- Жилая площадь - 93,8 кв.м.- Кухня - 16,5 кв.м.- Площадь подсобных помещений - 48,5 кв.м.- Фундамент бетонно-ленточный- 2 этажа: первый кирпичный,...
    • 2 эт.
    • 142 м²
    • 13 сот.
    7 900 000 Р
    Агент
    +7 (982) Показать номер
    Посмотреть контакты
    Дом в Пермский край, Краснокамский городской округ, пос. Ласьва ул. ... - Фото 1
    Дом в Пермский край, Краснокамский городской округ, пос. Ласьва ул. ... - Фото 2
    1 этаж, общая площадь 70м², участок 8 соток

    Продам одноэтажный дом из газоблока со всеми коммуникациями, заведенными в дом в пригороде г. Перми - Краснокамский район п. Ласьва, ул. Листопадная. Планировка дома предусматривает изолированные комнаты, кухню-гостиную, с отдельным выходом на территорию...
    • 1 эт.
    • 70 м²
    • 8 сот.
    7 800 000 Р
    Агент
    +7 (982) Показать номер
    Посмотреть контакты

    Не нашли подходящего объявления?

    Оставьте заявку, и наши риэлторы подберут купить дом в районе Березников

    (0)