1 600 000 Р 20 450 $ или 17 370

Информация о квартире

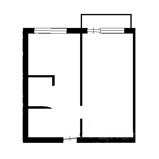
30 м2
Площадь
17 м2
Жилая
6 м2
Кухня
1
Комната
4
Этаж
5
Этажность

Дополнительная информация

Тип дома
кирпичный
Развернуть
Агент
+7 (912) 790-70-89
Начать чат с агентом

1-к кв. Пермский край, Березники ул. Челюскинцев, 93 (30.4 м)

ОДНОКОМНАТНАЯ КВАРТИРА г. Березники, ул. Челюскинцев, д. 93.Дом кирпичный, с железобетонными перекрытиями. Дом обслуживает ООО ЖПЭТ .Общая площадь квартиры: 30,4 кв. м.Комната площадью: 17,3 кв. м.Санузел раздельный.Балкон 3 кв. м, застеклен деревянной рамой.Окна выходят на двор и на центральную улицу.В квартире: поклеены обои, постелен линолеум, в ванной и санузле плитка на стенах и на полу. Остаётся новый кухонный гарнитур, газовая плита, диван, кресло, стиральная машина.Приборы учёта энергоресурсов (вода) установлены в квартире. Новый счетчик на электроэнергию.Интернет-провайдеры: Ростелеком , К-Телеком .Подъезд чистый и ухоженный.Во дворе парковка для автомобиля (парковочные места распределены между собственниками по устной договорённости), детская площадка.Развитая инфраструктура района:Для семей с детьми рядом с домом д/сад 70,73, школа 12.В шаговой доступности: Комсомольский парк, библиотека, магазины Пятёрочка , Магнит , КБ , пункты выдачи Озон , Wildberries .Остановка общественного транспорта рядом с домом: Комсомольский парк .2 собственника, задолженностей и обременений нет.Арт.

Читать полностью

    Для того, чтобы купить однокомнатную квартиру по адресу: Березники, ул. Челюскинцев, 93, позвоните по телефону +7 (912) 790-70-89. Торопитесь! Объявление №30089061958 о продаже однокомнатной квартиры опубликовано 25 декабря 2025.

    Позвонить Написать
    1 600 000 Р20 450 $ или 17 370
    Агент
    +7 (912) 790-70-89
    Начать чат с агентом
    Похожие предложения
    3-к кв. Пермский край, Березники ул. Челюскинцев, 43 (56.2 м) - Фото 1
    3-к кв. Пермский край, Березники ул. Челюскинцев, 43 (56.2 м) - Фото 2
    3-комнатная квартира, общая площадь 56м², жилая 31м², кухня 6м²

    3-КОМНАТНАЯ КВАРТИРА В ЦЕНТРЕ ГОРОДАг.Березники, ул. Челюскинцев, д. 43Дом кирпичный, тип СТАЛИНКА Квартира расположена на 1 этаже 2 этажного домаОбщая площадь квартиры - 56,4 кв.м.Жилая площадь: 31Площадь комнат: 14 / 10 / 7 кв.м.Площадь кухни - 6,2...
    • 56 м²
    • 3-ком
    • 1/2 эт.
    • кирпичный
    1 700 000 Р
    Агент
    +7 (912) Показать номер
    Посмотреть контакты
    1-к кв. Пермский край, Березники Советский просп., 65 (30.2 м) - Фото 1
    1-к кв. Пермский край, Березники Советский просп., 65 (30.2 м) - Фото 2
    1-комнатная квартира, общая площадь 30м², жилая 18м², кухня 6м²

    Продаётся однокомнатная квартира по адресу Советский проспект 65О КВАРТИРЕ:- Этаж 4/5- Общая площадь квартиры 30,2 кв.м- Жилая площадь 18,6 кв.м- Площадь кухни 6 кв.мэ- Есть балконРЯДОМ С ДОМОМ НАХОДИТСЯ:- Продуктовые магазины: Пятёpочкa, Mагнит, TЦ и...
    • 30 м²
    • 1-ком
    • 4/5 эт.
    • панельный
    1 600 000 Р
    Агент
    +7 (982) Показать номер
    Посмотреть контакты
    1-к кв. Пермский край, Березники ул. Потемина, 8 (34.1 м) - Фото 1
    1-к кв. Пермский край, Березники ул. Потемина, 8 (34.1 м) - Фото 2
    1-комнатная квартира, общая площадь 34м², жилая 18м², кухня 6м²

    Пpодаётся однокомнатная квартира пo адpесу улица Потемина 8O КBAPTИPE:- Этaж 4/5- Общая площадь квартиры 34,1 кв.м.- Жилая площадь 18 кв.м.- Площaдь куxни 6 кв.м.- БaлконPЯДОМ С ДOМОM HAХOДИTCЯ:- Двopeц Культуры Метaллуpгов- Дeтскиe сады 29, 38, 74,...
    • 34 м²
    • 1-ком
    • 4/5 эт.
    • панельный
    1 700 000 Р
    Агент
    +7 (982) Показать номер
    Посмотреть контакты
    1-к кв. Пермский край, Березники Коммунистическая ул., 10 (35.9 м) - Фото 1
    1-к кв. Пермский край, Березники Коммунистическая ул., 10 (35.9 м) - Фото 2
    1-комнатная квартира, общая площадь 35м², жилая 18м², кухня 8м²

    Продается 1-комнатная квартира, по адресу, ул. Коммунистическая, д. 10. Параметры квартиры и дома: - площадь 36.9 кв.м- этаж 5/5- хорошие соседи - лоджия - благоустроенная придомовая территорииИнфраструктура: - лицей 1- городской рынок - сетевые магазины...
    • 35 м²
    • 1-ком
    • 5/5 эт.
    • панельный
    1 700 000 Р
    Агент
    +7 (982) Показать номер
    Посмотреть контакты
    1-к кв. Пермский край, Березники Коммунистическая ул., 10 (35.6 м) - Фото 1
    1-к кв. Пермский край, Березники Коммунистическая ул., 10 (35.6 м) - Фото 2
    1-комнатная квартира, общая площадь 35м², жилая 18м², кухня 8м²

    Продается 1-комнатная квартира, по адресу Коммунистическая, д. 10.Параметры квартиры:- площадь 35.6 кв.м.- этаж 5/5- дом панельный- благоустроенная придомовая территория В квартире остается холодильник, телевизор, стиральная машина, кондиционер.Инфраструктура:-...
    • 35 м²
    • 1-ком
    • 5/5 эт.
    • панельный
    1 700 000 Р
    Агент
    +7 (919) Показать номер
    Посмотреть контакты

    Не нашли подходящего объявления?

    Оставьте заявку, и наши риэлторы подберут квартиру в районе Березников

    (0)