3 890 000 Р 50 440 $ или 42 730

Информация о квартире

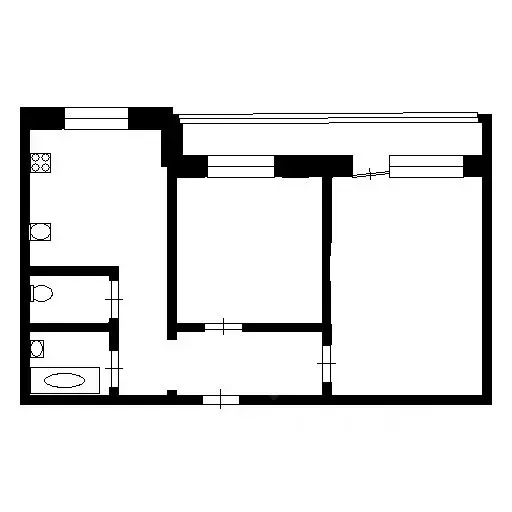
45 м2
Площадь
30 м2
Жилая
6 м2
Кухня
2
Комнаты
2
Этаж
5
Этажность
Развернуть
Агент
+7 (909) 729-37-57
Начать чат с агентом

2-комнатная квартира: Березники, улица Пятилетки, 104 (45 м)

Продается 2-комнатная квартира, по адресу ул. Пятилетки, д. 104.Параметры дома и квартиры:- площадь 45 кв.м.- этаж 2/5- стяжка полов по всей квартире- все стены отштукатурены- с/у совмещен- по всей квартире заменена электропроводка- радиаторы заменены- все стояки (холодное и горячее водоснабжение, канализация) в квартире заменены. На этажах выше и ниже также проведены аналогичные работы, вам не придется переживать из-за возможных протечек или внеплановых работ.Остается кухонный гарнитур, бытовая техника (варочная панель, духовой шкаф) не предусмотрена. В ванне комнате остается водонагреватель, умывальник, раковина, зеркало.Инфраструктура:- школа № 3, 12- д/сад- остановка общественного транспорта в 100 метрах- сетевые магазины монетка, магнит, пятерочкаО собственнике:- один взрослый собственникid:5708.

Читать полностью

    Для того, чтобы купить двухкомнатную квартиру по адресу: Березники, ул. Пятилетки, 104, позвоните по телефону +7 (909) 729-37-57. Торопитесь! Объявление №30093601350 о продаже двухкомнатной квартиры опубликовано 13 февраля 2026.

    Позвонить Написать
    3 890 000 Р50 440 $ или 42 730
    Агент
    +7 (909) 729-37-57
    Начать чат с агентом
    Похожие предложения
    2-к кв. Пермский край, Березники ул. Пятилетки, 104 (46.7 м) - Фото 1
    2-к кв. Пермский край, Березники ул. Пятилетки, 104 (46.7 м) - Фото 2
    2-комнатная квартира, общая площадь 46м², жилая 30м², кухня 6м²

    Продается 2-комнатная квартира, по адресу ул. Пятилетки, д. 104.Параметры дома и квартиры:- площадь 46.7 кв.м.- этаж 2/5- стяжка полов по всей квартире- все стены отштукатурены- с/у совмещен - по всей квартире заменена электропроводка- радиаторы заменены-...
    • 46 м²
    • 2-ком
    • 2/5 эт.
    • панельный
    3 890 000 Р
    Агент
    +7 (919) Показать номер
    Посмотреть контакты
    3-к кв. Пермский край, Березники ул. Олега Кошевого, 11 (60.7 м) - Фото 1
    3-к кв. Пермский край, Березники ул. Олега Кошевого, 11 (60.7 м) - Фото 2
    3-комнатная квартира, общая площадь 60м²

    Продается теплая квартира на третьем этаже кирпичного дома. Три изолированные комнаты, окна ПВХ, трубы заменены, установлены счетчики на воду, сделан косметический ремонт, натяжные потолки. Квартира оборудована четырьмя небольшими кладовками для хранения...
    • 60 м²
    • 3-ком
    • 3/3 эт.
    • кирпичный
    3 800 000 Р
    Агент
    +7 (982) Показать номер
    Посмотреть контакты
    3-к кв. Пермский край, Березники ул. Химиков, 8 (74.3 м) - Фото 1
    3-к кв. Пермский край, Березники ул. Химиков, 8 (74.3 м) - Фото 2
    3-комнатная квартира, общая площадь 74м², жилая 58м², кухня 9м²

    Продается трехкомнатная сталинка в историческом центре города по адресу Химиков 8О КВАРТИРЕ:- Этаж - 3/5, не торцевая- Общая площадь 74,3 кв.м- Кухня - 9 кв.м- Дом обслуживает УК ООО Колибри РЯДОМ С ДОМОМ НАХОДИТСЯ:- Детский сад 37- Школы 1, 2- Медицинское...
    • 74 м²
    • 3-ком
    • 3/5 эт.
    • кирпичный
    4 000 000 Р
    Агент
    +7 (982) Показать номер
    Посмотреть контакты
    3-к кв. Пермский край, Березники ул. Мира, 106 (64.5 м) - Фото 1
    3-к кв. Пермский край, Березники ул. Мира, 106 (64.5 м) - Фото 2
    3-комнатная квартира, общая площадь 64м², жилая 45м², кухня 8м²

    Продается 3-комнатная квартира в кирпичном доме, по адресу: ул. Мира, д. 106.Параметры дома и квартиры:- дом панельный- этаж 5/9- общая площадь 64,5 кв.м- кухня 8,2 кв.мИнформация о квартире:- квартира теплая, солнечная- сделан косметический ремонт -...
    • 64 м²
    • 3-ком
    • 5/9 эт.
    • панельный
    4 000 000 Р
    Агент
    +7 (982) Показать номер
    Посмотреть контакты
    3-к кв. Пермский край, Березники ул. Парижской Коммуны, 54 (60.0 м) - Фото 1
    3-к кв. Пермский край, Березники ул. Парижской Коммуны, 54 (60.0 м) - Фото 2
    3-комнатная квартира, общая площадь 60м², жилая 40м², кухня 12м²

    Продается 3-комнатная квартира в кирпичном доме, по адресу: ул. Парижской коммуны, д. 54.Параметры дома и квартиры:- дом кирпичный- этаж 5/5- общая площадь 59,9 кв.м- кухня 16 кв.мИнформация о квартире:- квартира теплая, солнечная- сделан косметический...
    • 60 м²
    • 3-ком
    • 5/5 эт.
    • кирпичный
    3 850 000 Р
    Агент
    +7 (982) Показать номер
    Посмотреть контакты

    Не нашли подходящего объявления?

    Оставьте заявку, и наши риэлторы подберут квартиру в районе Березников

    (0)