32 940 000 Р 429 200 $ или 362 500

Информация об помещении

3
Этаж

Состояние и оснащение

Количество этажей
3
Развернуть
Агент
+7 (982) 320-30-48
Начать чат с агентом

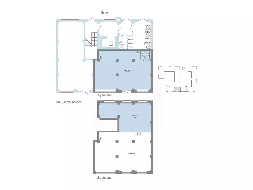
Помещение свободного назначения в Пермский край, Чайковский ул. ...

Продаются нежилые помещение общей площадью 1178,3 м2, расположенные в подвале 1-3 этажах. Под офис, услуги, общепит.земельный участок в аренде.В здании есть иной собственник-Почта России. Коммуникации центральные.Год постройки 1965; Этажность 3 Высота этажа, 2.55м, фундамент Железобетонный; стены Кирпичные; кровля 3-х сл. рубероид ковер на битумной мастике;Есть возможность размещения рекламной конструкции на фасаде здания, подключения высокоскоростного интернета, городского номера телефона..Есть парковка, остановки общественного транспорта в шаговой доступности.В окружении развитая социальная и коммерческая инфраструктура, жилые дома.Есть возможность размещения рекламной конструкции на фасаде здания, подключения высокоскоростного интернета, городского номера телефона.Продажа через аукцион. От собственника без посредников. Цена указана с учетом НДС 22 . Предложение не является публичной офертой.Звоните, ответим на все вопросы Просьба звонить в рабочее время пн-пт 9:00-17:00

Читать полностью
    Позвонить Написать
    32 940 000 Р429 200 $ или 362 500
    Агент
    +7 (982) 320-30-48
    Начать чат с агентом
    Похожие предложения
    Помещение свободного назначения в Пермский край, Пермь ул. Окулова, 14 ... - Фото 1
    Помещение свободного назначения в Пермский край, Пермь ул. Окулова, 14 ... - Фото 2
    Помещение под офиc 100 м2 с видом на Каму, на 7 этажe МФК Окулова 14 от UDS.Историческая часть Перми, на набережной Камы, рядом с садом им. Гоголя. Удобные пешеходные и подъездные пути, рядом остановка общественного транспорта, 5 минут на автомобиле до...
    • 7/12 эт.
    32 994 291 Р
    Агент
    +7 (912) Показать номер
    Посмотреть контакты
    Помещение свободного назначения в Пермский край, Пермь ул. Окулова, 14 ... - Фото 1
    Помещение свободного назначения в Пермский край, Пермь ул. Окулова, 14 ... - Фото 2
    Помещение под офиc 85 м2 с видом на Каму, на 7 этажe МФК Окулова 14 от UDS.Историческая часть Перми, на набережной Камы, рядом с садом им. Гоголя. Удобные пешеходные и подъездные пути, рядом остановка общественного транспорта, 5 минут на автомобиле до...
    • 7/12 эт.
    33 276 999 Р
    Агент
    +7 (912) Показать номер
    Посмотреть контакты
    Помещение свободного назначения в Пермский край, Пермь ул. Окулова, 14 ... - Фото 1
    Помещение свободного назначения в Пермский край, Пермь ул. Окулова, 14 ... - Фото 2
    Помещение под офиc 100 м2 с видом на Каму, на 8 этажe МФК Окулова 14 от UDS.Историческая часть Перми, на набережной Камы, рядом с садом им. Гоголя. Удобные пешеходные и подъездные пути, рядом остановка общественного транспорта, 5 минут на автомобиле до...
    • 8/12 эт.
    33 614 938 Р
    Агент
    +7 (912) Показать номер
    Посмотреть контакты
    Помещение свободного назначения в Пермский край, Пермь ул. Окулова, 14 ... - Фото 1
    Помещение свободного назначения в Пермский край, Пермь ул. Окулова, 14 ... - Фото 2
    Помещение под офиc 85 м2 с видом на Каму, на 8 этажe МФК Окулова 14 от UDS.Историческая часть Перми, на набережной Камы, рядом с садом им. Гоголя. Удобные пешеходные и подъездные пути, рядом остановка общественного транспорта, 5 минут на автомобиле до...
    • 8/12 эт.
    33 923 155 Р
    Агент
    +7 (912) Показать номер
    Посмотреть контакты
    Помещение свободного назначения в Пермский край, Пермь ул. Окулова, 14 ... - Фото 1
    Помещение свободного назначения в Пермский край, Пермь ул. Окулова, 14 ... - Фото 2
    Помещение под офиc 85 м2 с видом на Каму, на 6 этажe МФК Окулова 14 от UDS.Историческая часть Перми, на набережной Камы, рядом с садом им. Гоголя. Удобные пешеходные и подъездные пути, рядом остановка общественного транспорта, 5 минут на автомобиле до...
    • 6/12 эт.
    32 307 765 Р
    Агент
    +7 (912) Показать номер
    Посмотреть контакты

    Не нашли подходящего объявления?

    Оставьте заявку, и наши риэлторы подберут псн в районе Чайковского

    (0)