Реализация объекта недвижимости приостановлена

Информация о квартире

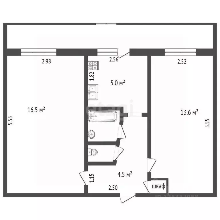
43.0 м2
Площадь
5.0 м2
Кухня
2
Комнаты
1
Этаж
5
Этажность
Развернуть

2-к кв. Пермский край, Чернушка Юбилейная ул., 22 (43.4 м)

Продается двухкомнатная квартира общей площадью 43,4 кв. м на первом этаже в центре города. Объект представляет собой отличную возможность для инвестирования или создания жилья по собственному проекту, так как реализуется без внутренней отделки. Планировка практичная: изолированные комнаты и раздельный санузел. Ключевым преимуществом является большая застекленная лоджия длиной 8 метров, выполненная из металлопрофиля и занимающая всю ширину квартиры. Выход на нее организован из кухни, что позволяет легко расширить жилое пространство или обустроить зону для отдыха. Все окна в квартире заменены на современные пластиковые, установлена железная входная дверь.Расположение квартиры в центре дома на тихой стороне обеспечивает максимальный уровень спокойствия, окна выходят в сторону двора. Дом окружен всей необходимой инфраструктурой: в шаговой доступности находятся магазины, аптека, пункт выдачи Ozon, школа 5 и детский сад 4. Транспортная доступность высокая. С юридической стороны все чисто: один взрослый собственник, полный пакет документов готов к немедленной сделке. Торг уместен. Предоставляется бесплатная консультация по ипотечному кредитованию и полное юридическое сопровождение для гарантии безопасности. Данный объект — это рациональный выбор для тех, кто ищет качественную основу для будущего дома в самом сердце города. Код пользователя: 183582Номер в базе: 9641703

Читать полностью

    Реализация объекта недвижимости приостановлена

    Не нашли подходящего объявления?

    Оставьте заявку, и наши риэлторы подберут квартиру в районе Чернушки

    (0)