Реализация объекта недвижимости приостановлена

Информация о квартире

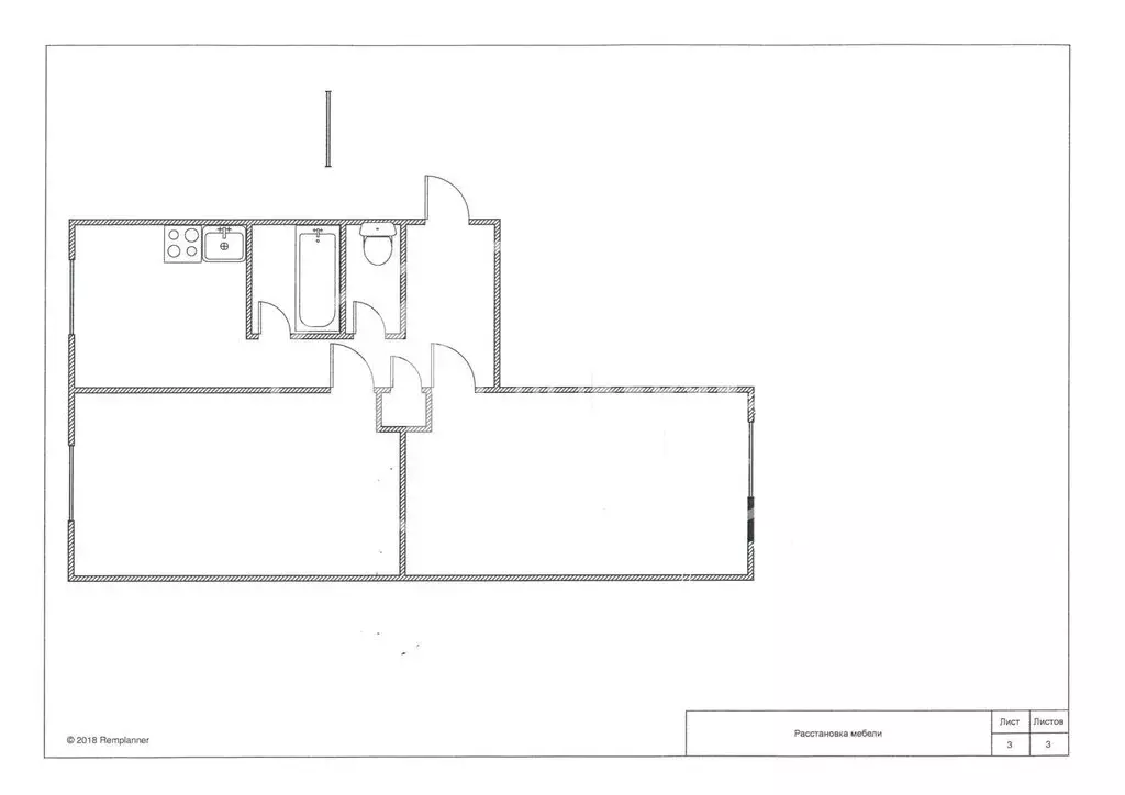
46.0 м2
Площадь
2
Комнаты
1
Этаж
5
Этажность
Развернуть

2-комнатная квартира: Чусовой, улица 50 лет ВЛКСМ, 26 (46.4 м)

Продается двухкомнатная квартира район школы №7. Сделана перепланировка совмещен туалет с ванной. В квартире сделан хороший ремонт: на всех окнах стекло-пакеты, натяжные потолки везде на полу ламинат, санузел-кафель, новая сантехника и входная дверь. Полная юридическая проверка и сопровождения сделки на всех этапов. По окончанию сделки компания выдает гарантийный сертификат. В подарок остается встроенная кухня и стиральная машинка. Рассматриваем обмен на однокомнатную квартиру.

Читать полностью

    Реализация объекта недвижимости приостановлена

    Не нашли подходящего объявления?

    Оставьте заявку, и наши риэлторы подберут квартиру в районе Чусового

    (0)