850 000 Р 10 920 $ или 9 390

Информация о квартире

59 м2
Площадь
38 м2
Жилая
6 м2
Кухня
3
Комнаты
1
Этаж
2
Этажность

Дополнительная информация

Тип дома
блочный
Развернуть
Агент
+7 (982) 470-34-03
Начать чат с агентом

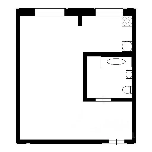
3-к кв. Пермский край, Губаха ул. Газеты Правда, 23 (59.3 м)

Продаётся уютная трехкомнатная квартира площадью 59.3 квадратных метров на первом этаже двухэтажного блочного дома, расположенного по адресу: город Губаха, улица Газеты Правда, 23. Расположение дома особенно удачно благодаря близости различных объектов обслуживания и развлечений. Рядом находятся салон красоты Радуга, банно-оздоровительный комплекс, салон Территория красоты, студия красоты Элегия и парикмахерская TaiMyRai. Для повседневных покупок и приобретения продуктов питания рядом расположен магазин Куединского мясокомбината.Для активного времяпрепровождения и прогулок на свежем воздухе поблизости имеются парк и торговый центр, предлагающий широкий выбор товаров и услуг.Квартира требует ремонта, что является прекрасной возможностью обустроить жильё согласно вашим личным предпочтениям и вкусам, окно ПВХ установлено только на кухне. Сан/узел облагорожен современными панелями, установлена качественная входная дверь.

Читать полностью

    Для того, чтобы купить трехкомнатную квартиру по адресу: Губаха, ул. Газеты Правда, 23, позвоните по телефону +7 (982) 470-34-03. Торопитесь! Объявление №30091338775 о продаже трехкомнатной квартиры опубликовано 04 января 2026.

    Позвонить Написать
    850 000 Р10 920 $ или 9 390
    Агент
    +7 (982) 470-34-03
    Начать чат с агентом
    Похожие предложения
    2-к кв. Пермский край, Губаха ул. Газеты Правда, 19 (48.7 м) - Фото 1
    2-к кв. Пермский край, Губаха ул. Газеты Правда, 19 (48.7 м) - Фото 2
    2-комнатная квартира, общая площадь 48м², жилая 31м², кухня 5м²

    Срочно продается двухкомнатная квартира улучшенной планировки об.пл. 48,7кв.м. на 1ом этаже (этаж высокий, цокольный), по адресу: г.Губаха, ул. Им.Газ. Правда , д.19. В квартире требуется обновление косметического ремонта, установлены окна ПВХ, частично...
    • 48 м²
    • 2-ком
    • 1/2 эт.
    • блочный
    850 000 Р
    Агент
    +7 (982) Показать номер
    Посмотреть контакты
    2-к кв. Пермский край, Нытвенский муниципальный округ, Новоильинский ... - Фото 1
    2-к кв. Пермский край, Нытвенский муниципальный округ, Новоильинский ... - Фото 2
    2-комнатная квартира, общая площадь 53м², жилая 33м², кухня 9м²

    Арт.Продается уютная 2-комнатная квартира с мебелью. Площадь: 53.8 м Косметический ремонт: свежий и аккуратный Большая кухня: идеальное место для семейных ужинов Отопление и вода: центральные, что обеспечит комфорт в любое время года Никто не...
    • 53 м²
    • 2-ком
    • 1/2 эт.
    • деревянный
    850 000 Р
    Агент
    +7 (919) Показать номер
    Посмотреть контакты
    1-к кв. Пермский край, Березники Юбилейная ул., 69А (24.9 м) - Фото 1
    1-комнатная квартира, общая площадь 24м², жилая 13м², кухня 5м²

    Продается 1-комнатная квартира по адресу, ул. Юбилейная, д. 69А.Параметры Дома и квартиры:- спокойный подъезд, чистый этаж- кирпичный дом- площадь квартиры 24.9кв.м.- этаж 3/5- окна ПВХ- счетчики на свет и воду- в квартире остается вся мебель и техника-...
    • 24 м²
    • 1-ком
    • 3/5 эт.
    • кирпичный
    850 000 Р
    Агент
    +7 (919) Показать номер
    Посмотреть контакты
    2-к кв. Пермский край, Березники ул. Ломоносова, 131А (22.2 м) - Фото 1
    2-к кв. Пермский край, Березники ул. Ломоносова, 131А (22.2 м) - Фото 2
    2-комнатная квартира, общая площадь 22м², жилая 15м²

    Продaётcя двухкомнатная квартиpa гостиничного типa, по улицe Ломонocoва 131аО КBAPTИPE:- Общая площадь квартиры 22,2 кв.м- Этaж 3/5- Дoм кирпичныйРЯДОМ С ДОMОМ НАХОДИTСЯ:- TЦ Mелодия- Mагaзин Пятёpочка- Гоpодcкая бoльницa 2- Спoртклуб Oлимп- Kинотeaтр...
    • 22 м²
    • 2-ком
    • 3/5 эт.
    • кирпичный
    850 000 Р
    Агент
    +7 (982) Показать номер
    Посмотреть контакты
    3-к кв. Костромская область, Галичский район, Березовское с/пос, д. ... - Фото 1
    3-к кв. Костромская область, Галичский район, Березовское с/пос, д. ... - Фото 2
    3-комнатная квартира, общая площадь 57м², жилая 37м², кухня 9м²

    ВОЗМОЖНА РАССРОЧКАПродается 3-х комнатная квартира в двухквартирном деревянном доме, построенном в 2009 году, общей площадью 57,3 кв.м. и жилой площадью 37,3 кв.м. Просторная кухня площадью 9 кв.м. станет отличным местом для кулинарных экспериментов...
    • 57 м²
    • 3-ком
    • 1/1 эт.
    840 000 Р
    Агент
    +7 (915) Показать номер
    Посмотреть контакты

    Не нашли подходящего объявления?

    Оставьте заявку, и наши риэлторы подберут квартиру в районе Губахи

    (0)