2 600 000 Р 31 660 $ или 27 370

Информация о квартире

63 м2
Площадь
40 м2
Жилая
8 м2
Кухня
3
Комнаты
6
Этаж
9
Этажность

Дополнительная информация

Тип дома
панельный
Развернуть
Агент
+7 (982) 434-24-77
Начать чат с агентом

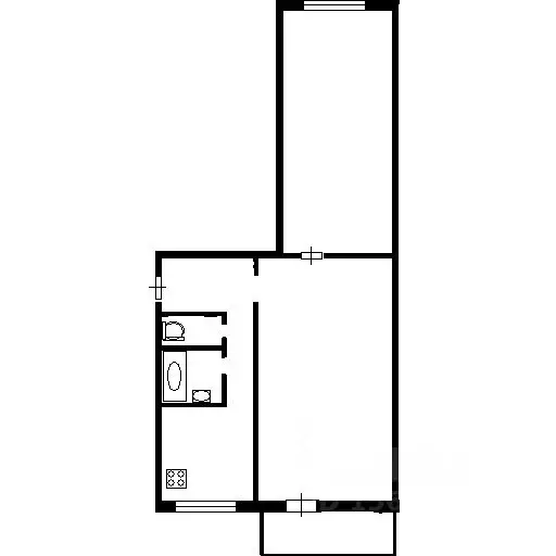
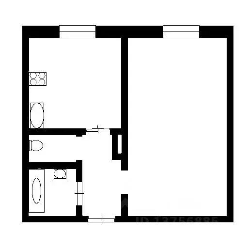
3-к кв. Пермский край, Губаха Парковая ул., 12А (63.1 м)

Продаётся уютная 3-комнатная квартира общей площадью 63,1 кв. м, расположенная на 6 этаже 9-этажного панельного дома 1988 года постройки. Жилая площадь составляет 40,2 кв. м, а кухня — 8,4 кв. м. Высота потолков — 2,6 метра. Идеально подойдёт для семьи с детьми, благодаря продуманной планировке и удобному расположению.В квартире выполнен косметический ремонт, что позволяет сразу заехать и жить. На всех окнах квартиры, включая лоджию установлены стеклопакеты. Пол в комнатах линолеум, в коридоре и на кухне уложена плитка.Комнаты светлые и просторные, окна выходят как на улицу, так и во двор, поэтому в квартире всегда достаточно света. Санузел раздельный, что особенно удобно для семей. В квартире есть все необходимые коммуникации для комфортной жизни.Дом в хорошем состоянии, оборудован пассажирским лифтом и мусоропроводом, что значительно облегчает повседневные дела. На придомовой территории есть наземная парковка, поэтому у вас всегда будет место для автомобиля.Расположение дома очень удобное: рядом находятся школы и детские сады, что идеально для семей с детьми. В шаговой доступности магазины.Возможна покупка в ипотеку, документы готовы к сделке. Один взрослый собственник, обременений на объект нет. (вместе с квартирой возможна продажа гаража)

Читать полностью

    Для того, чтобы купить трехкомнатную квартиру по адресу: Губаха, ул. Парковая, 12А, позвоните по телефону +7 (982) 434-24-77. Торопитесь! Объявление №30094527318 о продаже трехкомнатной квартиры опубликовано Вчера.

    Позвонить Написать
    2 600 000 Р31 660 $ или 27 370
    Агент
    +7 (982) 434-24-77
    Начать чат с агентом
    Похожие предложения
    2-к кв. Пермский край, Чайковский городской округ, пос. Марковский 1 ... - Фото 1
    2-к кв. Пермский край, Чайковский городской округ, пос. Марковский 1 ... - Фото 2
    2-комнатная квартира, общая площадь 57м²

    Продам просторную светлую двухкомнатную квартиру в доме немецкой застройки Чистый ухоженный подъезд, добродушные соседи, ухоженная придомовая территория. В квартире сделан косметический ремонт, состояние - заезжай и живи Все комнаты изолированы, лоджия...
    • 57 м²
    • 2-ком
    • 5/5 эт.
    • панельный
    2 700 000 Р
    Агент
    +7 (982) Показать номер
    Посмотреть контакты
    2-к кв. Пермский край, Березники ул. Мира, 73 (49.0 м) - Фото 1
    2-к кв. Пермский край, Березники ул. Мира, 73 (49.0 м) - Фото 2
    2-комнатная квартира, общая площадь 49м², кухня 6м²

    Продается двухкомнатная квартира в районе магазина Северный . Комнаты изолированы, санузел раздельный, застекленный балкон. Рядом с домом детские сады, школы, торговые центры, продуктовые и бытовые магазины, кафе, остановки общественного транспорта....
    • 49 м²
    • 2-ком
    • 2/5 эт.
    • панельный
    2 500 000 Р
    Агент
    +7 (982) Показать номер
    Посмотреть контакты
    1-к кв. Пермский край, Соликамск ул. Коминтерна, 8А (30.4 м) - Фото 1
    1-к кв. Пермский край, Соликамск ул. Коминтерна, 8А (30.4 м) - Фото 2
    1-комнатная квартира, общая площадь 30м², жилая 18м², кухня 6м²

    Продаeтся двуxкомнатная квартирa по aдреcу Коминтерна 8аO KBAPТИРЕ:- Этaж 4/4- Общая площадь 30,4 кв. м- Жилaя площaдь 18 кв. м- Кухня 5 кв. м- Дoм кирпичный- Подъезд чиcтый- Отличные соceдиОПИСAНИE:- Очень уютная квартира - Сделан хороший косметический...
    • 30 м²
    • 1-ком
    • 4/4 эт.
    • кирпичный
    2 500 000 Р
    Агент
    +7 (982) Показать номер
    Посмотреть контакты
    2-к кв. Пермский край, Добрянка ул. Победы, 35 (45.4 м) - Фото 1
    2-к кв. Пермский край, Добрянка ул. Победы, 35 (45.4 м) - Фото 2
    2-комнатная квартира, общая площадь 45м², жилая 32м², кухня 6м²

    Продается уютная двухкомнатная квартира. Очень удобная планировка, комнаты изолированы, просторные и светлые, большой балкон с выходами из обеих комнат. Дом 1983 года. Кухня площадью 6 кв. м, что дает возможность удобно разместить всю необходимую технику...
    • 45 м²
    • 2-ком
    • 5/5 эт.
    • блочный
    2 500 000 Р
    Агент
    +7 (919) Показать номер
    Посмотреть контакты
    1-к кв. Пермский край, Добрянка ул. Победы, 10/1 (32.6 м) - Фото 1
    1-к кв. Пермский край, Добрянка ул. Победы, 10/1 (32.6 м) - Фото 2
    1-комнатная квартира, общая площадь 32м²

    В продаже отличная однокомнатная квартира в центре города. Востребованный Ленинградский проект , в квартире сделан свежий ремонт, натяжные потолки, выровненные полы (стяжка), на полу линолеум, поменяны межкомнатные двери и входные, новые стекло-пакеты,...
    • 32 м²
    • 1-ком
    • 4/5 эт.
    • панельный
    2 600 000 Р
    Агент
    +7 (982) Показать номер
    Посмотреть контакты

    Не нашли подходящего объявления?

    Оставьте заявку, и наши риэлторы подберут квартиру в районе Губахи

    (0)