Реализация объекта недвижимости приостановлена

Информация о коттедже

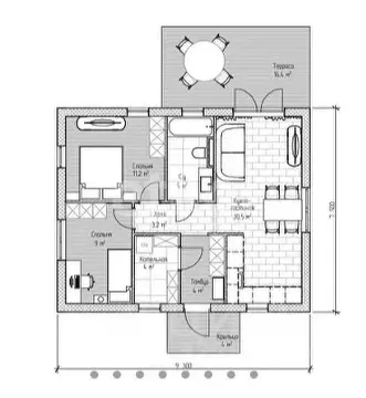
85.0 м2
Площадь
1
Этажность
9.0 cоток
Участок

Дополнительная информация

Дом продаётся вместе с участком
есть
Развернуть

Дом в Пермский край, Краснокамский муниципальный округ, квартал ...

Предлагается к продаже уютный и технологичный дом, готовый для комфортной жизни вашей семьи. Идеальное сочетание загородного уединения и городской доступности. О доме в деталях:Площадь:85 кв.м. на участке 9,5 соток.Фундамент:Монолитно-ленточный на буро-заливных сваях — гарантия прочности и долговечности.Стены:Газобетонные блоки (ПТЖБ, 400 мм) — тепло зимой и прохлада летом.Крыша:Надежная металлочерепица.Окна:Трехкамерные стеклопакеты с энергосбережением. Коммуникации и комфорт:Отопление:Система «теплый пол с антифризом.Водоснабжение:Собственная скважина глубиной 24 метра.Канализация:Выгребная яма.Вентиляция и безопасность:Принудительная вентиляция и система видеонаблюдения. Главные преимущества локации: Всего ~30 минут до центра городана автомобиле. Рядом с домом— остановка общественного транспорта. В шаговой доступности— магазины и вся необходимая инфраструктура. Удобный асфальтированный подъездк дому в любое время года. Отличная цена за готовое решение:. Код пользователя: 177703Номер в базе:

Читать полностью

    Реализация объекта недвижимости приостановлена

    Не нашли подходящего объявления?

    Оставьте заявку, и наши риэлторы подберут купить дом в районе

    (0)