5 500 000 Р 68 000 $ или 58 900

Информация о коттедже

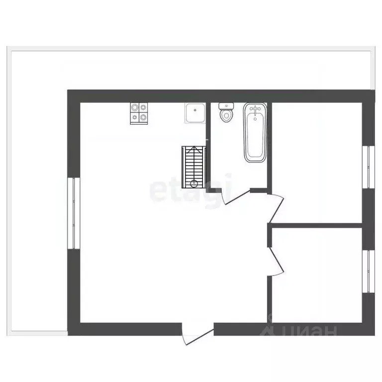
50 м2
Площадь
1
Этажность
8 cоток
Участок

Дополнительная информация

Дом продаётся вместе с участком
есть
Развернуть
Агент
+7 (919) 110-79-04
Начать чат с агентом

Дом в Пермский край, д. Устиново (50 м)

Продается уникальный дом в живописной деревне Устинова Этот современный дом площадью 50 кв.м. построен из качественного газоблока и предлагает вам отличную возможность для расширения: вы можете увеличить площадь до 95 кв.м., добавив мансарду и второй этаж. Всего за вы получите предчистовую отделку, а за уникальный дизайнерский проект с полным строительством под ключ. В эту цену включены фасад, отделка и основная мебель, что сделает ваш переезд максимально комфортным. Дом расположен всего в 14 км от Перми, что позволит вам добраться до города всего за 15 минут. Это идеальное место для тех, кто ценит спокойствие загородной жизни, но не хочет терять связь с городской инфраструктурой. Наша команда профессионалов дизайнеры, архитекторы, визуализаторы, проектировщики, комплектаторы, инженеры и строители внимательно выслушает все ваши пожелания и предложит идеальный вариант дизайна, который станет отражением вашего стиля и образа жизни. Красивый и функциональный интерьер сделает вашу жизнь ярче и комфортнее, а уютная атмосфера дома станет настоящим оазисом для вас и вашей семьи. Не упустите шанс стать владельцем этого замечательного дома Свяжитесь с нами для получения дополнительной информации и организации просмотра. Ваш новый дом ждет вас Код пользователя: 155353Номер в базе: 6466555

Читать полностью

    Для того, чтобы купить 1-этажный коттедж по адресу: Устиново, позвоните по телефону +7 (919) 110-79-04. Торопитесь! Объявление №50015670368 о продаже одноэтажного коттеджа опубликовано 31 октября 2025.

    Позвонить Написать
    5 500 000 Р68 000 $ или 58 900
    Агент
    +7 (919) 110-79-04
    Начать чат с агентом
    Похожие предложения
    Дом в Пермский край, д. Устиново  (65 м) - Фото 1
    Дом в Пермский край, д. Устиново  (65 м) - Фото 2
    1 этаж, общая площадь 65м², участок 8 соток

    В продаже компактный , энергоэффективный одноэтажный дом в Устиново, с надёжными конструктивными решениями. Дом площадью 65 кв м, участок 15 соток, назначение для индивидуального жилого строительства. Планировка дома включает в себяПросторная прихожая...
    • 1 эт.
    • 65 м²
    • 8 сот.
    5 500 000 Р
    Агент
    +7 (982) Показать номер
    Посмотреть контакты
    Дом в Пермский край, Осинский муниципальный округ (160 м) - Фото 1
    Дом в Пермский край, Осинский муниципальный округ (160 м) - Фото 2
    2 этажа, общая площадь 160м², участок 20 соток

    Продам Дом и земельный участок 20 соток в д.Пьянково Осинский район. Категория земель: Личное подсобное хозяйство (ЛПХ). Вид разрешенного использования: Для ведения подсобного хозяйства. На участке расположен 2-х этажный жилой дом из кирпича (160 кв.м)...
    • 2 эт.
    • 160 м²
    • 20 сот.
    5 500 000 Р
    Агент
    +7 (909) Показать номер
    Посмотреть контакты
    Дом в Пермский край, Добрянский муниципальный округ, д. Бобки ул. ... - Фото 1
    Дом в Пермский край, Добрянский муниципальный округ, д. Бобки ул. ... - Фото 2
    1 этаж, общая площадь 83м², участок 8 соток

    Продается уютный дом 83 м с участком 8,3 соток в коттеджном поселке Бобки Выгодное расположение: 25 км от центра Перми идеальный баланс тишины и доступности. 10 км от поселков Голованово, Левшино, Кислотные дачи. 5 минут до Чусовского моста отличная...
    • 1 эт.
    • 83 м²
    • 8 сот.
    5 400 000 Р
    Агент
    +7 (912) Показать номер
    Посмотреть контакты
    Дом в Пермский край, Кунгурский муниципальный округ, д. Полетаево ул. ... - Фото 1
    Дом в Пермский край, Кунгурский муниципальный округ, д. Полетаево ул. ... - Фото 2
    2 этажа, общая площадь 131м², участок 15 соток

    В Кунгурском районе в черте населенного пункта на берегу реки Шаква продается двухэтажный жилой дом 2013 года постройки.Дом тёплый, светлый, с высокими потолками и хорошей планировкой.Первый этаж из газоблока, второй-из бруса, оконные проёмы -стеклопакеты,...
    • 2 эт.
    • 131 м²
    • 15 сот.
    5 500 000 Р
    Агент
    +7 (982) Показать номер
    Посмотреть контакты
    Дом в Пермский край, Пермский муниципальный округ, Мокино Грин кп ул. ... - Фото 1
    Дом в Пермский край, Пермский муниципальный округ, Мокино Грин кп ул. ... - Фото 2
    2 этажа, общая площадь 120м², участок 7 соток

    Современный загородный дом площадью 120 кв. м в поселке Мокино предлагает оптимальный формат жизни для семьи, сочетающий уединение и развитую инфраструктуру. Участок и подъездные пути обладают круглогодичной транспортной доступностью, а центр города находится...
    • 2 эт.
    • 120 м²
    • 7 сот.
    5 500 000 Р
    Агент
    +7 (919) Показать номер
    Посмотреть контакты

    Не нашли подходящего объявления?

    Оставьте заявку, и наши риэлторы подберут купить дом в районе Устиново

    (0)