Реализация объекта недвижимости приостановлена

Информация об комнате

12.0 м2
Комната
1
Этаж
9
Этажность

Состояние и оснащение

Лифт
есть

Дополнительная информация

Количество комнат
2
Количество продаваемых комнат
1
Лифт
Развернуть

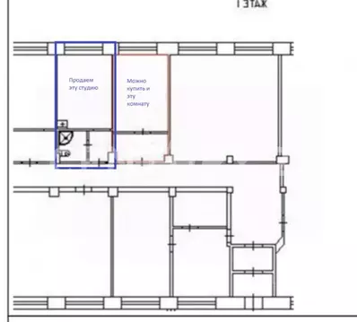
1к в -комнатной квартире (12 м)

Арт.Продам комнату на комфортном 1 этаже в общежитии блочного типа. Вода заведена. В комнате есть необходимая мебель. Чистая продажа. Рядом магазины, садик, школа

Читать полностью

    Реализация объекта недвижимости приостановлена

    Не нашли подходящего объявления?

    Оставьте заявку, и наши риэлторы подберут комнату в районе Перми

    (0)