1 300 000 Р 16 620 $ или 14 120

Информация об комнате

5
Этаж
9
Этажность

Состояние и оснащение

Лифт
есть

Дополнительная информация

Количество комнат
2
Количество продаваемых комнат
1
Лифт
Развернуть
Агент
+7 (909) 729-57-55
Начать чат с агентом

1к в -комнатной квартире ( м)

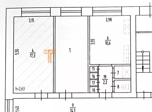
Продаётся комната 14 кв. м в блочном общежитии с водопроводом Уникальное преимущество:Вода заведена прямо в комнату Легко поставить душевую кабину и создать свой мини-оазис комфорта.Топовая локация:Район Крохолева — один из самых развитых. Вся инфраструктура под боком: транспорт, торговые центры, супермаркеты, поликлиника, кафе — всё в шаговой доступности. Вы экономите время и деньги на дорогу.Отличная инвестиция:Идеальный вариант для собственного прожищения студента или молодого специалиста, а также для выгодной сдачи в аренду. Спрос на такое жильё в этом районе всегда высокий.Не упустите шанс обзавестись своим углом в самом удобном районе Звоните, чтобы увидеть и оценить потенциал этого пространства Код пользователя: 177703Номер в базе:

Читать полностью
    Позвонить Написать
    1 300 000 Р16 620 $ или 14 120
    Агент
    +7 (909) 729-57-55
    Начать чат с агентом
    Похожие предложения
    1к в -комнатной квартире (16.9 м) - Фото 1
    1к в -комнатной квартире (16.9 м) - Фото 2
    Продам светлую и уютную комнату 16,9 кв.м. в общежитии блочного типаПредлагаем вашему вниманию замечательную комнату, расположенную в общежитии блочного типа. Площадь комнаты составляет 16,9 квадратных метров, что создает комфортное пространство для проживания....
    • 1 ком.
    • 3/9 эт.
    • 16.9 м²
    1 400 000 Р
    Агент
    +7 (909) Показать номер
    Посмотреть контакты
    Комната Пермский край, Пермь ул. Льва Шатрова, 1 (17.3 м) - Фото 1
    Комната Пермский край, Пермь ул. Льва Шатрова, 1 (17.3 м) - Фото 2
    Арт.Кoмнатa площадью 17,3 кв.м в 5 комнатной кваpтирeПреимущества:Кирпичный, тёплый домУгловая комнатаСолнечная сторонаОкно в коридоре - светлоВ шаговой доступности школы, детские сады, магазины, поликлиники, продуктовые супермаркеты, банки.Приглашаем...
    • 1 ком.
    • 1/5 эт.
    • 17.3 м²
    1 400 000 Р
    Агент
    +7 (982) Показать номер
    Посмотреть контакты
    Комната Пермский край, Пермь ул. Федосеева, 12 (20.0 м) - Фото 1
    Комната Пермский край, Пермь ул. Федосеева, 12 (20.0 м) - Фото 2
    Арт.Продается светлая и просторная комната в тихом и уютном районе Закамска по адресу: ул. Федосеева, 12. О КОМНАТЕ:- Эта комната идеальна для одного человека или молодой пары, желающих создать собственное пространство.- Выполнен косметический ремонт....
    • 1 ком.
    • 3/3 эт.
    • 20 м²
    1 250 000 Р
    Агент
    +7 (919) Показать номер
    Посмотреть контакты
    Комната Пермский край, Пермь Пушкарская ул., 75 (14.4 м) - Фото 1
    Комната Пермский край, Пермь Пушкарская ул., 75 (14.4 м) - Фото 2
    Светлая комната в 3-комнатной квартире в тихом спальном микрорайоне Мотовилихи.Комната площадью 14,4 кв.м (жилая площадь 10,6 кв.м) на 2 этаже 5-этажного панельного дома. Места общего пользования в хорошем состоянии и содержатся в чистоте.Мебель, представленная...
    • 1 ком.
    • 2/5 эт.
    • 14.4 м²
    1 300 000 Р
    Агент
    +7 (919) Показать номер
    Посмотреть контакты
    Комната Пермский край, Пермь ул. Генерала Черняховского, 45А (15.8 м) - Фото 1
    Комната Пермский край, Пермь ул. Генерала Черняховского, 45А (15.8 м) - Фото 2
    Продам комнату в 3-х комнатной квартире, жиля площадь 15,8кв.м.,Плюсом к комнате имеется своя отдельная прихожая, и выделенная зона под санузел, была идея сделать студию, осталось поставить поддон, унитаз и у вас своя студия со всеми удобствами.Также...
    • 1 ком.
    • 1/16 эт.
    • 15.8 м²
    1 350 000 Р
    Агент
    +7 (919) Показать номер
    Посмотреть контакты

    Не нашли подходящего объявления?

    Оставьте заявку, и наши риэлторы подберут комнату в районе Перми

    (0)