7 955 000 Р 97 610 $ или 83 180

Информация о квартире

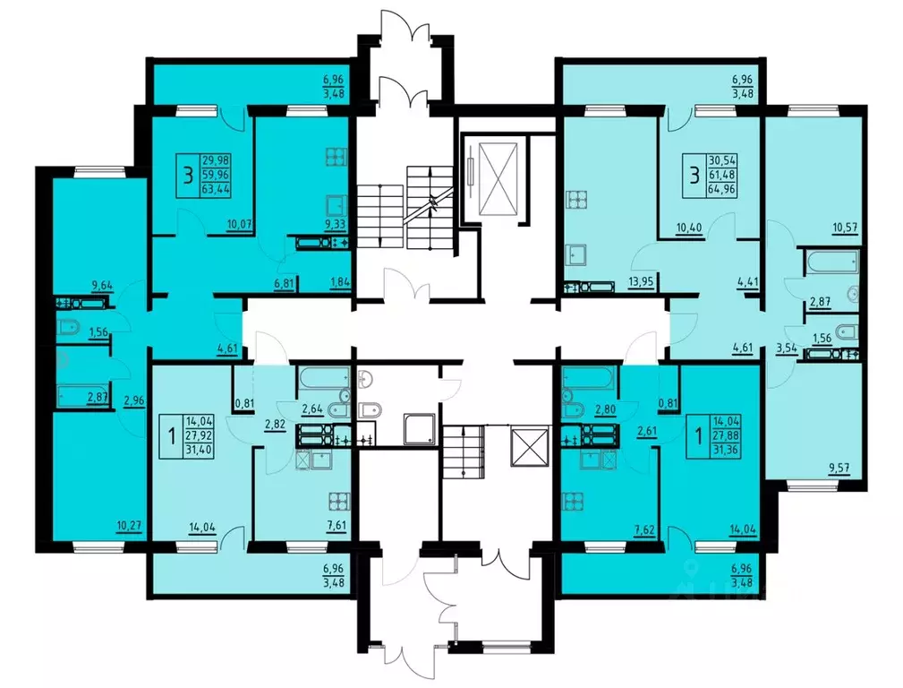
63 м2
Площадь
3
Комнаты
1
Этаж
10
Этажность

Дополнительная информация

Тип дома
кирпичный
Развернуть
Агент
ПЗСП (застройщик)
+7 (980) 962-16-15
Начать чат с агентом

3-к кв. Пермский край, Пермь ул. Танцорова, 96 (63.44 м)

КУПИ КВАРТИРУ ПОЛУЧИ ШАНС НА 1 МЛН РУБ (до 30.09.2025) - Скидка для участников СВО 3 (до 30.12.25)- Ипотека 10,5 для всех (до 30.12.2025) - Рассрочка для будущих мам (30.12.25)- Скидка 3 при стопроцентной оплате (до 30.11.25)- ТРЕЙД-ИН (30.09.2025)- Бесплатное такси до офиса продажДом у реки - Танцорова, 96Новый жилой комплекс в Кировском районе, который будет состоять из двух домов — прекрасное место, чтобы бросить якорь и погрузиться в счастливую жизнь Прогулочная зонаНаслаждайтесь каждодневными прогулками по вашей собственной живописной улице внутри комплекса. Это идеальное место для вечерних прогулок и утренних пробежек без шума городских улиц и автомобильного трафика и ваш фарватер спокойствия в городской суете. Безопасный закрытый дворВаша безопасность и безопасность ваших детей находится на первом месте. Огороженный закрытый двор с ограниченным доступом обеспечивает приватность и защиту, позволяя вам и вашей семье чувствовать себя комфортно. А для большей надёжности будет организовано видеонаблюдение во дворе и в подъездах, а также умные домофоны. Соседский центрСоздайте и поддерживайте крепкие связи с вашими соседями благодаря соседскому центру, который станет местом для общения, мероприятий и развлечений. Это настоящая кают-компания для организации семейных праздников, мастер-классов и других событий, которые способствуют формированию дружелюбного и теплого сообщества — сердце вашего дома, где соседи становятся друзьями.Большая парковка Ещё одна особенность проекта, который наверняка придётся по душе будущим жильцам большое количество парковочных мест. Например, в первом доме на 178 квартир 102 машиноместа, это уникальный показатель для жилой застройки.Комфорт в деталяхДом у реки — это высочайший уровень комфорта во всём: вход в подъезды с уровня земли, колясочные, дизайнерские холлы и многое другое. Отделка под ключ К моменту Вашего заселения будет сделана отделка под ключ : металлические входные и ламинированные межкомнатные двери, качественный линолеум и обои приятных оттенков. В ванных комнатах и совмещенных санузлах на полу и стенах от пола до потолка — керамическая плитка. Будет установлена вся сантехника и мойки, а на кухне — электрическая плита. Вам останется только переехать в новый дом и жить в нем долго и счастливо, наслаждаясь уютом.Шикарные видыС верхних этажей дома открывается панорама величественной реки. Поэтому лоджии будут сделаны таким образом, чтобы вся семья могла любоваться окружающей природой.

Читать полностью
    Позвонить Написать
    7 955 000 Р97 610 $ или 83 180
    Агент
    ПЗСП (застройщик)
    +7 (980) 962-16-15
    Начать чат с агентом
    Похожие предложения в Перми
    3-к кв. Пермский край, Пермь ул. Танцорова, 96 (64.24 м) - Фото 1
    3-к кв. Пермский край, Пермь ул. Танцорова, 96 (64.24 м) - Фото 2
    3-комнатная квартира, общая площадь 64м²

    КУПИ КВАРТИРУ ПОЛУЧИ ШАНС НА 1 МЛН РУБ (до 30.09.2025) - Скидка для участников СВО 3 (до 30.12.25)- Ипотека 10,5 для всех (до 30.12.2025) - Рассрочка для будущих мам (30.12.25)- Скидка 3 при стопроцентной оплате (до 30.11.25)- ТРЕЙД-ИН (30.09.2025)-...
    • 64 м²
    • 3-ком
    • 1/10 эт.
    • кирпичный
    7 955 000 Р
    Агент
    +7 (980) Показать номер
    Посмотреть контакты
    3-к кв. Пермский край, Пермь ул. Танцорова, 96 (63.44 м) - Фото 1
    3-к кв. Пермский край, Пермь ул. Танцорова, 96 (63.44 м) - Фото 2
    3-комнатная квартира, общая площадь 63м²

    КУПИ КВАРТИРУ ПОЛУЧИ ШАНС НА 1 МЛН РУБ (до 30.09.2025) - Скидка для участников СВО 3 (до 30.12.25)- Ипотека 10,5 для всех (до 30.12.2025) - Рассрочка для будущих мам (30.12.25)- Скидка 3 при стопроцентной оплате (до 30.11.25)- ТРЕЙД-ИН (30.09.2025)-...
    • 63 м²
    • 3-ком
    • 3/10 эт.
    • кирпичный
    8 100 000 Р
    Агент
    +7 (980) Показать номер
    Посмотреть контакты
    3-к кв. Пермский край, Пермь ул. Танцорова, 96 (63.44 м) - Фото 1
    3-к кв. Пермский край, Пермь ул. Танцорова, 96 (63.44 м) - Фото 2
    3-комнатная квартира, общая площадь 63м²

    КУПИ КВАРТИРУ ПОЛУЧИ ШАНС НА 1 МЛН РУБ (до 30.09.2025) - Скидка для участников СВО 3 (до 30.12.25)- Ипотека 10,5 для всех (до 30.12.2025) - Рассрочка для будущих мам (30.12.25)- Скидка 3 при стопроцентной оплате (до 30.11.25)- ТРЕЙД-ИН (30.09.2025)-...
    • 63 м²
    • 3-ком
    • 4/10 эт.
    • кирпичный
    8 100 000 Р
    Агент
    +7 (980) Показать номер
    Посмотреть контакты
    3-к кв. Пермский край, Пермь ул. Танцорова, 96 (64.24 м) - Фото 1
    3-к кв. Пермский край, Пермь ул. Танцорова, 96 (64.24 м) - Фото 2
    3-комнатная квартира, общая площадь 64м²

    КУПИ КВАРТИРУ ПОЛУЧИ ШАНС НА 1 МЛН РУБ (до 30.09.2025) - Скидка для участников СВО 3 (до 30.12.25)- Ипотека 10,5 для всех (до 30.12.2025) - Рассрочка для будущих мам (30.12.25)- Скидка 3 при стопроцентной оплате (до 30.11.25)- ТРЕЙД-ИН (30.09.2025)-...
    • 64 м²
    • 3-ком
    • 2/10 эт.
    • кирпичный
    8 100 000 Р
    Агент
    +7 (980) Показать номер
    Посмотреть контакты
    3-к кв. Пермский край, Пермь ул. Танцорова, 96 (64.16 м) - Фото 1
    3-к кв. Пермский край, Пермь ул. Танцорова, 96 (64.16 м) - Фото 2
    3-комнатная квартира, общая площадь 64м²

    КУПИ КВАРТИРУ ПОЛУЧИ ШАНС НА 1 МЛН РУБ (до 30.09.2025) - Скидка для участников СВО 3 (до 30.12.25)- Ипотека 10,5 для всех (до 30.12.2025) - Рассрочка для будущих мам (30.12.25)- Скидка 3 при стопроцентной оплате (до 30.11.25)- ТРЕЙД-ИН (30.09.2025)-...
    • 64 м²
    • 3-ком
    • 2/10 эт.
    • кирпичный
    8 100 000 Р
    Агент
    +7 (980) Показать номер
    Посмотреть контакты

    Не нашли подходящего объявления?

    Оставьте заявку, и наши риэлторы подберут квартиру в новостройке в районе Перми

    (0)