Реализация объекта недвижимости приостановлена

Информация о квартире

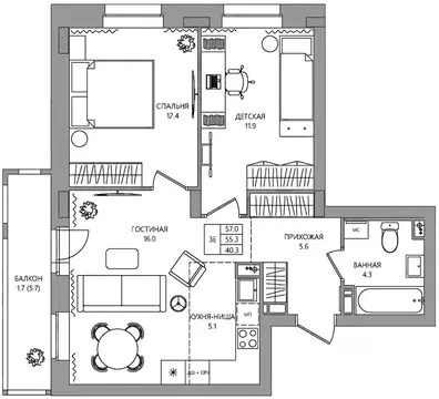
62.0 м2
Площадь
43.0 м2
Жилая
6.0 м2
Кухня
студия
Комнат
9
Этаж
15
Этажность

Дополнительная информация

Тип дома
монолит
Развернуть

Студия Пермский край, Пермь ул. Космонавта Беляева, 17 (62.4 м)

Продаётся студия в строящемся доме (Дом 17), срок сдачи: IV-кв. 2026, общей площадью 62.4 кв.м., на 9 этаже. Новый жилой комплекс ЮГ на Беляева от Специализированного застройщика Беляеваасположен по адресу: г. Пермь, улица Космонавта Беляева.

Читать полностью

    Реализация объекта недвижимости приостановлена

    Не нашли подходящего объявления?

    Оставьте заявку, и наши риэлторы подберут квартиру в новостройке в районе Перми

    (0)