7 422 000 Р 91 650 $ или 78 470

Информация о квартире

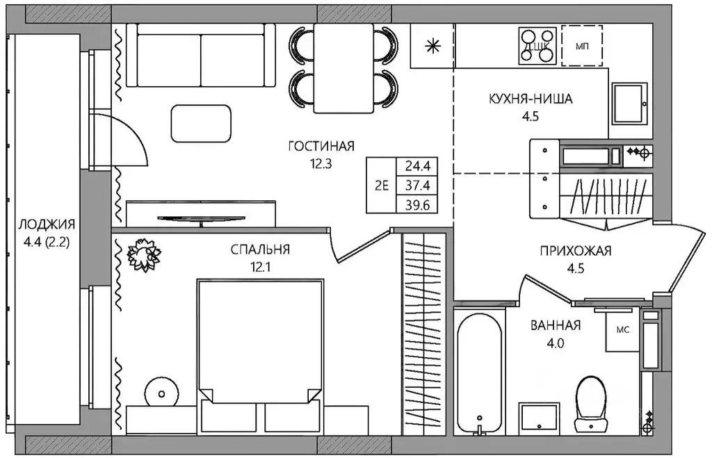
39 м2
Площадь
24 м2
Жилая
4 м2
Кухня
2
Комнаты
7
Этаж
9
Этажность
Развернуть
Агент
+7 (969) 814-26-22
Начать чат с агентом

2-к кв. Пермский край, Пермь ул. 3-я Нейвинская, 5 (39.6 м)

В мире, где каждый день ставит перед вами новые задачи, НЕО открывает новые горизонты. Этот дом создан для тех, кто готов смело шагнуть за границы возможного, увидеть современную жизнь с другого ракурса и одновременно создать крепкий фундамент для своего будущего и семьи. НЕО — это матрица возможностей, где вы становитесь архитектором своей реальности.Здесь правила переписаны, а границы реальности расширены для новых возможностей, роста и взаимопонимания.Алгоритм современной жизни:1. Подземный паркингВ НЕО паркинг выходит за пределы привычного. Ваш автомобиль всегда под защитой, а усилители сотовой связи гарантируют устойчивый сигнал на всех уровнях, чтобы вы могли беспрепятственно общаться с близкими.2. КладовыеКаждая вещь на своём месте — это философия функциональности. В НЕО предусмотрены кладовые, которые освобождают ваш дом от лишних вещей и создают порядок. Всё необходимое всегда под рукой, а вы сохраняете чувство контроля, организуя семейную жизнь в гармонии.3. Коммерция на 1 этажеКоммерческие площади на первом этаже — это часть реальности, которая упрощает ваш день. Здесь находятся магазины, сервисы и места для встреч, обеспечивающие всё необходимое для повседневных задач. Этот алгоритм создаёт удобство, о котором вы даже не задумываетесь.4. БлагоустройствоДвор НЕО — это место, где семейные ценности становятся центральной осью жизни. Здесь дети могут активно играть, развивая воображение и творческие способности, а для взрослых предусмотрены зоны для расслабленного отдыха и общения. Озеленение создаёт естественный барьер от шума города, превращая двор в тихий семейный оазис, где вы можете проводить время вместе, не отвлекаясь на внешние факторы.5. БезопасностьБезопасность в НЕО — не просто опция, а основа жизни для вас и вашей семьи. Система видеонаблюдения работает круглосуточно, обеспечивая защиту двора, подъездов и паркинга. Это невидимый щит, который оберегает всё, что для вас ценно, позволяя вам сосредоточиться на своих близких.НЕО — ваш код современной жизни:ул. 3-я Невинская, 5 8 жилых этажей Квартиры от 26,4 до 68,5 кв.м 80 квартир Высота потолков 2,72 мОкончание строительства дома — третий квартал 2027 года.

Читать полностью
    Позвонить Написать
    7 422 000 Р91 650 $ или 78 470
    Агент
    +7 (969) 814-26-22
    Начать чат с агентом
    Похожие предложения
    2-к кв. Пермский край, Пермь ул. 3-я Нейвинская, 5 (39.6 м) - Фото 1
    2-к кв. Пермский край, Пермь ул. 3-я Нейвинская, 5 (39.6 м) - Фото 2
    2-комнатная квартира, общая площадь 39м², жилая 24м², кухня 4м²

    В мире, где каждый день ставит перед вами новые задачи, НЕО открывает новые горизонты. Этот дом создан для тех, кто готов смело шагнуть за границы возможного, увидеть современную жизнь с другого ракурса и одновременно создать крепкий фундамент для своего...
    • 39 м²
    • 2-ком
    • 6/9 эт.
    7 378 000 Р
    Агент
    +7 (969) Показать номер
    Посмотреть контакты
    1-к кв. Пермский край, Пермь ул. Механошина, 16 (28.4 м) - Фото 1
    1-к кв. Пермский край, Пермь ул. Механошина, 16 (28.4 м) - Фото 2
    1-комнатная квартира, общая площадь 28м², жилая 15м², кухня 4м²

    Студия 28 м — идеальный старт для самостоятельной жизни или инвестиции. Грамотная планировка с нишами под шкаф-купе и кухонный гарнитур — легко зонировать пространство и избежать визуального шума;Просторная ванная 4,8 м — комфорт и свобода движений;В...
    • 28 м²
    • 1-ком
    • 17/30 эт.
    • монолит
    7 464 500 Р
    Агент
    +7 (939) Показать номер
    Посмотреть контакты
    1-к кв. Пермский край, Пермь ул. Механошина, 16 (29.4 м) - Фото 1
    1-к кв. Пермский край, Пермь ул. Механошина, 16 (29.4 м) - Фото 2
    1-комнатная квартира, общая площадь 29м², жилая 15м², кухня 4м²

    Студия 29 м — идеальный старт для самостоятельной жизни или инвестиции. Грамотная планировка с нишами под шкаф-купе и кухонный гарнитур — легко зонировать пространство и избежать визуального шума;Просторная ванная 5,5 м — комфорт, которого редко ждёшь...
    • 29 м²
    • 1-ком
    • 4/30 эт.
    • монолит
    7 473 800 Р
    Агент
    +7 (939) Показать номер
    Посмотреть контакты
    2-к кв. Пермский край, Пермь ул. Клары Цеткин, 35 (42.7 м) - Фото 1
    2-к кв. Пермский край, Пермь ул. Клары Цеткин, 35 (42.7 м) - Фото 2
    2-комнатная квартира, общая площадь 42м², кухня 13м²

    Продается уютная светлая квартира, в новом доме Скворцы, который находится в шаговой доступности от центра города С видом из окна на парк и на пермские закаты..в шаговой доступности бассейн БМ, стадион звезда, школа, садики, сетевые магазины. В квартире...
    • 42 м²
    • 2-ком
    • 1/10 эт.
    7 399 000 Р
    Агент
    +7 (919) Показать номер
    Посмотреть контакты
    2-к кв. Пермский край, Пермь ул. Яблочкова, 5к4 (55.4 м) - Фото 1
    2-к кв. Пермский край, Пермь ул. Яблочкова, 5к4 (55.4 м) - Фото 2
    2-комнатная квартира, общая площадь 55м²

    КУПИ КВАРТИРУ ПОЛУЧИ ШАНС НА 1 МЛН РУБ Студия в ЖК Красное Яблоко — это ваше личное пространство для жизни, вдохновения и отдыха, где каждая деталь создана для вашего комфорта. Условия приобретения:- Ипотека 10,5 для всех (до 30.12.2025);- Семейная...
    • 55 м²
    • 2-ком
    • 3/25 эт.
    • панельный
    7 320 000 Р
    Агент
    +7 (980) Показать номер
    Посмотреть контакты

    Не нашли подходящего объявления?

    Оставьте заявку, и наши риэлторы подберут квартиру в новостройке в районе Перми

    (0)