Реализация объекта недвижимости приостановлена

Информация о квартире

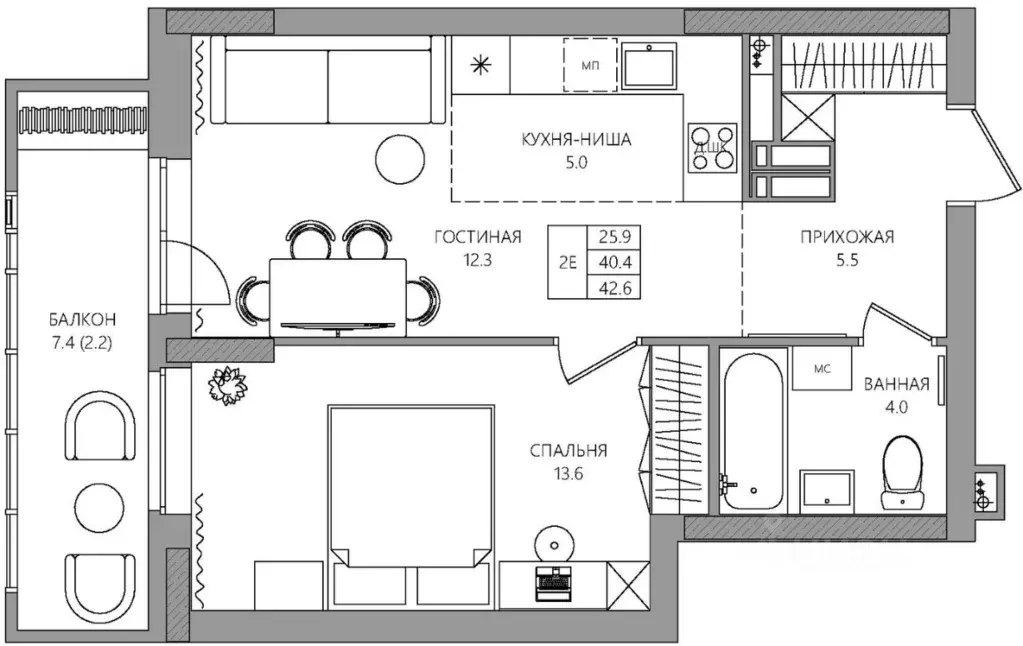
42.0 м2
Площадь
25.0 м2
Жилая
5.0 м2
Кухня
2
Комнаты
15
Этаж
22
Этажность
Развернуть

2-к кв. Пермский край, Пермь Батумская ул., 21 (42.6 м)

PORTA там, где создается сообществоЭтот дом — как современная гавань, где встречаются семьи, друзья и соседи. Это место, где формируются традиции, а общие пространства наполняются голосами детей и светом дружеских встреч.Прямо в вашем доме — торговая галерея, где каждый день начинается с маленького удовольствия. Утренний кофе или необходимые повседневные покупки — всё это на расстоянии одного шага.Подземный паркингПродуманное решение для современных жителей. Здесь предусмотрены станции зарядки для электромобилей, пункт подкачки шин и усилители сотовой связи. Каждая деталь пространства отражает заботу о вашем времени.Просторный зонированный двор на стилобатеМесто для отдыха, общения и активного досуга. Зонированные пространства позволяют каждому найти своё место: от тихих уголков для размышлений до детских площадок для активных игр.Терраса на крышеВаш личный оазис для отдыха. Две уникальные зоны:рабочая с минималистичными лавками, встроенными зарядками и столами для работылаунж зона с видом на Каму среди цветников и искусственных туй.ул. Батумская, 2122 этажа в 1 секции и 13 этажей во 2 секцииКвартиры от 26,6 до 75,9 кв.м348 квартирВысота потолков 2,72 мОкончание строительства дома — 4 квартал 2027 года

Читать полностью

    Реализация объекта недвижимости приостановлена

    Не нашли подходящего объявления?

    Оставьте заявку, и наши риэлторы подберут квартиру в новостройке в районе Перми

    (0)