Реализация объекта недвижимости приостановлена

Информация о квартире

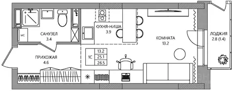
33.0 м2
Площадь
1
Комната
1
Этаж
25
Этажность

Дополнительная информация

Тип дома
панельный
Развернуть

1-к кв. Пермский край, Пермь ул. Яблочкова, 5к4 (33.5 м)

КУПИ КВАРТИРУ ПОЛУЧИ ШАНС НА 1 МЛН РУБ Студия в ЖК Красное Яблоко — это ваше личное пространство для жизни, вдохновения и отдыха, где каждая деталь создана для вашего комфорта. Условия приобретения:- Ипотека 10,5 для всех (до 30.12.2025);- Семейная ипотека с государственной поддержкой;- Скидка 3 на приобретение квартир при стопроцентной оплате (до 30.12.2025г.);- Материнский и жилищный сертификаты;- Рассрочка от ПЗСП для будущей мамы (до 30.12.2025г.);- Скидка 3 участникам СВО на все объекты (до 30.12.2025г.);- Трейд Ин (до 30.09.2025г.)- Добрые Дни Скидка 3 на квартира этапа 4 (до 30.11.2025)ЖК Красное яблоко — новый концептуальный район от застройщика ПЗСП в Свердловском районе Перми. Название объединяет известные пермякам микрорайон Краснова и улицу Яблочкова.Расположение и транспорт:- Адрес: ул. Яблочкова, 5.Удобные въезды с ул. Яблочкова и ул. Куйбышева (с новым светофорным заездом).- Рядом остановка Яблочкова .- Всего 15-20 минут до центра города.Комфорт и технологии:- Европейские тренды: монолитно-каркасная технология с высокой звуко- и теплоизоляцией.- Теплые лоджии и большие окна позволят экономить на отоплении и освещении.- Свобода планировки: возможность обустроить кабинет или гардеробную по своему желанию.- Простор: высота потолков 2,74 м (3,05 м на первых этажах).- Коммуникации: современное малошумное оборудование, индивидуальные счетчики в квартирах.Безопасность и инфраструктура:- Закрытый двор: без машин, с детскими и спортивными площадками, зонами отдыха.- Безбарьерная среда: удобные входные группы на уровне земли.- Охрана: консьерж, система видеонаблюдения и умный домофон с управлением через приложение.Отделка на выбор:Предчистовая ( white box )Полная чистовая (за доп. плату)Застройщик: ООО СЗ ПЗСП Яблочкова, 26 .Проектная декларация размещена на Status 150031, КУПИ КВАРТИРУ ПОЛУЧИ ШАНС НА 1 МЛН РУБ Условия приобретения: - Ипотека 10,5 для всех (до 30.12.2025);- Семейная ипотека с государственной поддержкой;- Скидка 3 на приобретение квартир при стопроцентной оплате (до 30.12.2025г.);- Скидка 1 за каждого ребёнка (до 30.11.2025); - Материнский и жилищный сертификаты;- Рассрочка от ПЗСП для будущей мамы (до 30.12.2025г.);- Скидка 3 участникам СВО на все объекты (до 30.12.2025г.);- Трейд Ин (до 30.09.2025г.)- Добрые Дни Скидка 3 на квартира этапа 4 (до 30.11.2025)ЖК Красное яблоко — новый концептуальный район от застройщика ПЗСП в Свердловском районе Перми. Название объединяет известные пермякам микрорайон Краснова и улицу Яблочкова.Расположение и транспорт:- Адрес: ул. Яблочкова, 5.Удобные въезды с ул. Яблочкова и ул. Куйбышева (с новым светофорным заездом).- Рядом остановка Яблочкова . - Всего 15-20 минут до центра города.Комфорт и технологии:- Европейские тренды: монолитно-каркасная технология с высокой звуко- и теплоизоляцией. - Теплые лоджии и большие окна позволят экономить на отоплении и освещении.- Свобода планировки: воз

Читать полностью

    Реализация объекта недвижимости приостановлена

    Не нашли подходящего объявления?

    Оставьте заявку, и наши риэлторы подберут квартиру в новостройке в районе Перми

    (0)