14 746 500 Р 181 500 $ или 157 200

Информация о квартире

82 м2
Площадь
58 м2
Жилая
4 м2
Кухня
4
Комнаты
7
Этаж
18
Этажность

Дополнительная информация

Тип дома
монолит
Развернуть
Агент
+7 (980) 962-10-16
Начать чат с агентом

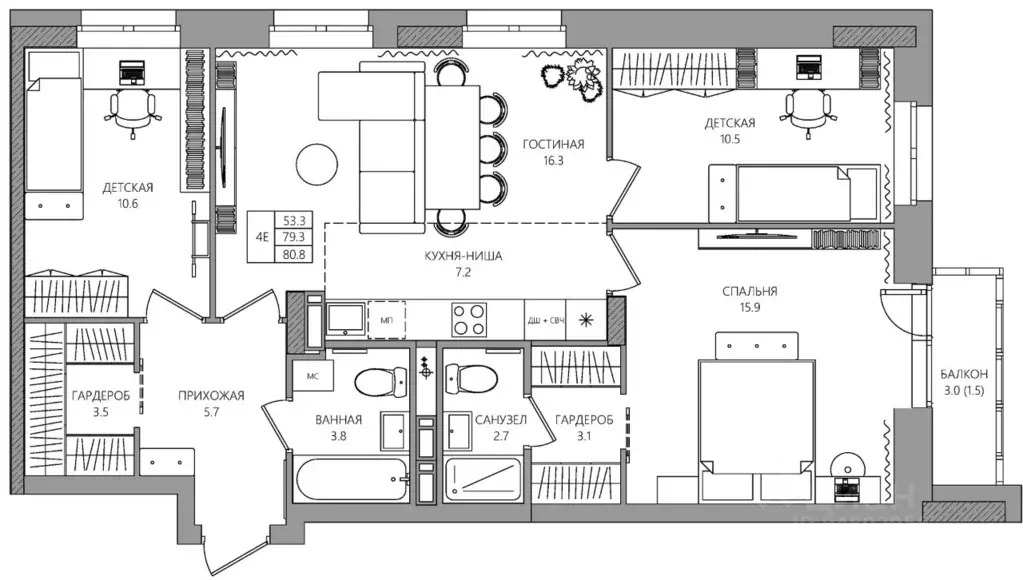
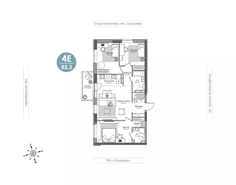
4-к кв. Пермский край, Пермь ш. Космонавтов, 162К (82.3 м)

Квартира для тех, кто любит уникальность и приватность При входе в квартиру вы попадаете в продуманную прихожую. С одной стороны, располагается ниша под установку шкафа, а с другой, глубокая гардеробная, в которой можно спрятать не только верхнюю одежду, но и бытовую технику;Изюминка данной квартиры - это просторная кухня гостиная площадью 26м2 с выделенной нишей под кухонный гарнитур и выходом на панорамный балкон для романтических вечеров (уточняйте наличие парапета в отделе продаж);Зона кухни гостиной делит пространство квартиры на две части: зона для родителей и детская зона. Такое решение, позволяет сохранить личное пространство, для каждого члена семьи;В квартире представлена родительская мастер-спальня с собственным санузлом с гардеробной;Две просторные детские комнаты, Для удобства,ядом с детскими комнатами располагается второй санузел;Предусмотрена корзина под кондиционер;Высота потолков 2,7м.

Читать полностью
    Позвонить Написать
    14 746 500 Р181 500 $ или 157 200
    Агент
    +7 (980) 962-10-16
    Начать чат с агентом
    Похожие предложения
    3-к кв. Пермский край, Пермь ул. Карпинского, 11 (91.34 м) - Фото 1
    3-к кв. Пермский край, Пермь ул. Карпинского, 11 (91.34 м) - Фото 2
    3-комнатная квартира, общая площадь 91м², жилая 45м², кухня 5м²

    Передаем ключи в 2025 году Дом на Карпинского новый проект UDS в индустриальном районе. ДНК - современный центр жизни для активных профессионалов, влюбленных в ритм города. Комфортная среда для свободы, саморазвития и реализации.Стильные фасады из кирпича,...
    • 91 м²
    • 3-ком
    • 9/10 эт.
    • монолит
    14 533 334 Р
    Агент
    +7 (969) Показать номер
    Посмотреть контакты
    3-к кв. Пермский край, Пермь ул. Карпинского, 11 (100.58 м) - Фото 1
    3-к кв. Пермский край, Пермь ул. Карпинского, 11 (100.58 м) - Фото 2
    3-комнатная квартира, общая площадь 100м², жилая 38м², кухня 8м²

    Передаем ключи в 2025 году Дом на Карпинского новый проект UDS в индустриальном районе. ДНК - современный центр жизни для активных профессионалов, влюбленных в ритм города. Комфортная среда для свободы, саморазвития и реализации.Стильные фасады из кирпича,...
    • 100 м²
    • 3-ком
    • 9/10 эт.
    • монолит
    15 494 558 Р
    Агент
    +7 (969) Показать номер
    Посмотреть контакты
    3-к кв. Пермский край, Пермь ул. Левченко, 8 (79.2 м) - Фото 1
    3-к кв. Пермский край, Пермь ул. Левченко, 8 (79.2 м) - Фото 2
    3-комнатная квартира, общая площадь 79м², жилая 43м², кухня 13м²

    Квартал Левченко — это жилой комплекс в современном формате умной среды, созданный для нового поколения горожан, который легко адаптируется к их желаниям, нуждам и жизненным ситуациям, при этом остается верен себе.Для тех, кто видит большие возможности...
    • 79 м²
    • 3-ком
    • 7/22 эт.
    14 630 672 Р
    Агент
    +7 (939) Показать номер
    Посмотреть контакты
    4-к кв. Пермский край, Пермь ул. Капитана Гастелло, 15 (80.8 м) - Фото 1
    4-к кв. Пермский край, Пермь ул. Капитана Гастелло, 15 (80.8 м) - Фото 2
    4-комнатная квартира, общая площадь 80м², жилая 53м²

    Жилой дом ESTETICA - новый дом от девелопера ИНГРУППЭстетика жизни. Эстетика пространства. Эстетика людей.Жилой дом ESTETICA это место, где эстетика жизни, пространства и людей становится единым целым. Мы создали его для тех, кто ценит индивидуальность,...
    • 80 м²
    • 4-ком
    • 4/10 эт.
    14 973 000 Р
    Агент
    +7 (939) Показать номер
    Посмотреть контакты
    3-к кв. Пермский край, Пермь ул. Левченко, 8 (83.1 м) - Фото 1
    3-к кв. Пермский край, Пермь ул. Левченко, 8 (83.1 м) - Фото 2
    3-комнатная квартира, общая площадь 83м², жилая 41м², кухня 13м²

    Квартал Левченко — это жилой комплекс в современном формате умной среды, созданный для нового поколения горожан, который легко адаптируется к их желаниям, нуждам и жизненным ситуациям, при этом остается верен себе.Для тех, кто видит большие возможности...
    • 83 м²
    • 3-ком
    • 6/22 эт.
    15 782 303 Р
    Агент
    +7 (939) Показать номер
    Посмотреть контакты

    Не нашли подходящего объявления?

    Оставьте заявку, и наши риэлторы подберут квартиру в новостройке в районе Перми

    (0)