6 912 000 Р 85 130 $ или 73 490

Информация о квартире

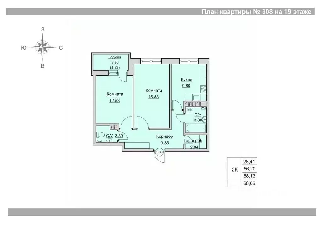
58 м2
Площадь
9 м2
Кухня
2
Комнаты
19
Этаж
24
Этажность
Развернуть
Агент
Зардон-строй (застройщик)
+7 (969) 814-33-63
Начать чат с агентом

2-к кв. Пермский край, Пермь ул. Гусарова, 5А (58.13 м)

Наполнение домаНа первом этаже расположены колясочные и комната для консьержа.Предусмотрено четыре высокоскоростных и безопасных лифта с современным дизайном и качественной отделкой.Дизайнерские холлы выполняются по авторскому проекту.Уютные и эргономичные квартиры правильной формы для счастливых семей. Широкий выбор конфигураций и размеров позволяет подобрать идеальный вариант под свой бюджет.Наши СМАРТ-планировки тщательно проработаны проектировщиками для того, чтобы ваша жизнь в наших квартирах заиграла новыми красками. Классические и европланировки с кухней-гостиной под разный стиль жизни.Ухоженный и благоустроенный дворУникальное решение дворовая территория на уровне второго этажа. Возможность проводить время с родными и близкими в спокойной и уютной атмосфере. Эта часть станет одним из любимых мест для посещения.Двор без машин дворовая территория создана таким образом, чтобы обезопасить взрослых и детей от автомобильного транспорта.Разнообразие игровых зон и тематических площадок для детей разного возраста: качели, карусели и интерактивные зоны.Зона воркаута будет оснащена различными тренажёрами и спортивными комплексами. Также на территории расположены футбольная и баскетбольная площадка. Дети и взрослые могут проводить совместные занятия спортом и устраивать соревнования.Безбарьерная средаДля нас важно, чтобы все жители комплекса чувствовали себя максимально безопасно и комфортно. На территории участка предусмотрены пешеходные пути с возможностью движения маломобильных групп населения: перепады высот между входной площадкой и наружной площадкой придомовой территории не превышает 50мм.

Читать полностью
    Позвонить Написать
    6 912 000 Р85 130 $ или 73 490
    Агент
    Зардон-строй (застройщик)
    +7 (969) 814-33-63
    Начать чат с агентом
    Похожие предложения
    2-к кв. Пермский край, Пермь ул. Гусарова, 5А (58.13 м) - Фото 1
    2-к кв. Пермский край, Пермь ул. Гусарова, 5А (58.13 м) - Фото 2
    2-комнатная квартира, общая площадь 58м², кухня 9м²

    Наполнение домаНа первом этаже расположены колясочные и комната для консьержа.Предусмотрено четыре высокоскоростных и безопасных лифта с современным дизайном и качественной отделкой.Дизайнерские холлы выполняются по авторскому проекту.Уютные и эргономичные...
    • 58 м²
    • 2-ком
    • 24/24 эт.
    6 959 000 Р
    Агент
    +7 (969) Показать номер
    Посмотреть контакты
    3-к кв. Пермский край, Пермь Краснова мкр, Красное яблоко жилой ... - Фото 1
    3-к кв. Пермский край, Пермь Краснова мкр, Красное яблоко жилой ... - Фото 2
    3-комнатная квартира, общая площадь 55м²

    КУПИ КВАРТИРУ ПОЛУЧИ ШАНС НА 1 МЛН РУБ (до 30.09.2025) Условия приобретения: - Ипотека 10,5 для всех (до 30.12.2025);- Семейная ипотека с государственной поддержкой;- Скидка 3 на приобретение квартир при стопроцентной оплате (до 30.12.2025г.);- Скидка...
    • 55 м²
    • 3-ком
    • 2/7 эт.
    • панельный
    6 993 000 Р
    Агент
    +7 (980) Показать номер
    Посмотреть контакты
    3-к кв. Пермский край, Пермь Краснова мкр, Красное яблоко жилой ... - Фото 1
    3-к кв. Пермский край, Пермь Краснова мкр, Красное яблоко жилой ... - Фото 2
    3-комнатная квартира, общая площадь 55м²

    КУПИ КВАРТИРУ ПОЛУЧИ ШАНС НА 1 МЛН РУБ (до 30.09.2025) Условия приобретения: - Ипотека 10,5 для всех (до 30.12.2025);- Семейная ипотека с государственной поддержкой;- Скидка 3 на приобретение квартир при стопроцентной оплате (до 30.12.2025г.);- Скидка...
    • 55 м²
    • 3-ком
    • 5/7 эт.
    • панельный
    6 993 000 Р
    Агент
    +7 (980) Показать номер
    Посмотреть контакты
    3-к кв. Пермский край, Пермь Краснова мкр, Красное яблоко жилой ... - Фото 1
    3-к кв. Пермский край, Пермь Краснова мкр, Красное яблоко жилой ... - Фото 2
    3-комнатная квартира, общая площадь 55м²

    КУПИ КВАРТИРУ ПОЛУЧИ ШАНС НА 1 МЛН РУБ (до 30.09.2025) Условия приобретения: - Ипотека 10,5 для всех (до 30.12.2025);- Семейная ипотека с государственной поддержкой;- Скидка 3 на приобретение квартир при стопроцентной оплате (до 30.12.2025г.);- Скидка...
    • 55 м²
    • 3-ком
    • 4/7 эт.
    • панельный
    6 993 000 Р
    Агент
    +7 (980) Показать номер
    Посмотреть контакты
    3-к кв. Пермский край, Пермь Краснова мкр, Красное яблоко жилой ... - Фото 1
    3-к кв. Пермский край, Пермь Краснова мкр, Красное яблоко жилой ... - Фото 2
    3-комнатная квартира, общая площадь 55м²

    КУПИ КВАРТИРУ ПОЛУЧИ ШАНС НА 1 МЛН РУБ (до 30.09.2025) Условия приобретения: - Ипотека 10,5 для всех (до 30.12.2025);- Семейная ипотека с государственной поддержкой;- Скидка 3 на приобретение квартир при стопроцентной оплате (до 30.12.2025г.);- Скидка...
    • 55 м²
    • 3-ком
    • 6/7 эт.
    • панельный
    6 993 000 Р
    Агент
    +7 (980) Показать номер
    Посмотреть контакты

    Не нашли подходящего объявления?

    Оставьте заявку, и наши риэлторы подберут квартиру в новостройке в районе Перми

    (0)