13 778 105 Р 168 200 $ или 143 400

Информация о квартире

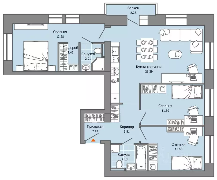
81 м2
Площадь
36 м2
Жилая
26 м2
Кухня
3
Комнаты
5
Этаж
8
Этажность

Дополнительная информация

Тип дома
монолит
Развернуть
Агент
Железно (застройщик)
+7 (939) 110-83-63
Начать чат с агентом

3-к кв. Пермский край, Пермь ул. Дзержинского, 35А (81.0 м)

В новом жилом комплексе комфорт+ класса Камаполис , расположенном на берегу реки Камы, продается 3-комнатная квартира площадью 81.00 кв. м. с предчистовой отделкой. Квартира находится в 4 доме. Девелопер проекта - Железно . Транспортная доступность• Трамвайная остановка всего в 3 минутах пешком;• 15 минут ходьбы до вокзала Пермь-2;• 10 минут на машине до центра города.Продуманный архитектурный проектКамаполис - это жизнь в соразмерной среде, спроектированной известными архитекторами. Жилые этажи Камаполиса строят из кирпича и по монолитной технологии, стены обладают высокой устойчивостью к нагрузкам, огнестойкостью, хорошей шумоизоляцией. Такие дома отлично сохраняют первоначальный внешний вид и радуют жителей долгие годы.Концептуальные лоббиКонцепция проекта продолжается интерьером лобби. Здесь преобладают естественные оттенки и текстуры, а мебель выполнена из экологичных материалов. Для удобства жителей созданы собственные колясочные и велосипедные, а для заботы о домашних любимцах предусмотрена лапомойка.Благоустройство Новый центр притяжения - всесезонный сквер, выполненный в тематике и стилистике пермского периода. Прогулочные зоны, игровые и спортивные площадки, релакс-зоны и места для творчества - все эти мультифункциональные пространства формируют сценарии для любого досуга. Любители особой приватности оценят соседские террасы - это специальные пространства для жителей, расположенные прямо на стилобате паркинга. Любуйтесь на реку, принимайте участие в совместных мероприятиях с соседями, с удовольствием работайте на свежем воздухе и приятно проводите время с близкими. Дополнительные преимущества• Собственный детский сад на 320 мест;• Стрит-ритейл с магазинами и кафе прямо на территории комплекса;• Управление домом через собственное мобильное приложение Мажордом ;•азных вида отделки на выбор покупателей.

Читать полностью
    Позвонить Написать
    13 778 105 Р168 200 $ или 143 400
    Агент
    Железно (застройщик)
    +7 (939) 110-83-63
    Начать чат с агентом
    Похожие предложения в Перми
    3-к кв. Пермский край, Пермь ул. Дзержинского, 35А (85.0 м) - Фото 1
    3-к кв. Пермский край, Пермь ул. Дзержинского, 35А (85.0 м) - Фото 2
    3-комнатная квартира, общая площадь 85м², жилая 36м², кухня 29м²

    В новом жилом комплексе комфорт+ класса Камаполис , расположенном на берегу реки Камы, продается 3-комнатная квартира площадью 85.00 кв. м. с предчистовой отделкой. Квартира находится в 4 доме. Девелопер проекта - Железно . Транспортная доступность•...
    • 85 м²
    • 3-ком
    • 5/9 эт.
    • монолит
    13 297 128 Р
    Агент
    +7 (939) Показать номер
    Посмотреть контакты
    3-к кв. Пермский край, Пермь ул. Дзержинского, 35А (84.0 м) - Фото 1
    3-к кв. Пермский край, Пермь ул. Дзержинского, 35А (84.0 м) - Фото 2
    3-комнатная квартира, общая площадь 84м², жилая 34м², кухня 24м²

    В новом жилом комплексе комфорт+ класса Камаполис , расположенном на берегу реки Камы, продается 3-комнатная квартира площадью 84.00 кв. м. с предчистовой отделкой. Квартира находится в 4 доме. Девелопер проекта - Железно . Транспортная доступность•...
    • 84 м²
    • 3-ком
    • 4/9 эт.
    • монолит
    13 337 280 Р
    Агент
    +7 (939) Показать номер
    Посмотреть контакты
    3-к кв. Пермский край, Пермь ул. Дзержинского, 35А (86.0 м) - Фото 1
    3-к кв. Пермский край, Пермь ул. Дзержинского, 35А (86.0 м) - Фото 2
    3-комнатная квартира, общая площадь 86м², жилая 35м², кухня 24м²

    В новом жилом комплексе комфорт+ класса Камаполис , расположенном на берегу реки Камы, продается 3-комнатная квартира площадью 86.00 кв. м. с предчистовой отделкой. Квартира находится в 4 доме. Девелопер проекта - Железно . Транспортная доступность•...
    • 86 м²
    • 3-ком
    • 4/8 эт.
    • монолит
    14 080 649 Р
    Агент
    +7 (939) Показать номер
    Посмотреть контакты
    3-к кв. Пермский край, Пермь ул. Дзержинского, 35А (81.0 м) - Фото 1
    3-к кв. Пермский край, Пермь ул. Дзержинского, 35А (81.0 м) - Фото 2
    3-комнатная квартира, общая площадь 81м², жилая 36м², кухня 26м²

    В новом жилом комплексе комфорт+ класса Камаполис , расположенном на берегу реки Камы, продается 3-комнатная квартира площадью 81.00 кв. м. с предчистовой отделкой. Квартира находится в 4 доме. Девелопер проекта - Железно . Транспортная доступность•...
    • 81 м²
    • 3-ком
    • 6/8 эт.
    • монолит
    13 923 563 Р
    Агент
    +7 (939) Показать номер
    Посмотреть контакты
    3-к кв. Пермский край, Пермь ул. Дзержинского, 35А (85.0 м) - Фото 1
    3-к кв. Пермский край, Пермь ул. Дзержинского, 35А (85.0 м) - Фото 2
    3-комнатная квартира, общая площадь 85м², жилая 34м², кухня 24м²

    В новом жилом комплексе комфорт+ класса Камаполис , расположенном на берегу реки Камы, продается 3-комнатная квартира площадью 85.00 кв. м. с предчистовой отделкой. Квартира находится в 4 доме. Девелопер проекта - Железно . Транспортная доступность•...
    • 85 м²
    • 3-ком
    • 2/8 эт.
    • монолит
    13 860 756 Р
    Агент
    +7 (939) Показать номер
    Посмотреть контакты

    Не нашли подходящего объявления?

    Оставьте заявку, и наши риэлторы подберут квартиру в новостройке в районе Перми

    (0)