11 752 650 Р 144 800 $ или 125 700

Информация о квартире

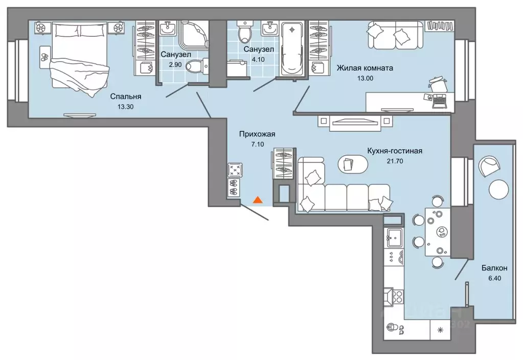
62 м2
Площадь
25 м2
Жилая
21 м2
Кухня
2
Комнаты
8
Этаж
8
Этажность

Дополнительная информация

Тип дома
монолит
Развернуть
Агент
+7 (939) 110-83-63
Начать чат с агентом

2-к кв. Пермский край, Пермь ул. Дзержинского, 31Б (62.0 м)

Особенность планировки - собственная терраса, ощутите преимущества загородного отдыха и полного единения с окружающей Вас красотой с видом на гладь воды Камы.В новом жилом комплексе комфорт+ класса Камаполис , расположенном на берегу реки Камы, продается 2-комнатная квартира площадью 62.00 кв. м. Квартира находится в 3 доме. Девелопер проекта - Железно .Транспортная доступность• Трамвайная остановка всего в 3 минутах пешком;• 15 минут ходьбы до вокзала Пермь-2;• 10 минут на машине до центра города.Продуманный архитектурный проектКамаполис - это жизнь в соразмерной среде, спроектированной известными архитекторами. Жилые этажи Камаполиса строят из кирпича и по монолитной технологии, стены обладают высокой устойчивостью к нагрузкам, огнестойкостью, хорошей шумоизоляцией. Такие дома отлично сохраняют первоначальный внешний вид и радуют жителей долгие годы.Концептуальные лоббиКонцепция проекта продолжается интерьером лобби. Здесь преобладают естественные оттенки и текстуры, а мебель выполнена из экологичных материалов. Для удобства жителей созданы собственные колясочные и велосипедные, а для заботы о домашних любимцах предусмотрена лапомойка.Благоустройство Новый центр притяжения - всесезонный сквер, выполненный в тематике и стилистике пермского периода. Прогулочные зоны, игровые и спортивные площадки, релакс-зоны и места для творчества - все эти мультифункциональные пространства формируют сценарии для любого досуга. Любители особой приватности оценят соседские террасы - это специальные пространства для жителей, расположенные прямо на стилобате паркинга. Любуйтесь на реку, принимайте участие в совместных мероприятиях с соседями, с удовольствием работайте на свежем воздухе и приятно проводите время с близкими. Дополнительные преимущества• Собственный детский сад на 320 мест;• Стрит-ритейл с магазинами и кафе прямо на территории комплекса;• Управление домом через собственное мобильное приложение Мажордом ;•азных вида отделки на выбор покупателей.

Читать полностью
    Позвонить Написать
    11 752 650 Р144 800 $ или 125 700
    Агент
    +7 (939) 110-83-63
    Начать чат с агентом
    Похожие предложения в Перми
    2-к кв. Пермский край, Пермь ул. Дзержинского, 31Б (64.0 м) - Фото 1
    2-к кв. Пермский край, Пермь ул. Дзержинского, 31Б (64.0 м) - Фото 2
    2-комнатная квартира, общая площадь 64м², жилая 22м², кухня 21м²

    В новом жилом комплексе комфорт+ класса Камаполис , расположенном на берегу реки Камы, продается 2-комнатная квартира площадью 64.00 кв. м. Квартира находится в 3 доме. Девелопер проекта - Железно .Транспортная доступность• Трамвайная остановка всего...
    • 64 м²
    • 2-ком
    • 2/8 эт.
    • монолит
    11 446 860 Р
    Агент
    +7 (939) Показать номер
    Посмотреть контакты
    2-к кв. Пермский край, Пермь ул. Дзержинского, 31Б (72.0 м) - Фото 1
    2-к кв. Пермский край, Пермь ул. Дзержинского, 31Б (72.0 м) - Фото 2
    2-комнатная квартира, общая площадь 72м², жилая 27м², кухня 22м²

    В новом жилом комплексе комфорт+ класса Камаполис , расположенном на берегу реки Камы, продается 2-комнатная квартира площадью 72.00 кв. м. с предчистовой отделкой. Квартира находится в 3 доме. Девелопер проекта - Железно .Транспортная доступность•...
    • 72 м²
    • 2-ком
    • 5/8 эт.
    • монолит
    11 400 380 Р
    Агент
    +7 (939) Показать номер
    Посмотреть контакты
    2-к кв. Пермский край, Пермь ул. Дзержинского, 31Б (64.0 м) - Фото 1
    2-к кв. Пермский край, Пермь ул. Дзержинского, 31Б (64.0 м) - Фото 2
    2-комнатная квартира, общая площадь 64м², жилая 26м², кухня 21м²

    В новом жилом комплексе комфорт+ класса Камаполис , расположенном на берегу реки Камы, продается 2-комнатная квартира площадью 64.00 кв. м. Квартира находится в 3 доме. Девелопер проекта - Железно .Транспортная доступность• Трамвайная остановка всего...
    • 64 м²
    • 2-ком
    • 5/8 эт.
    • монолит
    12 236 800 Р
    Агент
    +7 (939) Показать номер
    Посмотреть контакты
    2-к кв. Пермский край, Пермь ул. Дзержинского, 31Б (64.0 м) - Фото 1
    2-к кв. Пермский край, Пермь ул. Дзержинского, 31Б (64.0 м) - Фото 2
    2-комнатная квартира, общая площадь 64м², жилая 26м², кухня 21м²

    В новом жилом комплексе комфорт+ класса Камаполис , расположенном на берегу реки Камы, продается 2-комнатная квартира площадью 64.00 кв. м. Квартира находится в 3 доме. Девелопер проекта - Железно .Транспортная доступность• Трамвайная остановка всего...
    • 64 м²
    • 2-ком
    • 7/8 эт.
    • монолит
    12 352 000 Р
    Агент
    +7 (939) Показать номер
    Посмотреть контакты
    2-к кв. Пермский край, Пермь ул. Дзержинского, 31Б (61.0 м) - Фото 1
    2-к кв. Пермский край, Пермь ул. Дзержинского, 31Б (61.0 м) - Фото 2
    2-комнатная квартира, общая площадь 61м², жилая 24м², кухня 19м²

    В новом жилом комплексе комфорт+ класса Камаполис , расположенном на берегу реки Камы, продается 2-комнатная квартира площадью 61.00 кв. м. Квартира находится в 3 доме. Девелопер проекта - Железно .Транспортная доступность• Трамвайная остановка всего...
    • 61 м²
    • 2-ком
    • 4/7 эт.
    • монолит
    11 126 430 Р
    Агент
    +7 (939) Показать номер
    Посмотреть контакты

    Не нашли подходящего объявления?

    Оставьте заявку, и наши риэлторы подберут квартиру в новостройке в районе Перми

    (0)