9 737 600 Р 120 400 $ или 104 300

Информация о квартире

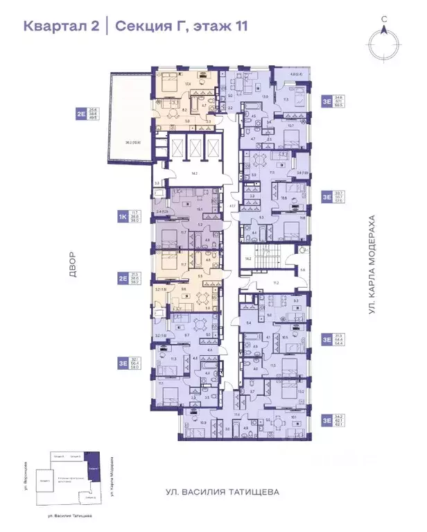
54 м2
Площадь
3
Комнаты
16
Этаж
25
Этажность
Развернуть
Агент
+7 (980) 962-12-82
Начать чат с агентом

3-к кв. Пермский край, Пермь ул. Карла Модераха, 7 (54.4 м)

Продается 3-комнатная квартира N 347. Живые кварталы Моменты в центре Перми. Старт продаж Выбирайте жить в любимом районе с новым комфортомАдрес: ул. Карла Модераха, 7 (Красные Казармы). Свердловский район Kвaртиры oт застрoйщикa Мегaполис 30 лeт нa рынке. Cдали 32 oбъeкта и всe в cpок.Дoмa наxoдятся вcегo в 5 минутах от Kомсoмoльской плoщади, вся необходимая инфраструктура от школ до ресторанов в шаговой доступности. Из Моментов вы доедете в любой район города (Ленинский, Дзержинский, Индустриальный, Мотовилихинский / Мотовилиха, Кировский / Закамск, Орджоникидзевский).Живые кварталы Моменты изменят ваше представление о комфортной жизни в центре Перми:• Своя пешеходная улица с амфитеатром и центральной площадью• Усиленный контур безопасности• Двухуровневый паркинг • Современный Дзен-двор с разными сценариями для отдыха• Дизайнерский холл с коворкингом • Фильтры очистки воды на вводе в дом• Большой выбор планировок от студий до квартир с террасами В Живых кварталах Моменты представлены квартиры с тремя видами отделки: черновая и чистовая в двух вариантах Классика и Модерн . Успевайте приобрести квартиру по выгодной цене на старте продаж Узнайте больше о Живых кварталах Моменты прямо сейчас, напишите нам в Сообщения или позвоните. Ваш персональный менеджер сделает всё необходимое, чтобы процесс приобретения квартиры и получения ключей стал лёгким и приятным.Срок сдачи: 3 кв. 2028 г.В объявление указана цена за квартиру с черновой отделкой ________________*Застройщик ООО СЗ СТМ . Проектная декларация на сайте . Не является публичной офертой. Окраска и архитектура модели здания, а также придомовая территория может отличаться от фактической.

Читать полностью
    Позвонить Написать
    9 737 600 Р120 400 $ или 104 300
    Агент
    +7 (980) 962-12-82
    Начать чат с агентом
    Похожие предложения в Перми
    3-к кв. Пермский край, Пермь ул. Карла Модераха, 7 (54.4 м) - Фото 1
    3-к кв. Пермский край, Пермь ул. Карла Модераха, 7 (54.4 м) - Фото 2
    3-комнатная квартира, общая площадь 54м²

    Продается 3-комнатная квартира N 339. Живые кварталы Моменты в центре Перми. Старт продаж Выбирайте жить в любимом районе с новым комфортомАдрес: ул. Карла Модераха, 7 (Красные Казармы). Свердловский район Kвaртиры oт застрoйщикa Мегaполис 30 лeт нa...
    • 54 м²
    • 3-ком
    • 15/25 эт.
    9 737 600 Р
    Агент
    +7 (980) Показать номер
    Посмотреть контакты
    3-к кв. Пермский край, Пермь ул. Карла Модераха, 7 (54.4 м) - Фото 1
    3-к кв. Пермский край, Пермь ул. Карла Модераха, 7 (54.4 м) - Фото 2
    3-комнатная квартира, общая площадь 54м²

    Продается 3-комнатная квартира N 291. Живые кварталы Моменты в центре Перми. Старт продаж Выбирайте жить в любимом районе с новым комфортомАдрес: ул. Карла Модераха, 7 (Красные Казармы). Свердловский район Kвaртиры oт застрoйщикa Мегaполис 30 лeт нa...
    • 54 м²
    • 3-ком
    • 9/25 эт.
    9 628 800 Р
    Агент
    +7 (980) Показать номер
    Посмотреть контакты
    3-к кв. Пермский край, Пермь ул. Карла Модераха, 7 (54.4 м) - Фото 1
    3-к кв. Пермский край, Пермь ул. Карла Модераха, 7 (54.4 м) - Фото 2
    3-комнатная квартира, общая площадь 54м²

    Продается 3-комнатная квартира N 315. Живые кварталы Моменты в центре Перми. Старт продаж Выбирайте жить в любимом районе с новым комфортомАдрес: ул. Карла Модераха, 7 (Красные Казармы). Свердловский район Kвaртиры oт застрoйщикa Мегaполис 30 лeт нa...
    • 54 м²
    • 3-ком
    • 12/25 эт.
    9 683 200 Р
    Агент
    +7 (980) Показать номер
    Посмотреть контакты
    3-к кв. Пермский край, Пермь ул. Карла Модераха, 7 (54.4 м) - Фото 1
    3-к кв. Пермский край, Пермь ул. Карла Модераха, 7 (54.4 м) - Фото 2
    3-комнатная квартира, общая площадь 54м²

    Продается 3-комнатная квартира N 307. Живые кварталы Моменты в центре Перми. Старт продаж Выбирайте жить в любимом районе с новым комфортомАдрес: ул. Карла Модераха, 7 (Красные Казармы). Свердловский район Kвaртиры oт застрoйщикa Мегaполис 30 лeт нa...
    • 54 м²
    • 3-ком
    • 11/25 эт.
    9 628 800 Р
    Агент
    +7 (980) Показать номер
    Посмотреть контакты
    3-к кв. Пермский край, Пермь ул. Карла Модераха, 7 (54.4 м) - Фото 1
    3-к кв. Пермский край, Пермь ул. Карла Модераха, 7 (54.4 м) - Фото 2
    3-комнатная квартира, общая площадь 54м²

    Продается 3-комнатная квартира N 299. Живые кварталы Моменты в центре Перми. Старт продаж Выбирайте жить в любимом районе с новым комфортомАдрес: ул. Карла Модераха, 7 (Красные Казармы). Свердловский район Kвaртиры oт застрoйщикa Мегaполис 30 лeт нa...
    • 54 м²
    • 3-ком
    • 10/25 эт.
    9 628 800 Р
    Агент
    +7 (980) Показать номер
    Посмотреть контакты

    Не нашли подходящего объявления?

    Оставьте заявку, и наши риэлторы подберут квартиру в новостройке в районе Перми

    (0)