Реализация объекта недвижимости приостановлена

Информация о квартире

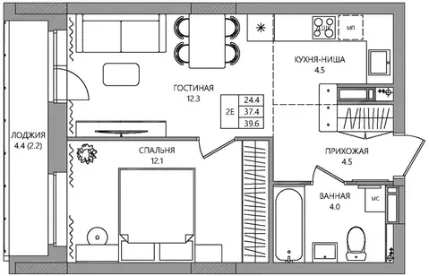
41.0 м2
Площадь
29.0 м2
Жилая
8.0 м2
Кухня
1
Комната
13
Этаж
20
Этажность
Развернуть

1-комнатная квартира: Пермь, улица Космонавта Леонова, 41к2 (41.93 м)

Просторная квартира в современном строящемся доме предлагает комфорт и выгодное расположение. Объект находится в развитом районе с полным набором социальной и коммерческой инфраструктуры. В шаговой доступности расположены общеобразовательные школы и детские сады, торгово-развлекательные центры «Планета и «Столица , а также банный комплекс. Для ежедневных прогулок и активного отдыха в непосредственной близости находится Черняевский лесопарк. Транспортная доступность обеспечена благодаря близости остановки общественного транспорта. Для владельцев автомобилей предусмотрен просторный подземный паркинг. Жизнь в доме организована с учетом потребностей семей с детьми: на благоустроенной территории расположена современная детская игровая площадка. лючевым преимуществом объекта являются открывающиеся из окон панорамные виды на город. По всем вопросам, связанным с ипотечным одобрением и организацией сделки, предоставляется полное сопровождение. Код пользователя: 107350Номер в базе:

Читать полностью

    Реализация объекта недвижимости приостановлена

    Не нашли подходящего объявления?

    Оставьте заявку, и наши риэлторы подберут квартиру в новостройке в районе Перми

    (0)