16 317 960 Р 214 400 $ или 184 000

Информация о квартире

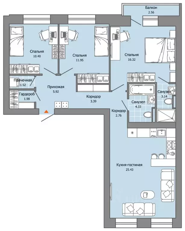
97 м2
Площадь
34 м2
Жилая
50 м2
Кухня
студия
Комнат
7
Этаж
15
Этажность

Дополнительная информация

Тип дома
монолит
Развернуть
Агент
+7 (939) 110-83-63
Начать чат с агентом

Студия Пермский край, Пермь ул. Дзержинского, 29Б (97.0 м)

В новом жилом комплексе комфорт+ класса Камаполис , расположенном на берегу реки Камы, продается 2-комнатная квартира площадью 97.00 кв. м. с предчистовой отделкой. Квартира находится в 1 доме. Девелопер проекта - Железно .Транспортная доступность• Трамвайная остановка всего в 3 минутах пешком;• 15 минут ходьбы до вокзала Пермь-2;• 10 минут на машине до центра города.Продуманный архитектурный проектКамаполис - это жизнь в соразмерной среде, спроектированной известными архитекторами. Жилые этажи Камаполиса строят из кирпича и по монолитной технологии, стены обладают высокой устойчивостью к нагрузкам, огнестойкостью, хорошей шумоизоляцией. Такие дома отлично сохраняют первоначальный внешний вид и радуют жителей долгие годы.Концептуальные лоббиКонцепция проекта продолжается интерьером лобби. Здесь преобладают естественные оттенки и текстуры, а мебель выполнена из экологичных материалов. Для удобства жителей созданы собственные колясочные и велосипедные, а для заботы о домашних любимцах предусмотрена лапомойка.Благоустройство Новый центр притяжения - всесезонный сквер, выполненный в тематике и стилистике пермского периода. Прогулочные зоны, игровые и спортивные площадки, релакс-зоны и места для творчества - все эти мультифункциональные пространства формируют сценарии для любого досуга. Любители особой приватности оценят соседские террасы - это специальные пространства для жителей, расположенные прямо на стилобате паркинга. Любуйтесь на реку, принимайте участие в совместных мероприятиях с соседями, с удовольствием работайте на свежем воздухе и приятно проводите время с близкими. Дополнительные преимущества• Собственный детский сад на 320 мест;• Стрит-ритейл с магазинами и кафе прямо на территории комплекса;• Управление домом через собственное мобильное приложение Мажордом ;•азных вида отделки на выбор покупателей.

Читать полностью
    Позвонить Написать
    16 317 960 Р214 400 $ или 184 000
    Агент
    +7 (939) 110-83-63
    Начать чат с агентом
    Похожие предложения
    Студия Пермский край, Пермь ул. Дзержинского, 29Б (97.0 м) - Фото 1
    Студия Пермский край, Пермь ул. Дзержинского, 29Б (97.0 м) - Фото 2
    студия, общая площадь 97м², жилая 34м², кухня 50м²

    В новом жилом комплексе комфорт+ класса Камаполис , расположенном на берегу реки Камы, продается 2-комнатная квартира площадью 97.00 кв. м. с предчистовой отделкой. Квартира находится в 1 доме. Девелопер проекта - Железно .Транспортная доступность•...
    • 97 м²
    • студия-ком
    • 6/15 эт.
    • монолит
    16 090 880 Р
    Агент
    +7 (939) Показать номер
    Посмотреть контакты
    3-к кв. Пермский край, Пермь ул. Дзержинского, 31Б (88.0 м) - Фото 1
    3-к кв. Пермский край, Пермь ул. Дзержинского, 31Б (88.0 м) - Фото 2
    3-комнатная квартира, общая площадь 88м², жилая 37м², кухня 29м²

    В новом жилом комплексе комфорт+ класса Камаполис , расположенном на берегу реки Камы, продается 3-комнатная квартира площадью 88.00 кв. м. с предчистовой отделкой. Квартира находится в 3 доме. Девелопер проекта - Железно .Транспортная доступность•...
    • 88 м²
    • 3-ком
    • 6/8 эт.
    • монолит
    15 355 370 Р
    Агент
    +7 (939) Показать номер
    Посмотреть контакты
    3-к кв. Пермский край, Пермь ул. Дзержинского, 31Б (88.0 м) - Фото 1
    3-к кв. Пермский край, Пермь ул. Дзержинского, 31Б (88.0 м) - Фото 2
    3-комнатная квартира, общая площадь 88м², жилая 37м², кухня 29м²

    В новом жилом комплексе комфорт+ класса Камаполис , расположенном на берегу реки Камы, продается 3-комнатная квартира площадью 88.00 кв. м. с предчистовой отделкой. Квартира находится в 3 доме. Девелопер проекта - Железно .Транспортная доступность•...
    • 88 м²
    • 3-ком
    • 7/8 эт.
    • монолит
    15 461 330 Р
    Агент
    +7 (939) Показать номер
    Посмотреть контакты
    2-к кв. Пермский край, Пермь ул. Дзержинского, 31Б (81.0 м) - Фото 1
    2-к кв. Пермский край, Пермь ул. Дзержинского, 31Б (81.0 м) - Фото 2
    2-комнатная квартира, общая площадь 81м², жилая 30м², кухня 27м²

    В новом жилом комплексе комфорт+ класса Камаполис , расположенном на берегу реки Камы, продается 2-комнатная квартира площадью 81.00 кв. м. Квартира находится в 3 доме. Девелопер проекта - Железно .Транспортная доступность• Трамвайная остановка всего...
    • 81 м²
    • 2-ком
    • 8/8 эт.
    • монолит
    15 488 200 Р
    Агент
    +7 (939) Показать номер
    Посмотреть контакты
    3-к кв. Пермский край, Пермь ул. Дзержинского, 35А (88.0 м) - Фото 1
    3-к кв. Пермский край, Пермь ул. Дзержинского, 35А (88.0 м) - Фото 2
    3-комнатная квартира, общая площадь 88м², жилая 38м², кухня 25м²

    Особенность планировки - отдельное помещение для постирочной, благодаря которому чистое белье теперь не будет нарушать эстетику квартиры, и вы сможете любоваться лучшими видами с балконов и лоджий.В новом жилом комплексе комфорт+ класса Камаполис , расположенном...
    • 88 м²
    • 3-ком
    • 8/8 эт.
    • монолит
    15 296 340 Р
    Агент
    +7 (939) Показать номер
    Посмотреть контакты

    Не нашли подходящего объявления?

    Оставьте заявку, и наши риэлторы подберут квартиру в новостройке в районе Перми

    (0)