8 540 760 Р 105 100 $ или 91 020

Информация о квартире

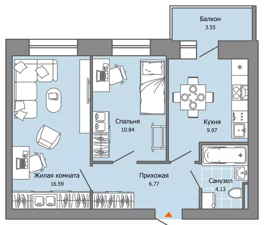
41 м2
Площадь
13 м2
Жилая
18 м2
Кухня
1
Комната
6
Этаж
8
Этажность

Дополнительная информация

Тип дома
монолит
Развернуть
Агент
+7 (939) 110-83-63
Начать чат с агентом

1-к кв. Пермский край, Пермь ул. Дзержинского, 35А (41.0 м)

В новом жилом комплексе комфорт+ класса Камаполис , расположенном на берегу реки Камы, продается 1-комнатная квартира площадью 41.00 кв. м. Квартира находится в 4 доме. Девелопер проекта - Железно .Транспортная доступность• Трамвайная остановка всего в 3 минутах пешком;• 15 минут ходьбы до вокзала Пермь-2;• 10 минут на машине до центра города.Продуманный архитектурный проектКамаполис - это жизнь в соразмерной среде, спроектированной известными архитекторами. Жилые этажи Камаполиса строят из кирпича и по монолитной технологии, стены обладают высокой устойчивостью к нагрузкам, огнестойкостью, хорошей шумоизоляцией. Такие дома отлично сохраняют первоначальный внешний вид и радуют жителей долгие годы.Концептуальные лоббиКонцепция проекта продолжается интерьером лобби. Здесь преобладают естественные оттенки и текстуры, а мебель выполнена из экологичных материалов. Для удобства жителей созданы собственные колясочные и велосипедные, а для заботы о домашних любимцах предусмотрена лапомойка.Благоустройство Новый центр притяжения - всесезонный сквер, выполненный в тематике и стилистике пермского периода. Прогулочные зоны, игровые и спортивные площадки, релакс-зоны и места для творчества - все эти мультифункциональные пространства формируют сценарии для любого досуга. Любители особой приватности оценят соседские террасы - это специальные пространства для жителей, расположенные прямо на стилобате паркинга. Любуйтесь на реку, принимайте участие в совместных мероприятиях с соседями, с удовольствием работайте на свежем воздухе и приятно проводите время с близкими. Дополнительные преимущества• Собственный детский сад на 320 мест;• Стрит-ритейл с магазинами и кафе прямо на территории комплекса;• Управление домом через собственное мобильное приложение Мажордом ;•азных вида отделки на выбор покупателей.

Читать полностью
    Позвонить Написать
    8 540 760 Р105 100 $ или 91 020
    Агент
    +7 (939) 110-83-63
    Начать чат с агентом
    Похожие предложения в Перми
    1-к кв. Пермский край, Пермь ул. Дзержинского, 35А (43.0 м) - Фото 1
    1-к кв. Пермский край, Пермь ул. Дзержинского, 35А (43.0 м) - Фото 2
    1-комнатная квартира, общая площадь 43м², жилая 13м², кухня 19м²

    В новом жилом комплексе комфорт+ класса Камаполис , расположенном на берегу реки Камы, продается 1-комнатная квартира площадью 43.00 кв. м. Квартира находится в 4 доме. Девелопер проекта - Железно .Транспортная доступность• Трамвайная остановка всего...
    • 43 м²
    • 1-ком
    • 8/8 эт.
    • монолит
    8 531 616 Р
    Агент
    +7 (939) Показать номер
    Посмотреть контакты
    1-к кв. Пермский край, Пермь ул. Дзержинского, 35А (46.0 м) - Фото 1
    1-к кв. Пермский край, Пермь ул. Дзержинского, 35А (46.0 м) - Фото 2
    1-комнатная квартира, общая площадь 46м², жилая 12м², кухня 20м²

    В новом жилом комплексе комфорт+ класса Камаполис , расположенном на берегу реки Камы, продается 1-комнатная квартира площадью 46.00 кв. м. Квартира находится в 4 доме. Девелопер проекта - Железно .Транспортная доступность• Трамвайная остановка всего...
    • 46 м²
    • 1-ком
    • 2/7 эт.
    • монолит
    8 447 670 Р
    Агент
    +7 (939) Показать номер
    Посмотреть контакты
    1-к кв. Пермский край, Пермь ул. Дзержинского, 35А (45.0 м) - Фото 1
    1-к кв. Пермский край, Пермь ул. Дзержинского, 35А (45.0 м) - Фото 2
    1-комнатная квартира, общая площадь 45м², жилая 12м², кухня 17м²

    В новом жилом комплексе комфорт+ класса Камаполис , расположенном на берегу реки Камы, продается 1-комнатная квартира площадью 45.00 кв. м. Квартира находится в 4 доме. Девелопер проекта - Железно .Транспортная доступность• Трамвайная остановка всего...
    • 45 м²
    • 1-ком
    • 2/7 эт.
    • монолит
    8 493 778 Р
    Агент
    +7 (939) Показать номер
    Посмотреть контакты
    2-к кв. Пермский край, Пермь ул. Дзержинского, 35А (50.0 м) - Фото 1
    2-к кв. Пермский край, Пермь ул. Дзержинского, 35А (50.0 м) - Фото 2
    2-комнатная квартира, общая площадь 50м², жилая 28м², кухня 10м²

    В новом жилом комплексе комфорт+ класса Камаполис , расположенном на берегу реки Камы, продается 2-комнатная квартира площадью 50.00 кв. м. Квартира находится в 4 доме. Девелопер проекта - Железно .Транспортная доступность• Трамвайная остановка всего...
    • 50 м²
    • 2-ком
    • 5/8 эт.
    • монолит
    8 555 784 Р
    Агент
    +7 (939) Показать номер
    Посмотреть контакты
    2-к кв. Пермский край, Пермь ул. Дзержинского, 35А (49.0 м) - Фото 1
    2-к кв. Пермский край, Пермь ул. Дзержинского, 35А (49.0 м) - Фото 2
    2-комнатная квартира, общая площадь 49м², жилая 27м², кухня 10м²

    В новом жилом комплексе комфорт+ класса Камаполис , расположенном на берегу реки Камы, продается 2-комнатная квартира площадью 49.00 кв. м. Квартира находится в 4 доме. Девелопер проекта - Железно .Транспортная доступность• Трамвайная остановка всего...
    • 49 м²
    • 2-ком
    • 5/9 эт.
    • монолит
    8 583 704 Р
    Агент
    +7 (939) Показать номер
    Посмотреть контакты

    Не нашли подходящего объявления?

    Оставьте заявку, и наши риэлторы подберут квартиру в новостройке в районе Перми

    (0)