Реализация объекта недвижимости приостановлена

Информация о квартире

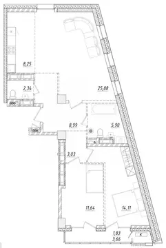
81.0 м2
Площадь
51.0 м2
Жилая
3
Комнаты
4
Этаж
6
Этажность
Развернуть

3-комнатная квартира: Пермь, Советская улица, 16А (81.2 м)

**Премиальный дом КАМА на Советской, 16а**«КАМА - дом с достойным окружением: несколько минут до набережной, Оперного театра, музеев, престижных школ, парков, топовых ресторанов и бутиков. Выбирая премиальный дом «КАМА , не придется соглашаться на меньшее.**КВАРТИРОГРАФИЯ**• Квартиры с террасами • Двухуровневые квартиры с камином • Wow-панорамы на реку Кама • Мастер-спальни, гардеробные, лаундри • Высота потолков до 3.3 метра**ИНФРАСТРУКТУРА ДОМА**• Сервис уровня отеля 5\* • Собственный wellness и spa • Гостиная и клуб для резидентов дома • Кабинет семейного врача • Детcкие игровые в доме и на воздухе • Семейный ресторан • Камерный двор-сад • 3-уровневый подземный паркинг с местами XXL, автомойкой и зарядными станциями для электрокаров**АЛЬФА-СТАНДАРТЫ комфортного и современного жилья:****5 УРОВНЕЙ ШУМОИЗОЛЯЦИИ**• Многослойные межквартирные стены с дополнительным слоем звукопоглощающих материалов; • Многослойный «тихий пол Эковер степ; • Стальные входные двери с дополнительным шумопоглощающим слоем; • Шумозащитные окна из 5-камерного профиля; • Коммуникации в 80 квартир вынесены в МОПы, а в квартирах применяются шумопоглощающие трубы;**СОВРЕМЕННЫЕ ИНЖЕНЕРНЫЕ СИСТЕМЫ**• Горизонтальная система отопления Uponor; • Автономная газовая котельная; • Импортные бесшумные лифты премиум-класса ; • Система приточной вентиляции; • Внутрипольные конвекторы; **•** Отдельные вентканалы в каждой квартире; • **Питьевой водопровод в каждой квартире и очистка воды до уровня бутилированной.****БЕЗОПАСНОСТЬ**• Огороженная территория • Двор без машин на стилобате; • Видеонаблюдение 24/7; • Бесключевой доступ для жителей дома; • Консьерж-сервис.**ОТДЕЛКА**Квартиры сдаются в предчистовой отделке white box.• Установлены индивидуальные приборы учета электроэнергии, горячей и холодной воды, отопления • Производится подводка труб холодной и горячей воды, питьевого водопровода и канализации • Устройство тёплого пола в санузле и прихожей • Выполнена стяжка пола с шумоизоляцией • Смонтирована система отопления, установлены радиаторы со скрытым подключением от стены • Стены выровнены и оштукатурены • Установлены оконные конструкции, откосы закрыты ПВХ–панелями, установлены подоконники**ПРОЕКТ ОПЫТНОГО ДЕВЕЛОПЕРА**Группа компаний Альфа возводит в Перми дома комфорт- и бизнес-класса. За 17 лет построила 26 домов и выработала уникальные Альфа стандарты строительства: «тихий пол и 6 дополнительных уровней шумоизоляции, отдельный водопровод для питьевой воды, очищенной до уровня бутилированной. Репутация застройщика подтверждена наивысшим баллом в рейтинге застройщиков Пермского края по показателям скорости и качества строительства.

Читать полностью

    Реализация объекта недвижимости приостановлена

    Не нашли подходящего объявления?

    Оставьте заявку, и наши риэлторы подберут квартиру в новостройке в районе Перми

    (0)