5 252 000 Р 65 060 $ или 55 570

Информация о квартире

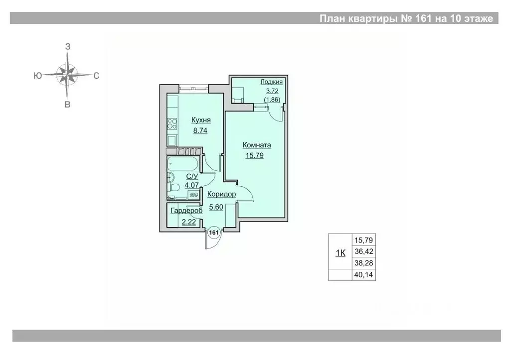
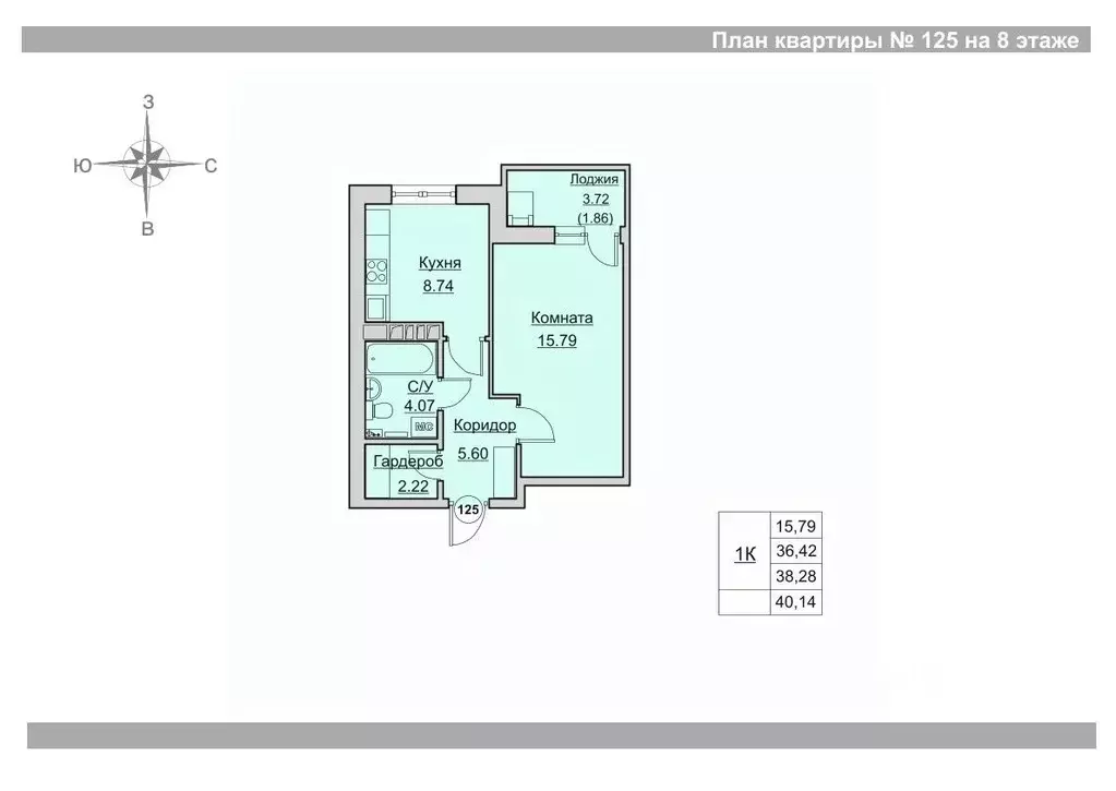
38 м2
Площадь
8 м2
Кухня
1
Комната
5
Этаж
24
Этажность
Развернуть
Агент
+7 (982) 250-60-21
Начать чат с агентом

1-комнатная квартира: Пермь, улица Гусарова, 5А (38.28 м)

Наполнение домаНа первом этаже расположены колясочные и комната для консьержа.Предусмотрено четыре высокоскоростных и безопасных лифта с современным дизайном и качественной отделкой.Дизайнерские холлы выполняются по авторскому проекту.Уютные и эргономичные квартиры правильной формы для счастливых семей. Широкий выбор конфигураций и размеров позволяет подобрать идеальный вариант под свой бюджет.Наши СМАРТ-планировки тщательно проработаны проектировщиками для того, чтобы ваша жизнь в наших квартирах заиграла новыми красками. Классические и европланировки с кухней-гостиной под разный стиль жизни.Ухоженный и благоустроенный дворУникальное решение – дворовая территория на уровне второго этажа. Возможность проводить время с родными и близкими в спокойной и уютной атмосфере. Эта часть станет одним из любимых мест для посещения.Двор без машин – дворовая территория создана таким образом, чтобы обезопасить взрослых и детей от автомобильного транспорта.Разнообразие игровых зон и тематических площадок для детей разного возраста: качели, карусели и интерактивные зоны.Зона воркаута будет оснащена различными тренажёрами и спортивными комплексами. Также на территории расположены футбольная и баскетбольная площадка. Дети и взрослые могут проводить совместные занятия спортом и устраивать соревнования.Безбарьерная средаДля нас важно, чтобы все жители комплекса чувствовали себя максимально безопасно и комфортно. На территории участка предусмотрены пешеходные пути с возможностью движения маломобильных групп населения: перепады высот между входной площадкой и наружной площадкой придомовой территории не превышает 50мм.

Читать полностью
    Позвонить Написать
    5 252 000 Р65 060 $ или 55 570
    Агент
    +7 (982) 250-60-21
    Начать чат с агентом
    Похожие предложения в Перми
    1-к кв. Пермский край, Пермь ул. Гусарова, 5А (38.28 м) - Фото 1
    1-к кв. Пермский край, Пермь ул. Гусарова, 5А (38.28 м) - Фото 2
    1-комнатная квартира, общая площадь 38м², кухня 8м²

    Наполнение домаНа первом этаже расположены колясочные и комната для консьержа.Предусмотрено четыре высокоскоростных и безопасных лифта с современным дизайном и качественной отделкой.Дизайнерские холлы выполняются по авторскому проекту.Уютные и эргономичные...
    • 38 м²
    • 1-ком
    • 8/24 эт.
    5 299 000 Р
    Агент
    +7 (984) Показать номер
    Посмотреть контакты
    1-к кв. Пермский край, Пермь ул. Гусарова, 5А (38.28 м) - Фото 1
    1-к кв. Пермский край, Пермь ул. Гусарова, 5А (38.28 м) - Фото 2
    1-комнатная квартира, общая площадь 38м², кухня 8м²

    Наполнение домаНа первом этаже расположены колясочные и комната для консьержа.Предусмотрено четыре высокоскоростных и безопасных лифта с современным дизайном и качественной отделкой.Дизайнерские холлы выполняются по авторскому проекту.Уютные и эргономичные...
    • 38 м²
    • 1-ком
    • 7/24 эт.
    5 299 000 Р
    Агент
    +7 (984) Показать номер
    Посмотреть контакты
    1-к кв. Пермский край, Пермь ул. Гусарова, 5А (38.28 м) - Фото 1
    1-к кв. Пермский край, Пермь ул. Гусарова, 5А (38.28 м) - Фото 2
    1-комнатная квартира, общая площадь 38м², кухня 8м²

    Наполнение домаНа первом этаже расположены колясочные и комната для консьержа.Предусмотрено четыре высокоскоростных и безопасных лифта с современным дизайном и качественной отделкой.Дизайнерские холлы выполняются по авторскому проекту.Уютные и эргономичные...
    • 38 м²
    • 1-ком
    • 3/24 эт.
    5 252 000 Р
    Агент
    +7 (984) Показать номер
    Посмотреть контакты
    1-к кв. Пермский край, Пермь ул. Гусарова, 5А (38.28 м) - Фото 1
    1-к кв. Пермский край, Пермь ул. Гусарова, 5А (38.28 м) - Фото 2
    1-комнатная квартира, общая площадь 38м², кухня 8м²

    Наполнение домаНа первом этаже расположены колясочные и комната для консьержа.Предусмотрено четыре высокоскоростных и безопасных лифта с современным дизайном и качественной отделкой.Дизайнерские холлы выполняются по авторскому проекту.Уютные и эргономичные...
    • 38 м²
    • 1-ком
    • 10/24 эт.
    5 299 000 Р
    Агент
    +7 (984) Показать номер
    Посмотреть контакты
    1-к кв. Пермский край, Пермь ул. Гусарова, 5А (38.28 м) - Фото 1
    1-к кв. Пермский край, Пермь ул. Гусарова, 5А (38.28 м) - Фото 2
    1-комнатная квартира, общая площадь 38м², кухня 8м²

    Наполнение домаНа первом этаже расположены колясочные и комната для консьержа.Предусмотрено четыре высокоскоростных и безопасных лифта с современным дизайном и качественной отделкой.Дизайнерские холлы выполняются по авторскому проекту.Уютные и эргономичные...
    • 38 м²
    • 1-ком
    • 11/24 эт.
    5 347 000 Р
    Агент
    +7 (984) Показать номер
    Посмотреть контакты

    Не нашли подходящего объявления?

    Оставьте заявку, и наши риэлторы подберут квартиру в новостройке в районе Перми

    (0)