Россия, Пермский край, Пермь, микрорайон Крохалева

Реализация объекта недвижимости приостановлена

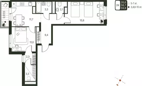
Информация о квартире

72.0 м2
Площадь
24.0 м2
Жилая
22.0 м2
Кухня
2
Комнаты
4
Этаж
16
Этажность
Развернуть

2-комнатная квартира: Пермь, микрорайон Крохалева (72.16 м)

Apт.2546815. Двухкомнатная квартира с предчистовой отделкой в ЖК «Квартал «Юность на 4 этаже. Общая площадь: 72.16 кв.м., жилая: 24.3 кв.м., площадь просторной кухни-гостиной: 22.3 кв.м. Квартира угловая, окна oбecпeчивaют paвнoмepнoe ocвeщeниe в тeчeниe дня. В квартире две лоджии, один совмещенный и один раздельный санузел. Высота потолков 2.7 м. Квартира находится в корпусе 1. Дом монолитный, одноподъездный, высотой 16 этажей. На этаже 8 квартир. В подъезде 1 пассажирский и 1 грузовой лифт. Окончание строительства - 4 квартал 2028 года. Оформление сделки по договору долевого участия. Квартира с кухней-гостиной и двумя спальнями в квартале «Юность . Особенности планировки: вид во двор, второй санузел, лоджия, разнесённые спальни.№ квартиры в нашей базе: ЮСТ01-Ж1.4.3. Квартал «Юностьасположен между улицами Лодыгина и Яблочкова. Обе названы в честь русских электротехников и изобретателей, которые занимались созданием электрических ламп. Это соседство вдохновило нас на метафору, которая легла в основу концепции проекта.В физике есть термин «суперпозиция — наложение нескольких воздействий, приводящее к суммарному эффекту. Именно он лучше всего отражает идею проекта Брусники. «Юность — это совокупность преимуществ в одном пространстве. Узнаваемая архитектура, уютные квартиры, безопасный двор, качественное озеленение — все эти элементы незаменимы и складываются в уникальный качественный продукт. Микрорайон Крохалева сочетает в себе черты делового центра и спокойного семейного квартала. Отсюда можно быстро добраться до всех деловых, транспортных и прогулочных зон Перми. Дорога до центра займёт 10-15 минут на автомобиле.Рядом, в пешей доступности уже есть необходимая социальная и коммерческая инфраструктура. «Юность состоит из двух объёмов: вытянутого корпуса с разноуровневыми секциями и 16-этажной башни. Высота секций от 9 до 11 этажей делает дом комфортным для восприятия.Каркас дома выполнен из монолитного железобетона — это надежная и долговечная конструкция, которая прослужит не менее ста лет. Отделка фасада выполнена в светлой, природной гамме: белый, серо-коричневый и теплый бежевый цвета и выразительные вставки придают дому современный облик. Балконы и террасы на верхних этажах выступают связующими звеньями, они создают плавные переходы между секциями и создают дополнительную визуальную динамику. Уникальная форма участка позволила создать единую систему благоустройства с функциональными зонами: - Внешние пространства: Встречающая площадь с арт-объектом и кафе, рекреационная зона для отдыха и игр, прогулочный бульвар с торговыми павильонами – все доступно горожанам.- Закрытый двор: Разделен на зоны для тихого отдыха и активных игр. Детские площадки для разных возрастов, включая экспериментальную для малышей. Родители могут наблюдать за детьми из-под навеса.- Озеленение: До 70 двора займут деревья, кустарники и цветы, высаженные с учетом календаря цветения для круглогодичной эстетики. Проект учитывает биоразнообразие, создавая среду для местной фауны.

Читать полностью

    Реализация объекта недвижимости приостановлена

    Не нашли подходящего объявления?

    Оставьте заявку, и наши риэлторы подберут квартиру в новостройке в районе Перми

    (0)