3 870 000 Р 49 470 $ или 42 020

Информация о квартире

47 м2
Площадь
32 м2
Жилая
6 м2
Кухня
2
Комнаты
2
Этаж
5
Этажность

Дополнительная информация

Тип дома
панельный
Развернуть
Агент
+7 (919) 110-84-82
Начать чат с агентом

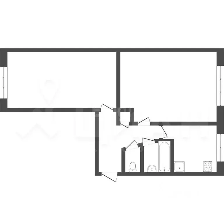
2-к кв. Пермский край, Пермь ул. Фадеева, 14 (47.6 м)

Продается уютная двухкомнатная квартира в Перми на улице Фадеева, 14. Общая площадь составляет 47 кв. м, жилая — 32.4 кв. м, кухня — 6.4 кв. м. Квартира расположена на 2 этаже 5-этажного панельного дома, построенного в 1982 году. Высота потолков — 2.6 метра. Из окон открывается вид во двор, в квартире есть балкон.В квартире сделан косметический ремонт. Комнаты светлые и уютные, планировка позволяет использовать пространство максимально эффективно. Кухня компактная, но удобная для приготовления пищи. Санузел отдельный, что очень удобно для семьи. Балкон станет отличным местом для отдыха на свежем воздухе.Дом в хорошем состоянии, ухоженный двор. Во дворе предусмотрена наземная парковка, поэтому можно не беспокоиться о месте для автомобиля. Свое ТСЖ, низкие коммунальные платежи.Район с развитой инфраструктурой. В шаговой доступности находятся школы и детские сады, что очень удобно для семей с детьми. Рядом расположены клиники и магазины, где можно купить все необходимое. Отличная транспортная доступность: рядом остановки общественного транспорта, что позволяет быстро добраться до любого района города.Квартира продается без обременений, возможна покупка в ипотеку. Все документы готовы к сделке, чистая история. Приглашаем вас на просмотр квартиры. Записывайтесь на удобное время, чтобы лично оценить все преимущества этого предложения.

Читать полностью

    Для того, чтобы купить двухкомнатную квартиру по адресу: Пермь, Кировский, ул. Фадеева, 14, позвоните по телефону +7 (919) 110-84-82. Торопитесь! Объявление №30092633663 о продаже двухкомнатной квартиры опубликовано 24 декабря 2025.

    Позвонить Написать
    3 870 000 Р49 470 $ или 42 020
    Агент
    +7 (919) 110-84-82
    Начать чат с агентом
    Похожие предложения
    1-к кв. Пермский край, Пермь ул. Танцорова, 25 (38.5 м) - Фото 1
    1-к кв. Пермский край, Пермь ул. Танцорова, 25 (38.5 м) - Фото 2
    1-комнатная квартира, общая площадь 38м², жилая 16м², кухня 8м²

    В срочной продаже отличный вариант по приятной цене Квартира светлая, просторная и уютная. Не угловая Дом 600-ой серии, расположение дома очень удобное - абсолютно всё, что нужно для...
    • 38 м²
    • 1-ком
    • 5/10 эт.
    • панельный
    3 990 000 Р
    Агент
    +7 (912) Показать номер
    Посмотреть контакты
    2-к кв. Пермский край, Пермь ул. Адмирала Ушакова, 5 (41.1 м) - Фото 1
    2-к кв. Пермский край, Пермь ул. Адмирала Ушакова, 5 (41.1 м) - Фото 2
    2-комнатная квартира, общая площадь 41м², жилая 28м², кухня 6м²

    Уютная светлая 2-комнатная квартира со свежим ремонтом.Рациональная планировка - в квартире оборудована вместительная кладовая для хранения вещей и обособленная непроходная входная зона в коридоре, благодаря ей грязь с уличной обуви не разносится по квартире.В...
    • 41 м²
    • 2-ком
    • 1/4 эт.
    • панельный
    3 800 000 Р
    Агент
    +7 (982) Показать номер
    Посмотреть контакты
    3-к кв. Пермский край, Пермь ул. Александра Невского, 32 (60.1 м) - Фото 1
    3-к кв. Пермский край, Пермь ул. Александра Невского, 32 (60.1 м) - Фото 2
    3-комнатная квартира, общая площадь 60м², жилая 41м², кухня 6м²

    pВ продаже уютная 3-х к квартира, один собственник, остается кухонный гарнитур , плита , вытяжка , духовой шкаф/pbr Номер заявки strongв базе компании: 115937./strong При обращении в компанию назовите этот номер сотруднику, это поможет быстрее обработать...
    • 60 м²
    • 3-ком
    • 3/3 эт.
    • блочный
    3 900 000 Р
    Агент
    +7 (919) Показать номер
    Посмотреть контакты
    1-к кв. Пермский край, Пермь ул. Адмирала Ушакова, 55/1 (35.7 м) - Фото 1
    1-к кв. Пермский край, Пермь ул. Адмирала Ушакова, 55/1 (35.7 м) - Фото 2
    1-комнатная квартира, общая площадь 35м², кухня 7м²

    Продается уютная однокомнатная квартира общей площадью 35,7 кв.м., расположенная на 6 этаже 9-этажного дома. Дом находится в хорошо развитом районе города с отличной транспортной доступностью. В квартире выполнен простой ремонт, позволяющий заехать и...
    • 35 м²
    • 1-ком
    • 6/9 эт.
    • кирпичный
    3 800 000 Р
    Агент
    +7 (982) Показать номер
    Посмотреть контакты
    1-к кв. Пермский край, Пермь Сысольская ул., 8А (34.4 м) - Фото 1
    1-к кв. Пермский край, Пермь Сысольская ул., 8А (34.4 м) - Фото 2
    1-комнатная квартира, общая площадь 34м², кухня 8м²

    Продается светлая однокомнатная квартира общей площадью 34,4 м, расположенная на 4-м этаже 9-этажного дома. Дом находится в развитом районе города с отличной транспортной доступностью. В шаговой доступности есть все необходимое: магазины, школы, детские...
    • 34 м²
    • 1-ком
    • 4/9 эт.
    • кирпичный
    4 000 000 Р
    Агент
    +7 (982) Показать номер
    Посмотреть контакты

    Не нашли подходящего объявления?

    Оставьте заявку, и наши риэлторы подберут квартиру в районе Перми

    (0)