6 000 000 Р 76 620 $ или 65 530

Информация о квартире

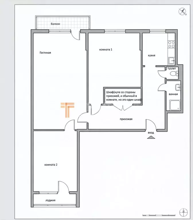
62 м2
Площадь
29 м2
Жилая
6 м2
Кухня
3
Комнаты
7
Этаж
9
Этажность

Дополнительная информация

Тип дома
панельный
Развернуть
Агент
+7 (919) 110-65-38
Начать чат с агентом

3-к кв. Пермский край, Пермь ул. Архитектора Свиязева, 22 (62.8 м)

Арт.Добро пожаловать в квартиру для большой и дружной семьи в самом сердце Нагорного Это не просто квадратные метры — это честное, надежное жилье, где каждый уголок дышит уютом и теплом. Пространство, которое встречает вас свежестью косметического ремонта и редким для города сочетанием комфорта и отличной локации.Квартира, которая дарит теплоС первого шага вы почувствуете: здесь по-домашнему хорошо.Свежий косметический ремонт: квартира выглядит аккуратно и опрятно — можно заезжать сразу.Раздельный санузел: ванная и туалет полностью облицованы плиткой — это гигиенично, красиво и избавляет вас от лишних трат на ремонт.Особый бонус — мебель с историей качества: в подарок новым владельцам остается кухонный гарнитур и великолепный шкаф из бука (Югославия) со столом и стульями. Это та самая мебель, которая выглядит как новая спустя годы и добавляет интерьеру благородства.Планировка для жизни, а не просто для мебели62,8 кв. метра полезного пространства, где у каждого будет свой личный уголок: Проходной зал: Это сердце квартиры, где стоит качественная югославская мебель. Открытое и просторное, оно объединяет семью для совместных вечеров. Изолированная спальня: Ваше личное укрытие, полностью отделенное от общей зоны, где можно насладиться тишиной. Третья комната (проходная): Удобно расположена за залом, она идеально подходит для детской или рабочего кабинета, создавая уютный личный уголок. Двусторонность ( Распашонка ): Квартира проветривается, в ней всегда есть и солнечная, и теневая стороны. Два наружных пространства: Редкая удача — и балкон, и лоджия Одно для хранения, другое — для утреннего кофе с видом на город. Встроенный шкаф-купе: Умное решение для хранения вещей, освобождающее место в комнатах.Преимущества, которые реально решают:7 этаж из 9 — золотая середина. Отличный обзор, много естественного света и минимум уличной пыли.Действительно тёплый дом — классическая застройка, проверенная временем.Раздельный санузел в плитке — практично и долговечно.Качественная мебель в комплекте — из натурального дерева, в отличном состоянии.Балкон + Лоджия — максимум пространства для ваших идей.Идеально для детей — Лицей 3 прямо за порогом (2-4 минуты), детские сады 403 в шаговой доступности.Зеленое окружение — Парк Победы и Роща для прогулок на свежем воздухе совсем рядом.Всё под рукой — от мастерских до крупных ТРК Столица и Планета в быстрой доступности.

Читать полностью

    Для того, чтобы купить трехкомнатную квартиру по адресу: Пермь, Индустриальный, ул. Архитектора Свиязева, 22, позвоните по телефону +7 (919) 110-65-38. Торопитесь! Объявление №30094537927 о продаже трехкомнатной квартиры опубликовано 31 марта 2026.

    Позвонить Написать
    6 000 000 Р76 620 $ или 65 530
    Агент
    +7 (919) 110-65-38
    Начать чат с агентом
    Похожие предложения
    1-к кв. Пермский край, Пермь ш. Космонавтов, 309Ак1 (34.4 м) - Фото 1
    1-к кв. Пермский край, Пермь ш. Космонавтов, 309Ак1 (34.4 м) - Фото 2
    1-комнатная квартира, общая площадь 34м², жилая 11м², кухня 9м²

    Отличная квартира с отделкой в доме комфорт-классаПерспективный развивающийся район. Рядом строится новый автовокзал, новый жилой квартал.ID объекта в нашей базе: 1856
    • 34 м²
    • 1-ком
    • 23/25 эт.
    • монолит
    5 900 000 Р
    Агент
    +7 (982) Показать номер
    Посмотреть контакты
    3-к кв. Пермский край, Пермь Стахановская ул., 2 (53.0 м) - Фото 1
    3-к кв. Пермский край, Пермь Стахановская ул., 2 (53.0 м) - Фото 2
    3-комнатная квартира, общая площадь 53м², кухня 6м²

    Продается трехкомнатная квартира общей площадью 53 кв.м;расположенная на седьмом этаже девятиэтажного дома в хорошо развитом районе города с хорошей транспортной доступностью..Развитая локация.Все самое необходимое в шаговой доступности.:магазины ;школы...
    • 53 м²
    • 3-ком
    • 7/8 эт.
    • блочный
    6 000 000 Р
    Агент
    +7 (982) Показать номер
    Посмотреть контакты
    1-к кв. Пермский край, Пермь ул. Космонавта Леонова, 41к2 (39.06 м) - Фото 1
    1-к кв. Пермский край, Пермь ул. Космонавта Леонова, 41к2 (39.06 м) - Фото 2
    1-комнатная квартира, общая площадь 39м², кухня 13м²

    В продаже однокомнатная квартира с классической планировкой: кухня 13,12 квм и спальня 13,61 квм., можно рассматривать как евро 2, в квартире есть вместительная гардеробная/кладовка для хранения вещей, поэтому в комнате будет больше пространства для остальной...
    • 39 м²
    • 1-ком
    • 1/20 эт.
    • монолит
    6 038 000 Р
    Агент
    +7 (982) Показать номер
    Посмотреть контакты
    Студия Пермский край, Пермь ул. Космонавта Леонова, 41к2 (28.7 м) - Фото 1
    Студия Пермский край, Пермь ул. Космонавта Леонова, 41к2 (28.7 м) - Фото 2
    студия, общая площадь 28м², кухня 5м²

    Продаётся уютная квартира-студия в современном жилом комплексе с развитой инфраструктурой. Индустриальный район, рядом с Черняевским лесом — отличное место для прогулок и отдыха.Преимущества:- Общая площадь — 28,7 м- Новый дом — экономия на коммунальных...
    • 28 м²
    • студия-ком
    • 4/24 эт.
    6 100 000 Р
    Агент
    +7 (982) Показать номер
    Посмотреть контакты
    1-к кв. Пермский край, Пермь ул. Космонавта Леонова, 41/1 (37.55 м) - Фото 1
    1-к кв. Пермский край, Пермь ул. Космонавта Леонова, 41/1 (37.55 м) - Фото 2
    1-комнатная квартира, общая площадь 37м², кухня 13м²

    В продаже 1-комнатная квартира в новом доме Комфорт класса в Индустриальном районе. Дом 2024 года постройки. Квартира с ремонтом. Имеется просторная гардеробная. Большой балкон 6,36 кв.м.Развитая инфраструктура района, в шаговой доступности все необходимое...
    • 37 м²
    • 1-ком
    • 8/24 эт.
    5 900 000 Р
    Агент
    +7 (982) Показать номер
    Посмотреть контакты

    Не нашли подходящего объявления?

    Оставьте заявку, и наши риэлторы подберут квартиру в районе Перми

    (0)