3 000 000 Р 36 920 $ или 32 160

Информация о квартире

33 м2
Площадь
студия
Комнат
3
Этаж
3
Этажность

Дополнительная информация

Тип дома
монолит
Развернуть
Агент
+7 (982) 491-01-73
Начать чат с агентом

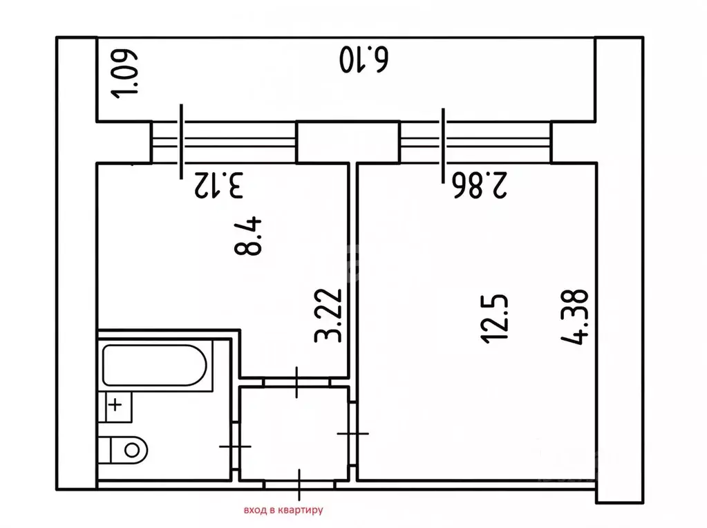
Студия Пермский край, Пермь ул. Исхакова, 49 (33.2 м)

Представляем вашему вниманию уютную студию площадью 33.2 кв. м, расположенную на третьем этаже трехэтажного монолитного дома, построенного в 2014 году. Высота потолков - 2.7 метра, что создает ощущение простора и света. Окна квартиры выходят на улицу, благодаря чему в квартире всегда светло.Звоните и приходите на просмотр.Квартира с косметическим ремонтом, что позволяет вам сразу же заехать и жить. Удобная планировка студии позволяет обустроить пространство по вашему вкусу. В квартире есть совмещенный санузел, оформленный в современном стиле.Дом находится в отличном состоянии. Доступна наземная парковка, поэтому вы всегда найдете место для своего автомобиля. Район, в котором расположена квартира, богат инфраструктурой. В пешей доступности находятся детские сады, школы и больницы. Рядом расположены магазины, торговые центры и парковые зоны, где можно провести время на свежем воздухе. Отличная транспортная доступность: рядом автобусные остановки, откуда можно быстро добраться до любой точки города.Условия сделки прозрачны: продажа осуществляется по договору купли-продажи. Возможна ипотека. Юридически чистая история, без обременений и сложных условий.Приглашаем вас посетить эту замечательную квартиру и увидеть все ее преимущества своими глазами. Записывайтесь на просмотр, будем рады видеть вас

Читать полностью

    Для того, чтобы купить студию по адресу: Пермь, Мотовилихинский, ул. Исхакова, 49, позвоните по телефону +7 (982) 491-01-73. Торопитесь! Объявление №30094555171 о продаже студии опубликовано 28 марта 2026.

    Позвонить Написать
    3 000 000 Р36 920 $ или 32 160
    Агент
    +7 (982) 491-01-73
    Начать чат с агентом
    Похожие предложения
    1-к кв. Пермский край, Пермь ул. Чехова, 6 (32.2 м) - Фото 1
    1-к кв. Пермский край, Пермь ул. Чехова, 6 (32.2 м) - Фото 2
    1-комнатная квартира, общая площадь 32м², жилая 18м², кухня 6м²

    Квартира, под смелое дизайнерское решение. Строительные материалы остались для завершения ремонта, проводка поменяна, плитка в ванной комнате, есть гардеробная, новая входная дверь, пластиковые окна, новые отопительные радиаторы.Торг уместен при осмотре...
    • 32 м²
    • 1-ком
    • 5/5 эт.
    • кирпичный
    3 100 000 Р
    Агент
    +7 (912) Показать номер
    Посмотреть контакты
    1-к кв. Пермский край, Пермь ул. Звонарева, 43А (29.1 м) - Фото 1
    1-к кв. Пермский край, Пермь ул. Звонарева, 43А (29.1 м) - Фото 2
    1-комнатная квартира, общая площадь 29м², жилая 17м², кухня 5м²

    Продается уютная однокомнатная квартира площадью 29,1 кв. м на пятом этаже кирпичного дома. Жилая площадь составляет 17 кв. м, кухня — 5,7 кв. м. Высота потолков — 2,5 метра. Дом был построен в 1972 году и имеет всего 5 этажей. Окна квартиры выходят на...
    • 29 м²
    • 1-ком
    • 5/5 эт.
    • кирпичный
    3 050 000 Р
    Агент
    +7 (982) Показать номер
    Посмотреть контакты
    1-к кв. Пермский край, Пермь ул. КИМ, 95 (26.3 м) - Фото 1
    1-к кв. Пермский край, Пермь ул. КИМ, 95 (26.3 м) - Фото 2
    1-комнатная квартира, общая площадь 26м², кухня 4м²

    КВАРТИРА НА ЗАДАТКЕ.В продаже классическая однокомнатная квартира 26,3 кв.м. на 5 этаже кирпичного дома. Комфортная планировка квартиры, комната правильной прямоугольной формы 17,9 кв.м.; небольшая, но функциональная кухня 4,8 кв.м., раздельный санузел,...
    • 26 м²
    • 1-ком
    • 5/5 эт.
    • кирпичный
    3 090 000 Р
    Агент
    +7 (919) Показать номер
    Посмотреть контакты
    1-к кв. Пермский край, Пермь Целинная ул., 23 (18.0 м) - Фото 1
    1-к кв. Пермский край, Пермь Целинная ул., 23 (18.0 м) - Фото 2
    1-комнатная квартира, общая площадь 18м², жилая 9м², кухня 4м²

    Продается отличная ,теплая ,с капитальным ремонтом комната. Полностью заменены :пол-ламинат ,выравнены стены, натяжной потолок ,окна стекло пакеты ,сан.узел в плитке, душевая система ,установлены и заменены межкомнатные и входные двери.Продается квартира...
    • 18 м²
    • 1-ком
    • 1/9 эт.
    • кирпичный
    2 900 000 Р
    Агент
    +7 (912) Показать номер
    Посмотреть контакты
    1-к кв. Пермский край, Пермь бул. Гагарина, 36 (25.6 м) - Фото 1
    1-к кв. Пермский край, Пермь бул. Гагарина, 36 (25.6 м) - Фото 2
    1-комнатная квартира, общая площадь 25м², жилая 12м², кухня 8м²

    Предлагается к продаже малогабаритная 1-комнатная квартира в центре Мотовилихинского района Основные особенности:- Кирпичный дом 1985 года;- Закрытая территория;- Консьерж;- Два пассажирских лифта и один грузовой.Планировка и площадь:- Кухня — 8,6 м-...
    • 25 м²
    • 1-ком
    • 2/15 эт.
    • кирпичный
    2 999 999 Р
    Агент
    +7 (982) Показать номер
    Посмотреть контакты

    Не нашли подходящего объявления?

    Оставьте заявку, и наши риэлторы подберут квартиру в районе Перми

    (0)