6 400 000 Р 78 830 $ или 68 050

Информация об помещении

цоколь
Этаж

Состояние и оснащение

Количество этажей
5
Развернуть
Агент
+7 (912) 590-64-78
Начать чат с агентом

Помещение свободного назначения в Пермский край, Пермь Можайская ул., ...

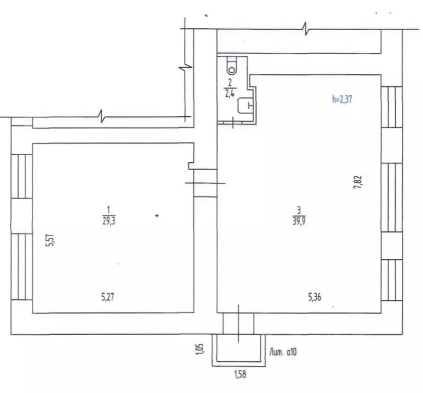
Продается нежилое помещение свободного назначения на цокольном этаже пятиэтажного жилого дома с отдельным входом. Помещение общей площадью 74,8 кв.м. имеет косметический ремонт и готово к эксплуатации. В помещении установлена система приточно-вытяжной вентиляции, а также присутствует дополнительная кладовая для хозяйственных нужд. Внутри расположены две просторные комнаты и собственный санузел, что делает его удобным для различных видов деятельности. Дом находится в удобной локации, вблизи автобусной остановки, что обеспечивает хорошую транспортную доступность. Два взрослых собственника, быстрый выход на сделку. Помещение может быть так же использовано под ателье, студию красоты, магазин, маркетплейсы, рекламный бизнес,типографию, офисное направление.Для получения дополнительной информации и организации просмотра звоните по телефону: Лариса. Код пользователя: 168370Номер в базе: 6471845

Читать полностью
    Позвонить Написать
    6 400 000 Р78 830 $ или 68 050
    Агент
    +7 (912) 590-64-78
    Начать чат с агентом
    Похожие предложения
    Помещение свободного назначения в Пермский край, Пермь Парковый ... - Фото 1
    Помещение свободного назначения в Пермский край, Пермь Парковый ... - Фото 2
    Коммерческое помещение на 1 этаже жилого дома с активным пешеходным трафиком. По соседству проходит дорога и находится школа Энергополис . Помещение подойдет под любой вид деятельности. Ранее несколько лет находился продуктовый магазин, обороты и выручка...
    • 1/9 эт.
    6 400 000 Р
    Агент
    +7 (912) Показать номер
    Посмотреть контакты
    Помещение свободного назначения в Пермский край, Пермь Грузинская ул., ... - Фото 1
    Помещение свободного назначения в Пермский край, Пермь Грузинская ул., ... - Фото 2
    Продается уникальное коммерческое помещение в самом сердце Перми, на первой линии с высокой проходимостью Это идеальный вариант для вашего бизнеса или инвестиционного проекта. Помещение расположено на первом этаже и имеет отдельный вход, что обеспечивает...
    • 1/5 эт.
    6 500 000 Р
    Агент
    +7 (912) Показать номер
    Посмотреть контакты
    Помещение свободного назначения в Новосибирская область, Новосибирск ... - Фото 1
    Помещение свободного назначения в Новосибирская область, Новосибирск ... - Фото 2
    Арт.К продаже представлен этаж офисного назначения в отдельно стоящем административном здании Расположение - 4 этаж, этажность здания - 4; коридорная система - 5 отдельных кабинетов; один санузел.Достаточное количество парковочных мест.Находится в цeнтрe...
    • 4/4 эт.
    6 500 000 Р
    Агент
    +7 (913) Показать номер
    Посмотреть контакты
    Продажа ПСН, Темрюк, Темрюкский район, ул. 27 Сентября - Фото 1
    Продажа ПСН, Темрюк, Темрюкский район, ул. 27 Сентября - Фото 2
    общая площадь 54.5м², полезная площадь 54.5м²

    Продается идеальное торговое помещение — ваш ключ к успешному бизнесу! Предлагаем вашему вниманию просторное и функциональное торговое помещение площадью 54,5 кв. м. в Темрюкском районе город Темрюк! Это отличное решение для тех, кто мечтает открыть...
    • 54.5 м²
    • 1-й эт.
    6 500 000 Р
    Агент
    +7 (903) Показать номер
    Агентство
    Эксперт
    Посмотреть контакты
    Помещение свободного назначения в Ярославская область, Ярославль ... - Фото 1
    Помещение свободного назначения в Ярославская область, Ярославль ... - Фото 2
    ОТ СОБСТВЕННИКА. БЕЗ КОМИССИИ ДЛЯ ПОКУПАТЕЛЯ.* Работаем без выходных и праздников. Звоните с 10:00 до 20:00 *Продам помещение с отдельным входом в 400 м от пр-та Фрунзе.Адрес: ул. Дружная, 26 (первый этаж, три входа: основной с улицы, через подъезд, запасной...
    • 1/2 эт.
    6 500 000 Р
    Агент
    +7 (915) Показать номер
    Посмотреть контакты

    Не нашли подходящего объявления?

    Оставьте заявку, и наши риэлторы подберут псн в районе Перми

    (0)