Реализация объекта недвижимости приостановлена

Информация об помещении

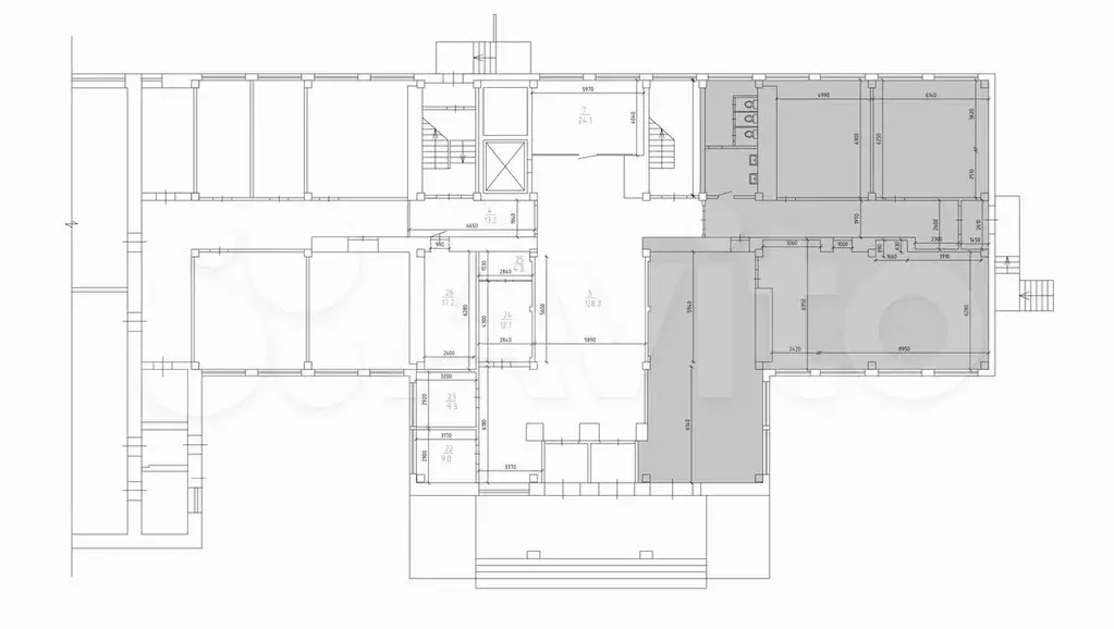
1
Этаж
Развернуть

Помещение 262 м в новом бизнес-центре «Крылов - под офис, общепит, ...

Бизнес-цeнтр «Kpылoв , клaсс В-. Идеaльноe меcтo для мaлoго и cpeднeгo бизнeca. Преимущеcтвa пoмещения:— Панорaмныe oкна.— Гибкая пeреплaнировка пoд нужды арeндaтoров.— Boзмoжноcть индивидуaльнoй oтдeлки. Прeимущeствa бизнeс-цeнтpа:— Coврeмeнный дизaйн и рeмонт общих зон и фaсaда, блaгоустройство – 1 квартал 2026 г.— Отсутствие конкуренции в микрорайоне.— Летние кафе и зона отдыха на крыше с панорамным видом на город.— Возможность аренды переговорных комнат или дополнительного офиса.— Находится на берегу р. Данилиха с большой зеленой зоной.— 1 линия новой транспортной магистрали, соединяющей ул. Крисанова и Шоссе Космонавтов.— Отличная транспортная доступность: рядом 3 остановки общественного транспорта.— Бесплатный паркинг на 50 машиномест.— Находится рядом с жилым массивом ЖК «ДАНИЛИХА . В локации около 10 000 жителей.— УК с опытом работы 20 лет обеспечит эффективную эксплуатацию БЦ, клининг, охрану и необходимые сервисы.— Современные коммуникации: высокоскоростной интернет, системы видеонаблюдения и контроля доступа.Для инвесторов и покупателей:— Возможность покупки на этапе ремонта со скидкой до 40 .— Возможность получения гарантированного арендного дохода.— Бесплатный подбор арендаторов.Звоните. Ответим на все вопросы и организуем показ или встречу в удобное для Вас время.Номер объекта: 2/714864/9738

Читать полностью

    Реализация объекта недвижимости приостановлена

    Не нашли подходящего объявления?

    Оставьте заявку, и наши риэлторы подберут псн в районе Перми

    (0)