36 916 434 Р 471 900 $ или 400 900

Информация об помещении

1
Этаж

Состояние и оснащение

Количество этажей
9
Развернуть
Агент
+7 (982) 476-04-32
Начать чат с агентом

Помещение свободного назначения в Пермский край, Пермь ул. ...

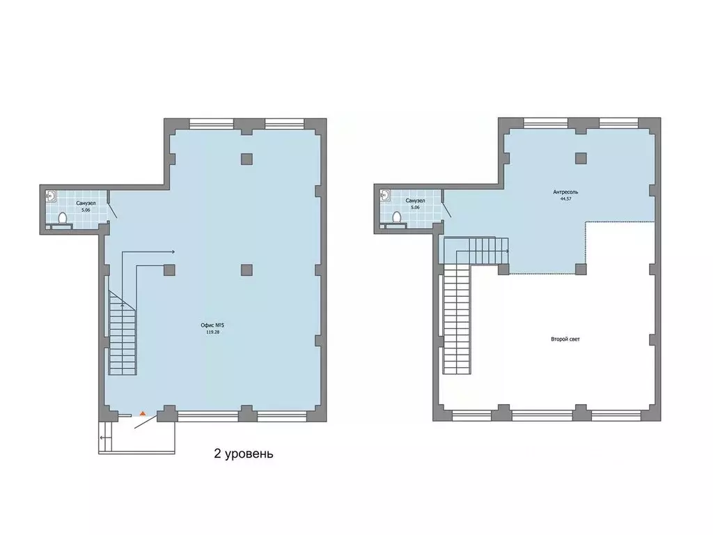
Продается коммерческое помещение свободного назначения напрямую от федерального застройщика Желeзнo . Площадь помещения 174.00 м2. Высота потолков 2.70 м. Помещение находится на 1 этаже дома 4 ЖК Камаполис .Запишитесь на просмотр помещения и экскурсию по ЖКПомещение продается в базовой отделке. Объект коммерческой недвижимости продаётся в жилом комплексе комфорт- класса Камаполис , расположенном на живописном берегу реки Камы. Это идеальное место для вашего бизнеса, сочетающее экологичность, современную архитектуру и удобную транспортную доступность. Все для вашего бизнеса:• Отличное расположение: в шаговой доступности от трамвайной остановки и вокзала Пермь-2, всего 10 минут на машине до центра города• Просторные и светлые помещения, готовые под любые коммерческие нужды• Высокий спрос благодаря жилой застройке и собственному детскому саду на 320 мест• Преимущества для местных жителей: стрит-ритейл с магазинами и кафе на территории комплекса Благоустройство и общественные пространства:Новый центр притяжения — всесезонный сквер, с прогулочными зонами, спортивными и детскими площадками, а также специальными соседскими террасами. Эти пространства станут отличной локацией для мероприятий, встреч с клиентами или коллегами. ЖК Камаполис — идеальное место для вашего бизнеса и жизни. Железно — федеральный девелопер со смыслом, создающий умные мини-города с развитой инфраструктурой. За 14 лет компания реализовала 21 проект вегионах, формируя комфортную среду для десятков тысяч семей. Проекты Железно сочетают функциональность и эмоции, формируя среду будущего. Застройщик — 6-кратный победитель премии Urban и входит в ТОП-5 по качеству жилья. С 2016 года ежегодно подтверждает статус Надёжный застройщик России .

Читать полностью
    Позвонить Написать
    36 916 434 Р471 900 $ или 400 900
    Агент
    +7 (982) 476-04-32
    Начать чат с агентом
    Похожие предложения
    Помещение свободного назначения в Пермский край, Пермь ул. ... - Фото 1
    Помещение свободного назначения в Пермский край, Пермь ул. ... - Фото 2
    Продается коммерческое помещение свободного назначения напрямую от федерального застройщика Желeзнo . Площадь помещения 163.00 м2. Высота потолков 2.70 м. Помещение находится на 1 этаже дома 3 ЖК Камаполис .Запишитесь на просмотр помещения и экскурсию...
    • 1/8 эт.
    36 556 800 Р
    Агент
    +7 (982) Показать номер
    Посмотреть контакты
    Помещение свободного назначения в Пермский край, Пермь ул. Куйбышева, ... - Фото 1
    Помещение свободного назначения в Пермский край, Пермь ул. Куйбышева, ... - Фото 2
    Предлагается к покупке помещение с арендатором в офисном здании в центре Перми.Арендует помещение управляющая компания Солнечный город. У будущего владельца есть возможность получать гарантированный пассивный доход.Есть все коммуникации. Здание находится...
    • 3/4 эт.
    36 387 400 Р
    Агент
    +7 (919) Показать номер
    Посмотреть контакты
    Помещение свободного назначения в Пермский край, Пермь ул. Окулова, 14 ... - Фото 1
    Помещение свободного назначения в Пермский край, Пермь ул. Окулова, 14 ... - Фото 2
    Помещение под офиc 97 м2 с видом на Каму, на 8 этажe МФК Окулова 14 от UDS.Историческая часть Перми, на набережной Камы, рядом с садом им. Гоголя. Удобные пешеходные и подъездные пути, рядом остановка общественного транспорта, 5 минут на автомобиле до...
    • 8/12 эт.
    36 693 795 Р
    Агент
    +7 (912) Показать номер
    Посмотреть контакты
    Помещение свободного назначения в Пермский край, Пермь ул. Кронита, 8 ... - Фото 1
    Помещение свободного назначения в Пермский край, Пермь ул. Кронита, 8 ... - Фото 2
    Продаются нежилые помещение общей площадью 1418,8 кв.м. в центре Орджоникидзевского района г. Пермирасположенные на 1-3 этажах. Под офис, услуги, общепит.Доля в праве на земельный участок общей площадью 3173 кв.м.Год постройки - 1978. Коммуникации центральные....
    • 3/3 эт.
    36 916 000 Р
    Агент
    +7 (982) Показать номер
    Посмотреть контакты
    Помещение свободного назначения в Пермский край, Пермь ул. Куйбышева, ... - Фото 1
    Помещение свободного назначения в Пермский край, Пермь ул. Куйбышева, ... - Фото 2
    Предлагается к покупке помещение с арендатором в офисном здании в центре Перми.Арендует помещение управляющая компания Солнечный город. У будущего владельца есть возможность получать гарантированный пассивный доход.Есть все коммуникации. Здание находится...
    • 3/4 эт.
    36 387 400 Р
    Агент
    +7 (919) Показать номер
    Посмотреть контакты

    Не нашли подходящего объявления?

    Оставьте заявку, и наши риэлторы подберут псн в районе Перми

    (0)