33 660 900 Р 433 300 $ или 369 100

Информация об помещении

1
Этаж

Состояние и оснащение

Количество этажей
9
Развернуть
Агент
+7 (982) 476-04-32
Начать чат с агентом

Помещение свободного назначения в Пермский край, Пермь ул. ...

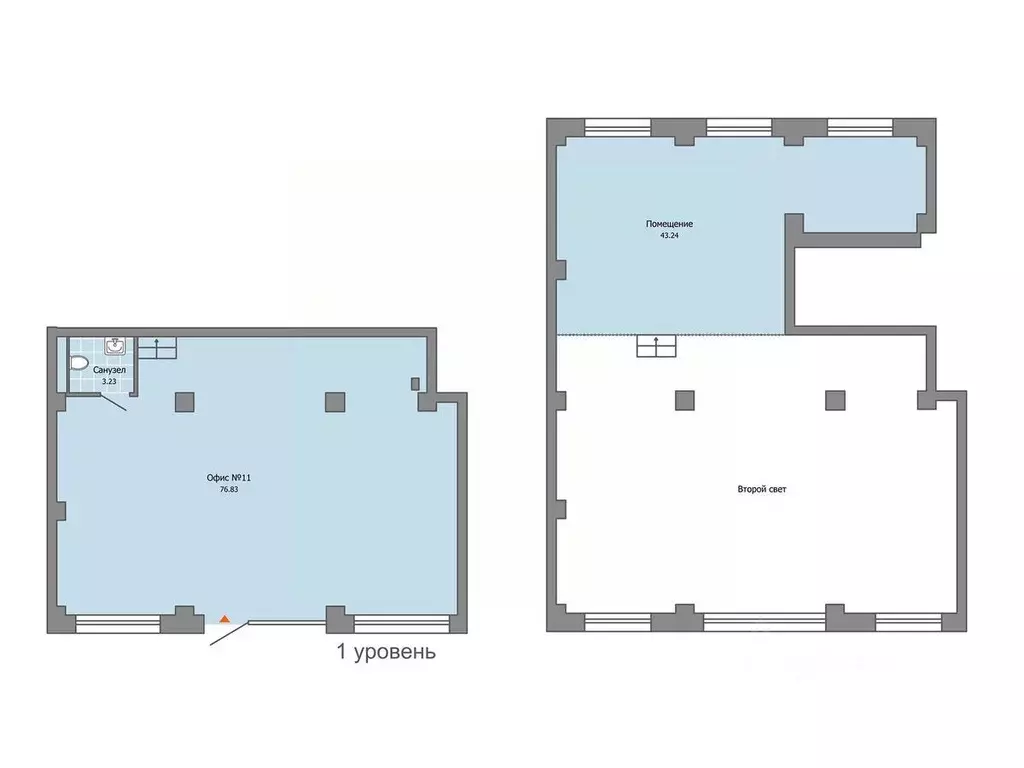
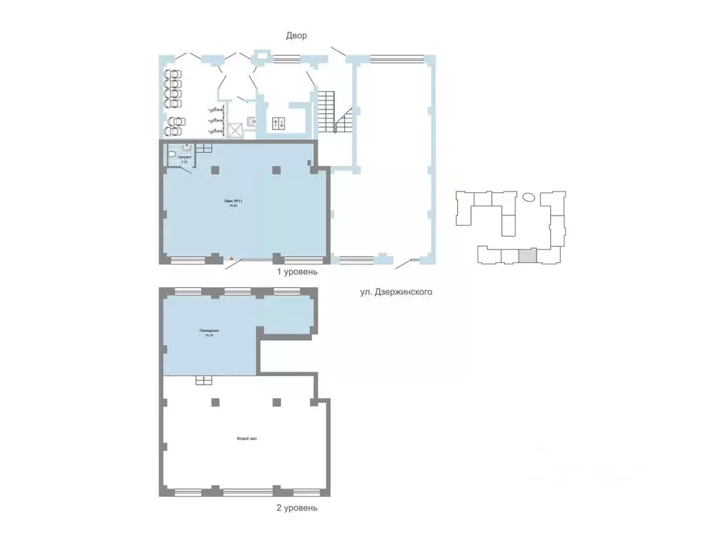
Продается коммерческое помещение свободного назначения напрямую от федерального застройщика Желeзнo . Площадь помещения 123.00 м2. Высота потолков 2.70 м. Помещение находится на 1 этаже дома 4 ЖК Камаполис .Запишитесь на просмотр помещения и экскурсию по ЖКПомещение продается в базовой отделке. Объект коммерческой недвижимости продаётся в жилом комплексе комфорт- класса Камаполис , расположенном на живописном берегу реки Камы. Это идеальное место для вашего бизнеса, сочетающее экологичность, современную архитектуру и удобную транспортную доступность. Все для вашего бизнеса:• Отличное расположение: в шаговой доступности от трамвайной остановки и вокзала Пермь-2, всего 10 минут на машине до центра города• Просторные и светлые помещения, готовые под любые коммерческие нужды• Высокий спрос благодаря жилой застройке и собственному детскому саду на 320 мест• Преимущества для местных жителей: стрит-ритейл с магазинами и кафе на территории комплекса Благоустройство и общественные пространства:Новый центр притяжения — всесезонный сквер, с прогулочными зонами, спортивными и детскими площадками, а также специальными соседскими террасами. Эти пространства станут отличной локацией для мероприятий, встреч с клиентами или коллегами. ЖК Камаполис — идеальное место для вашего бизнеса и жизни. Железно — федеральный девелопер со смыслом, создающий умные мини-города с развитой инфраструктурой. За 14 лет компания реализовала 21 проект вегионах, формируя комфортную среду для десятков тысяч семей. Проекты Железно сочетают функциональность и эмоции, формируя среду будущего. Застройщик — 6-кратный победитель премии Urban и входит в ТОП-5 по качеству жилья. С 2016 года ежегодно подтверждает статус Надёжный застройщик России .

Читать полностью
    Позвонить Написать
    33 660 900 Р433 300 $ или 369 100
    Агент
    +7 (982) 476-04-32
    Начать чат с агентом
    Похожие предложения
    Помещение свободного назначения в Пермский край, Пермь ул. ... - Фото 1
    Помещение свободного назначения в Пермский край, Пермь ул. ... - Фото 2
    Продается коммерческое помещение свободного назначения напрямую от федерального застройщика Желeзнo . Площадь помещения 123.00 м2. Высота потолков 2.70 м. Помещение находится на 1 этаже дома 4 ЖК Камаполис .Запишитесь на просмотр помещения и экскурсию...
    • 1/9 эт.
    33 432 299 Р
    Агент
    +7 (982) Показать номер
    Посмотреть контакты
    Помещение свободного назначения в Пермский край, Пермь ул. ... - Фото 1
    Помещение свободного назначения в Пермский край, Пермь ул. ... - Фото 2
    Продается коммерческое помещение свободного назначения напрямую от федерального застройщика Желeзнo . Площадь помещения 138.00 м2. Высота потолков 2.70 м. Помещение находится на 1 этаже дома 3 ЖК Камаполис .Запишитесь на просмотр помещения и экскурсию...
    • 1/8 эт.
    33 389 120 Р
    Агент
    +7 (982) Показать номер
    Посмотреть контакты
    Помещение свободного назначения в Пермский край, Пермь Ленская ул., 30 ... - Фото 1
    Помещение свободного назначения в Пермский край, Пермь Ленская ул., 30 ... - Фото 2
    ДОМ СДАН Продаются Коммерческие помещения в ЖК Курья-Парк Преимущества объекта:* 1-й этаж, 1-я линия * Свободная планировка * Бесплатная гостевая парковка * Панорамное остекление * Отдельный выход с улицы и зона разгрузки * Потолки высотой 3.2 м * Сделана...
    • 1/25 эт.
    34 970 000 Р
    Агент
    +7 (919) Показать номер
    Посмотреть контакты
    Помещение свободного назначения в Пермский край, Пермь Красновишерская ... - Фото 1
    Помещение свободного назначения в Пермский край, Пермь Красновишерская ... - Фото 2
    Продается помещение, полностью оборудованное под офис.Кабинеты + просторный холл с посадочными местами, складское помещение, подсобная комната, санузел, комната приема пищи. Оборудовано гардеробом, большим встроенным шкафом для хранения.Охранная сигнализация....
    • 1/14 эт.
    35 000 000 Р
    Агент
    +7 (982) Показать номер
    Посмотреть контакты
    Помещение свободного назначения в Пермский край, Пермь Буксирная ул., ... - Фото 1
    Помещение свободного назначения в Пермский край, Пермь Буксирная ул., ... - Фото 2
    Продам производственный цех 1291,6 кв.м. Адрес: г. Пермь, ул. Буксирная, 4, территория Пермская Судоверфь.В продаже производственное помещение-комплекс с полной инфраструктурой. Общая площадь помещения: 1291,6 кв.м. (Кадастр 59:01:1717065:273) Площадь...
    • 1/2 эт.
    35 000 000 Р
    Агент
    +7 (982) Показать номер
    Посмотреть контакты

    Не нашли подходящего объявления?

    Оставьте заявку, и наши риэлторы подберут псн в районе Перми

    (0)