29 000 000 Р 367 300 $ или 318 800

Информация об помещении

1
Этаж

Состояние и оснащение

Количество этажей
3
Развернуть
Агент
+7 (916) 248-42-64
Начать чат с агентом

Помещение свободного назначения в Пермский край, Пермь ул. Гальперина, ...

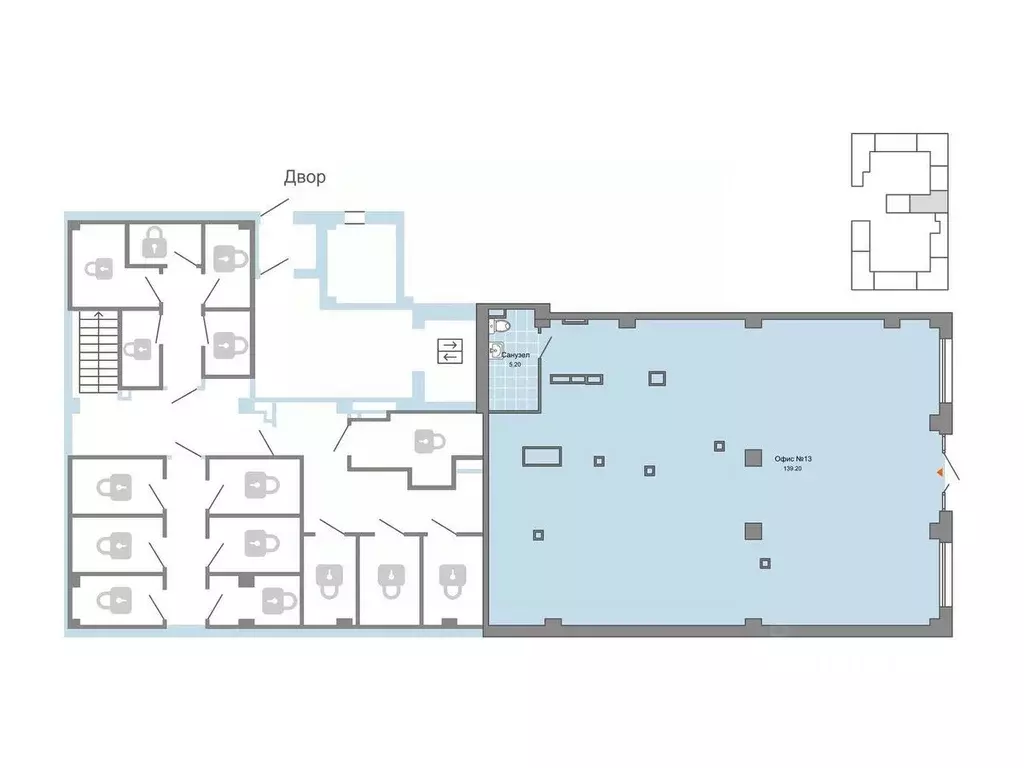
Коммерческая недвижимость в Перми: перспективный объект для бизнесаПродаётся часть нежилого здания с отличной локацией — ул. Гальперина, 8 (г. Пермь).Ключевые характеристикиТип помещения: встроенные помещения.Расположение: технический этаж, 1 этаж, 2 этаж.Общая площадь здания: 3 276,5 м.Площадь в продаже: половина здания (весь 1-й этаж и половина 2-го этажа).Высота потолков: 3,88 м.Особенность планировки: перегородки между помещениями демонтируемы — можно организовать пространство под свои задачи.Преимущества объектаГотовая инфраструктура. В помещениях уже работают два действующих арендатора — это показатель востребованности локации.Высокий уровень безопасности. Закрытая охраняемая территория, система видеонаблюдения, въезд по пропускам.Удобство логистики. Круглосуточный въезд и выезд с территории — идеально для бизнеса с высокой транспортной активностью.Гибкость использования. Благодаря свободным планировочным решениям и высоким потолкам помещение подойдёт под разные форматы деятельности.Масштабный потенциал. Большая площадь позволяет реализовать амбициозные бизнес-проекты.Возможные варианты использования:- организация офисного центра или бизнес-пространства;- размещение торговых площадей;- создание логистического или складского комплекса;- открытие производственного объекта (с учётом нормативов);- формирование многофункционального центра;- размещение сервисных предприятий и т. п.Для кого это предложение?- инвесторов, ищущих ликвидную коммерческую недвижимость;- владельцев бизнеса, которым нужны просторные помещения с возможностью перепланировки;- компаний, планирующих расширение площадей;- операторов торговых и сервисных центров, заинтересованных в локации с высоким трафиком.

Читать полностью
    Позвонить Написать
    29 000 000 Р367 300 $ или 318 800
    Агент
    +7 (916) 248-42-64
    Начать чат с агентом
    Похожие предложения
    Помещение свободного назначения в Пермский край, Пермь ул. Гальперина, ... - Фото 1
    Помещение свободного назначения в Пермский край, Пермь ул. Гальперина, ... - Фото 2
    Продается помещение свободного назначения на 1, 2 этажах, вместе с тех этажом под склад, производство или услуги. Территория закрытая, охраняемая, есть видеонаблюдение, возможность въезда и выезда в любое время.
    • 2/2 эт.
    30 000 000 Р
    Агент
    +7 (919) Показать номер
    Посмотреть контакты
    Помещение свободного назначения в Пермский край, Пермь Светлогорская ... - Фото 1
    Помещение свободного назначения в Пермский край, Пермь Светлогорская ... - Фото 2
    Арт.Продается Производственно - Складская База в самом начале Закамска по адресу: г. Пермь, ул. Светлогорская 12аа. Характеристики объекта недвижимости:Здание производственно -складское площадь 1087,6м2Здание склада - 72м2Офисы - 100м2Земельный участок...
    • 1/1 эт.
    29 500 000 Р
    Агент
    +7 (919) Показать номер
    Посмотреть контакты
    Помещение свободного назначения в Пермский край, Пермь ул. ... - Фото 1
    Помещение свободного назначения в Пермский край, Пермь ул. ... - Фото 2
    Продается коммерческое помещение свободного назначения напрямую от федерального застройщика Желeзнo . Площадь помещения 144.00 м2. Высота потолков 2.70 м. Помещение находится на 1 этаже дома 3 ЖК Камаполис .Запишитесь на просмотр помещения и экскурсию...
    • 1/8 эт.
    28 136 460 Р
    Агент
    +7 (982) Показать номер
    Посмотреть контакты
    Помещение свободного назначения в Пермский край, Пермь ул. Газеты ... - Фото 1
    Помещение свободного назначения в Пермский край, Пермь ул. Газеты ... - Фото 2
    Продаются коммерческие помещения (в черновой отделке , высота потолков до 4 метров) в новом премиальном доме в респектабельном центре Перми - на пересечении улиц Советской и Газеты Звезда.Вокруг дома на Советской есть всё, чтобы жить, работать и отдыхать...
    • 1/9 эт.
    29 775 000 Р
    Агент
    +7 (982) Показать номер
    Посмотреть контакты
    Помещение свободного назначения в Новосибирская область, Новосибирск ... - Фото 1
    Помещение свободного назначения в Новосибирская область, Новосибирск ... - Фото 2
    Апартаменты Land Lord. В современном мире каждый ищет способы получения пассивного дохода. В последнее пятилетие одним из самых простых и надежных вариантов доходных инвестиций стали апартаменты и другая коммерческая недвижимость.Проект предусматривает...
    • 14/24 эт.
    28 534 800 Р
    Агент
    +7 (913) Показать номер
    Посмотреть контакты

    Не нашли подходящего объявления?

    Оставьте заявку, и наши риэлторы подберут псн в районе Перми

    (0)