19 101 840 Р 247 200 $ или 209 200

Информация об помещении

2
Этаж

Состояние и оснащение

Количество этажей
15
Развернуть
Агент
+7 (982) 476-04-32
Начать чат с агентом

Помещение свободного назначения в Пермский край, Пермь ул. ...

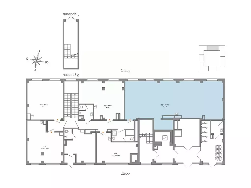
Продается коммерческое помещение свободного назначения напрямую от федерального застройщика Желeзнo . Площадь помещения 112.00 м2. Высота потолков 2.69 м. Помещение находится на 2 этаже дома 2 ЖК Камаполис .Запишитесь на просмотр помещения и экскурсию по ЖК.Помещение продается в базовой отделке. Объект коммерческой недвижимости продаётся в жилом комплексе комфорт- класса Камаполис , расположенном на живописном берегу реки Камы. Это идеальное место для вашего бизнеса, сочетающее экологичность, современную архитектуру и удобную транспортную доступность. Все для вашего бизнеса:• Отличное расположение: в шаговой доступности от трамвайной остановки и вокзала Пермь-2, всего 10 минут на машине до центра города• Просторные и светлые помещения, готовые под любые коммерческие нужды• Высокий спрос благодаря жилой застройке и собственному детскому саду на 320 мест• Преимущества для местных жителей: стрит-ритейл с магазинами и кафе на территории комплекса Благоустройство и общественные пространства:Новый центр притяжения — всесезонный сквер, с прогулочными зонами, спортивными и детскими площадками, а также специальными соседскими террасами. Эти пространства станут отличной локацией для мероприятий, встреч с клиентами или коллегами. ЖК Камаполис — идеальное место для вашего бизнеса и жизни. Железно — федеральный девелопер со смыслом, создающий умные мини-города с развитой инфраструктурой. За 14 лет компания реализовала 21 проект вегионах, формируя комфортную среду для десятков тысяч семей. Проекты Железно сочетают функциональность и эмоции, формируя среду будущего. Застройщик — 6-кратный победитель премии Urban и входит в ТОП-5 по качеству жилья. С 2016 года ежегодно подтверждает статус Надёжный застройщик России .

Читать полностью
    Позвонить Написать
    19 101 840 Р247 200 $ или 209 200
    Агент
    +7 (982) 476-04-32
    Начать чат с агентом
    Похожие предложения
    Помещение свободного назначения в Пермский край, Пермь ул. ... - Фото 1
    Помещение свободного назначения в Пермский край, Пермь ул. ... - Фото 2
    Продается коммерческое помещение свободного назначения напрямую от федерального застройщика Желeзнo . Площадь помещения 115.00 м2. Высота потолков 2.69 м. Помещение находится на 2 этаже дома 2 ЖК Камаполис .Запишитесь на просмотр помещения и экскурсию...
    • 2/15 эт.
    19 762 810 Р
    Агент
    +7 (982) Показать номер
    Посмотреть контакты
    Помещение свободного назначения в Пермский край, Пермь ул. ... - Фото 1
    Помещение свободного назначения в Пермский край, Пермь ул. ... - Фото 2
    Продается коммерческое помещение свободного назначения напрямую от федерального застройщика Желeзнo . Площадь помещения 106.00 м2. Высота потолков 2.70 м. Помещение находится на 1 этаже дома 1 ЖК Камаполис .Запишитесь на просмотр помещения и экскурсию...
    • 1/15 эт.
    18 684 210 Р
    Агент
    +7 (982) Показать номер
    Посмотреть контакты
    Помещение свободного назначения в Пермский край, Пермь ул. ... - Фото 1
    Помещение свободного назначения в Пермский край, Пермь ул. ... - Фото 2
    Продается коммерческое помещение свободного назначения напрямую от федерального застройщика Желeзнo . Площадь помещения 82.00 м2. Высота потолков 2.70 м. Помещение находится на 1 этаже дома 3 ЖК Камаполис .Запишитесь на просмотр помещения и экскурсию...
    • 1/8 эт.
    19 234 000 Р
    Агент
    +7 (982) Показать номер
    Посмотреть контакты
    Помещение свободного назначения в Пермский край, Пермь ДКЖ мкр, Ньютон ... - Фото 1
    Помещение свободного назначения в Пермский край, Пермь ДКЖ мкр, Ньютон ... - Фото 2
    Коммерческое помещение на 1 этаже. ЖК Ньютон от девелопера UDS — полностью заселённый проект в активно развивающейся локации района ДКЖ. Здесь уже живёт ваша будущая аудитория: тысячи жителей, сформированный спрос и постоянный пешеходный трафик. А совсем...
    • 1/7 эт.
    18 144 830 Р
    Агент
    +7 (982) Показать номер
    Посмотреть контакты
    Помещение свободного назначения в Пермский край, Пермь ул. Окулова, 14 ... - Фото 1
    Помещение свободного назначения в Пермский край, Пермь ул. Окулова, 14 ... - Фото 2
    Помещение под офиc 55 м2 на 5 этажe МФК Окулова 14 от UDS.Историческая часть Перми, на набережной Камы, рядом с садом им. Гоголя. Удобные пешеходные и подъездные пути, рядом остановка общественного транспорта, 5 минут на автомобиле до административного...
    • 5/12 эт.
    19 012 975 Р
    Агент
    +7 (912) Показать номер
    Посмотреть контакты

    Не нашли подходящего объявления?

    Оставьте заявку, и наши риэлторы подберут псн в районе Перми

    (0)