80 000 000 Р 1 036 400 $ или 872 300

Информация об помещении

1
Этаж

Состояние и оснащение

Количество этажей
3
Развернуть
Агент
+7 (982) 340-85-16
Начать чат с агентом

Помещение свободного назначения в Пермский край, Пермь ул. Ленина, 46 ...

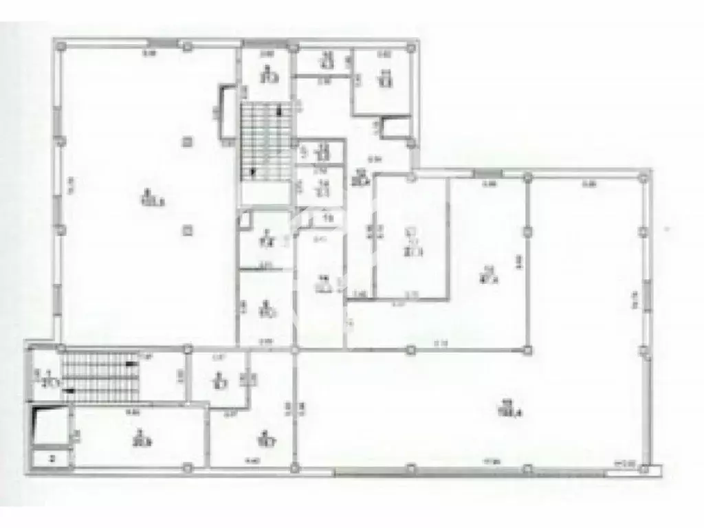
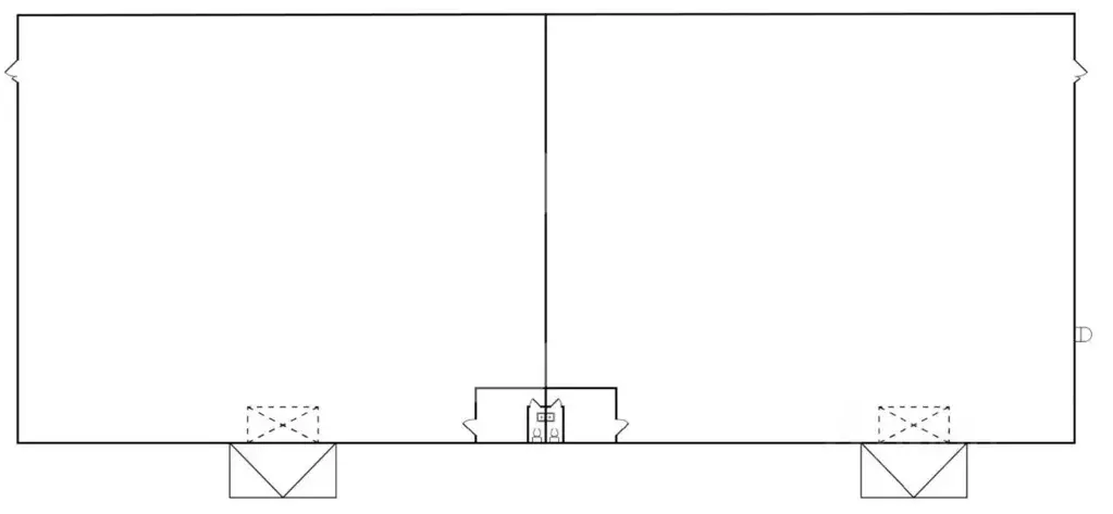
Продается отдельно стоящее двухэтажное здание общей площадью 300 кв. м в центральной части города. Объект обладает высокой функциональностью и готов к использованию под широкий спектр бизнес-направлений: от ресторана, пекарни или медицинской клиники до офисного центра или частной школы. Ключевым преимуществом являются три независимые входные группы с улицы Ленина, обеспечивающие отдельный доступ клиентов, персонала и зоны погрузки, что оптимизирует логистику и повышает коммерческий потенциал. На первом этаже реализована свободная планировка, ранее использовавшаяся под кафе-пекарню, и уже оборудованы необходимые инженерные системы, включая вытяжку и вентиляцию. Второй этаж имеет кабинетную планировку, идеально подходящую для административных, образовательных или медицинских функций, и также обладает собственным входом с главной улицы. Такая конфигурация позволяет эффективно зонировать бизнес-процессы или сдавать пространства разным арендаторам. Центральное расположение гарантирует отличную транспортную доступность, высокий пешеходный трафик и развитую инфраструктуру района. Здание находится в хорошем состоянии и не требует масштабных вложений, предлагая возможность для быстрого запуска проекта. Это решение для инвестора или предпринимателя, ищущего готовое, многофункциональное помещение с отличной локацией и продуманной организацией пространства. Код пользователя: 69543Номер в базе:

Читать полностью
    Позвонить Написать
    80 000 000 Р1 036 400 $ или 872 300
    Агент
    +7 (982) 340-85-16
    Начать чат с агентом
    Похожие предложения
    Помещение свободного назначения в Пермский край, Пермь Пушкарская ул., ... - Фото 1
    Помещение свободного назначения в Пермский край, Пермь Пушкарская ул., ... - Фото 2
    В продаже помещение со стояночными местами площадью 1306,9 квм в здании Автопаркинга Пушка по адресу Пушкарская, 55 (мкр Садовый, Мотовилихинский район).Помещение без отделки, не отапливаемое, имеется электричество. Стояночных мест 48 шт. Два отдельных...
    • 2/3 эт.
    79 000 000 Р
    Агент
    +7 (982) Показать номер
    Посмотреть контакты
    Помещение свободного назначения (300 м) - Фото 1
    Помещение свободного назначения (300 м) - Фото 2
    Продается отдельно стоящее двухэтажное здание общей площадью 300 кв. м в центральной части города. Объект обладает высокой функциональностью и готов к использованию под широкий спектр бизнес-направлений: от ресторана, пекарни или медицинской клиники до...
    • 1/3 эт.
    80 000 000 Р
    Агент
    +7 (909) Показать номер
    Посмотреть контакты
    Помещение свободного назначения в Московская область, Красногорск ... - Фото 1
    Помещение свободного назначения в Московская область, Красногорск ... - Фото 2
    1074539-gab . Предлагаем к приобретению помещение свободного назначения формата street-retail в ЖК Квартал Строгино с арендатором кофейня Здрасте , площадью 100.57 кв. м, расположенное на первом этаже 24-этажного жилого дома. Без комиссии для покупателя....
    • 1/24 эт.
    79 000 000 Р
    Агент
    +7 (938) Показать номер
    Посмотреть контакты
    Помещение свободного назначения в Московская область, Лыткарино 3-й ... - Фото 1
    Помещение свободного назначения в Московская область, Лыткарино 3-й ... - Фото 2
    642933-gab . Предлагаем отдельно стоящее торговое здание с якорным арендатором - супермаркетом Пятёрочка , площадью 750 кв. м. Без комиссии для покупателя.Преимущества объекта:-15 минут на автомобиле от станции метро Котельники;-объект отлично просматривается,...
    • 1/2 эт.
    80 000 000 Р
    Агент
    +7 (938) Показать номер
    Посмотреть контакты
    Помещение свободного назначения в Московская область, Солнечногорск ... - Фото 1
    Помещение свободного назначения в Московская область, Солнечногорск ... - Фото 2
    1119257-wf . Предалается складское помещение общей площадью 553 кв. м. в индустриальном парке Есипово-4. Корпус: F.Преимущества:32 км. от МКАД по Ленинградскому шоссе, вблизи трассы А-107 и ЦКАД. Комплекс складских помещений. Развитая транспортная инфраструктура....
    • 1/2 эт.
    80 185 000 Р
    Агент
    +7 (938) Показать номер
    Посмотреть контакты

    Не нашли подходящего объявления?

    Оставьте заявку, и наши риэлторы подберут псн в районе Перми

    (0)