10 000 000 Р 124 100 $ или 106 700

Информация об помещении

2
Этаж

Состояние и оснащение

Количество этажей
6
Развернуть
Агент
+7 (912) 780-13-86
Начать чат с агентом

Торговая площадь (100 м)

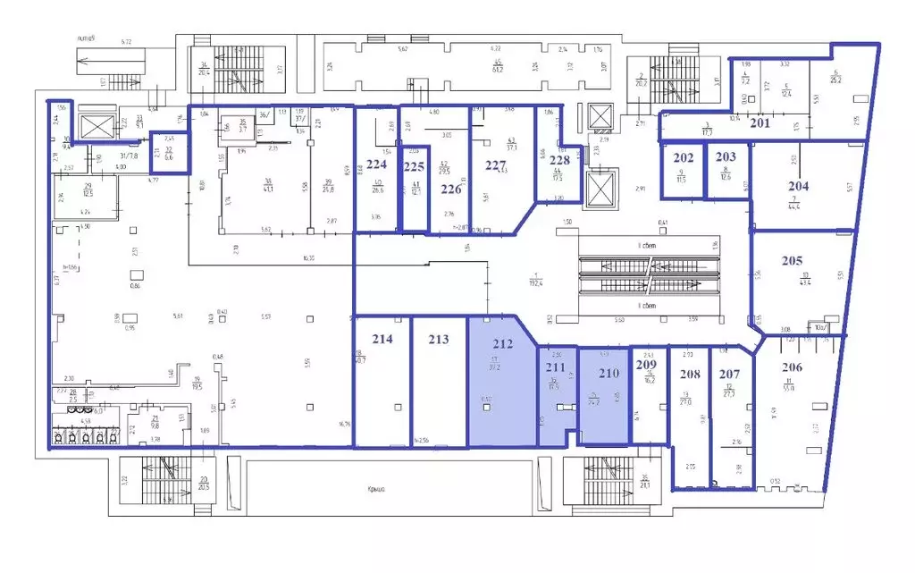
Продается торгово-офисноепомещение на 2 этаже ТРЦ Облака в центре города.Подходит как для открытия собственного бизнеса, так и в качестве инвестиции для сдачи в аренду.Преимущества помещения:ПанорамноеостеклениеВидна ул. Ленина. Удачное расположение — прямо напротив выхода с эскалатораХорошая видимость отделовВентиляцияКондиционированиеПреимущества локации:ПерваялинияЦентральнаяулицагородаЕжедневная посещаемость ТРЦ -более 3000 человекИнтенсивный пешеходный и автомобильный трафикТранспортная доступностьЗвоните. Ответим на Ваши вопросы и организуем показ в удобное для Вас время.Номер объекта: 5/714956/9738

Читать полностью
    Позвонить Написать
    10 000 000 Р124 100 $ или 106 700
    Агент
    +7 (912) 780-13-86
    Начать чат с агентом
    Похожие предложения в Перми
    Торговая площадь в Пермский край, Пермь ул. Ленина, 88 (100 м) - Фото 1
    Торговая площадь в Пермский край, Пермь ул. Ленина, 88 (100 м) - Фото 2
    Продается торгово-офисное помещение на 2 этаже ТРЦ Облака в центре города. Подходит как для открытия собственного бизнеса, так и в качестве инвестиции для сдачи в аренду.Преимущества помещения:Панорамное остеклениеВид на ул. Ленина. Удачное расположение...
    • 2/6 эт.
    10 800 000 Р
    Агент
    +7 (919) Показать номер
    Посмотреть контакты
    Торговая площадь в Пермский край, Пермь ул. Ленина, 88 (100 м) - Фото 1
    Торговая площадь в Пермский край, Пермь ул. Ленина, 88 (100 м) - Фото 2
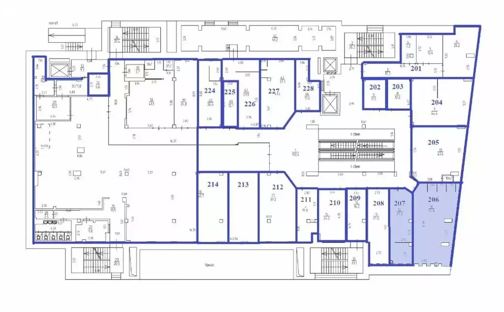
    Продаются три торгово-офисных помещения и доля в помещении Чижика на 2 этаже ТРЦ Облака в центре города. Все помещения с арендаторами. Подходит в качестве инвестиции для сдачи в аренду. Помещения без окон. Расположены на пути покупателей к Чижику...
    • 2/6 эт.
    10 800 000 Р
    Агент
    +7 (919) Показать номер
    Посмотреть контакты
    Торговая площадь в Пермский край, Пермь ул. Ленина, 88 (100 м) - Фото 1
    Торговая площадь в Пермский край, Пермь ул. Ленина, 88 (100 м) - Фото 2
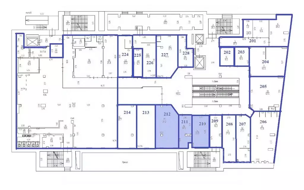
    Продаются два торгово-офисных помещения и доля в помещении Чижика на 2 этаже ТРЦ Облака в центре города. Все помещения с арендаторами. Подходит в качестве инвестиции для сдачи в аренду. Одно помещение с окнами на ул. Ленина. Вход напротив эскалатора.Преимущества...
    • 2/6 эт.
    10 200 000 Р
    Агент
    +7 (919) Показать номер
    Посмотреть контакты
    Торговая площадь (100 м) - Фото 1
    Торговая площадь (100 м) - Фото 2
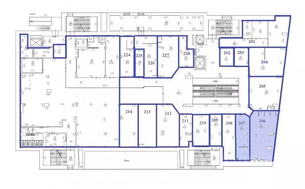
    Продаются три торгово-офисныхпомещения и доля в помещении «Чижика на 2 этаже ТРЦ«Облака в центре города. Все помещения с арендаторами. Подходитв качестве инвестиции для сдачи в аренду. Помещения без окон.Расположены на пути покупателей к «Чижику .Преимущества...
    • 2/6 эт.
    10 800 000 Р
    Агент
    +7 (912) Показать номер
    Посмотреть контакты
    Торговая площадь (100 м) - Фото 1
    Торговая площадь (100 м) - Фото 2
    Продаются дваторгово-офисныхпомещения и доля в помещении «Чижика на 2 этаже ТРЦ «Облака в центре города. Все помещения с арендаторами. Подходитв качестве инвестиции для сдачи в аренду. Одно помещениес окнами на ул. Ленина. Вход напротив эскалатора.Преимущества...
    • 2/6 эт.
    10 200 000 Р
    Агент
    +7 (912) Показать номер
    Посмотреть контакты

    Не нашли подходящего объявления?

    Оставьте заявку, и наши риэлторы подберут торговое помещение в районе Перми

    (0)