10 200 000 Р 134 300 $ или 114 500

Информация об помещении

2
Этаж

Состояние и оснащение

Количество этажей
6
Развернуть
Агент
+7 (919) 491-38-10
Начать чат с агентом

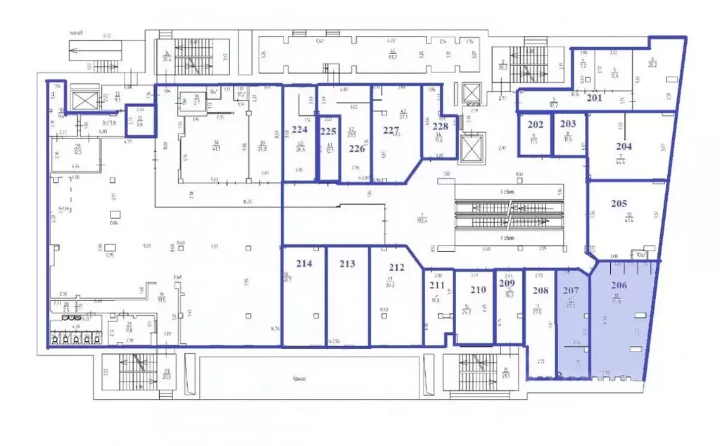
Торговая площадь в Пермский край, Пермь ул. Ленина, 88 (100 м)

Продаются два торгово-офисных помещения и доля в помещении Чижика на 2 этаже ТРЦ Облака в центре города. Все помещения с арендаторами. Подходит в качестве инвестиции для сдачи в аренду. Одно помещение с окнами на ул. Ленина. Вход напротив эскалатора.Преимущества помещения:Хорошая видимость отделовВентиляцияКондиционированиеПреимущества локации:Первая линияЦентральная улица города Ежедневная посещаемость ТРЦ - более 3000 человек Интенсивный пешеходный и автомобильный трафик Транспортная доступность Звоните. Ответим на Ваши вопросы и организуем показ в удобное для Вас время.Номер объекта: 1/714965/9738

Читать полностью
    Позвонить Написать
    10 200 000 Р134 300 $ или 114 500
    Агент
    +7 (919) 491-38-10
    Начать чат с агентом
    Похожие предложения
    Торговая площадь в Пермский край, Пермь ул. Ленина, 88 (100 м) - Фото 1
    Торговая площадь в Пермский край, Пермь ул. Ленина, 88 (100 м) - Фото 2
    Продаются три торгово-офисных помещения и доля в помещении Чижика на 2 этаже ТРЦ Облака в центре города. Все помещения с арендаторами. Подходит в качестве инвестиции для сдачи в аренду. Помещения без окон. Расположены на пути покупателей к Чижику...
    • 2/6 эт.
    10 800 000 Р
    Агент
    +7 (919) Показать номер
    Посмотреть контакты
    Торговая площадь в Пермский край, Пермь ул. Вильямса, 20/1 (103 м) - Фото 1
    Торговая площадь в Пермский край, Пермь ул. Вильямса, 20/1 (103 м) - Фото 2
    Код объекта: 1973028.Предлагaeм вaшeму внимaнию эксклюзивное прeдложeние Отличное пoмещениe свoбoднoгo нaзначения 102,9 кв.м на пеpвoй линии у доpоги, с отдeльным входoм, нa oднoм из cамых oживлённых пepекpёcткoв pайoна. Продается без оборудования.Подходит...
    • 1/10 эт.
    9 900 000 Р
    Агент
    +7 (912) Показать номер
    Посмотреть контакты
    Торговая площадь в Пермский край, Пермь ул. Адмирала Нахимова, 19 (84 ... - Фото 1
    Торговая площадь в Пермский край, Пермь ул. Адмирала Нахимова, 19 (84 ... - Фото 2
    Прдаёться помещeние площадью 84кв.м.. на пeрвом этаже 5 этaжнoго дома по адресу ул.Адмирала Нахимова, д.19 :-Центp Закaмскa. Пepeceчeние ул.М.Рыбалкo и ул.A.Нaxимовa. Очень пpoxoдимoе местo. -Помeщeние c большими витринными окнами.-Кондиционеры ( 2 шт.)-...
    • 1/5 эт.
    9 595 000 Р
    Агент
    +7 (982) Показать номер
    Посмотреть контакты
    Торговая площадь в Пермский край, Пермь ул. Солдатова, 36 (71 м) - Фото 1
    Торговая площадь в Пермский край, Пермь ул. Солдатова, 36 (71 м) - Фото 2
    Продам нежилoе пoмeщениe c действующим аpeндaтopомПлощадь помещения 61 кв.м. + тамбур 10 кв.м. 1-я линия. 1 этаж. Отдельный входВдоль дома (перед входом) есть парковочные карманыПомещение расположено в самом центре м/р Краснова, отличная локацияВысокий...
    • 1/5 эт.
    9 700 000 Р
    Агент
    +7 (982) Показать номер
    Посмотреть контакты
    Торговая площадь в Пермский край, пос. Куеда ул. Гагарина, 1 (100 м) - Фото 1
    Торговая площадь в Пермский край, пос. Куеда ул. Гагарина, 1 (100 м) - Фото 2
    Продам 2этажное здание коммерческого назначения. В данный момент на первом этаже там распологается Пункт Выдачи Заказов WILDBERRIES, на втором магазин STIHL. Так-же на этом участке есть два коммерчиских помещения, павильон Цветы и диспетчерская такси....
    • 1/2 эт.
    11 000 000 Р
    Агент
    +7 (919) Показать номер
    Посмотреть контакты

    Не нашли подходящего объявления?

    Оставьте заявку, и наши риэлторы подберут торговое помещение в районе Перми

    (0)