20 956 Р 277 $ или 237

Информация о помещении и здании

3
Этаж
3
Этажность
Развернуть
Агент
+7 (919) 481-52-59
Начать чат с агентом

Офис в Пермский край, Пермь Деревообделочная ул., 6А (40 м)

Арт.Сдается офисное помещение в г. ПермьАдрес: ул. Деревообделочная, 6аПлощадь: 40.3 мСтоимость: указана за весь офис (не включая коммунальные услуги)Описание:Идеально подходит для небольшого офиса или представительства.На территории базы есть парковочные места — удобно для клиентов и сотрудников.Помимо этого, на территории расположены офисные помещения площадью от 10,4 м до 1100 м — выбирайте подходящий вариант Условия:В арендную стоимость не включены коммунальные услуги.Есть складские помещения большой площадью.Возможна аренда целого офиса или отдельных помещений.Готовы ответить на все вопросы — пишите или звоните

Читать полностью
    Позвонить Написать
    20 956 Р277 $ или 237
    Агент
    +7 (919) 481-52-59
    Начать чат с агентом
    Похожие предложения
    Офис в Пермский край, Пермь Пушкарская ул., 51 (23 м) - Фото 1
    Офис в Пермский край, Пермь Пушкарская ул., 51 (23 м) - Фото 2
    1-й этаж, всего 3 этажа

    Сдаётся офисное помещение, с 1 мая, оплата 20000 плюс свет, в районе 1500р. Помещение освободят арендаторы до 30 апреля. Все вопросы по телефону, звоните.
    • 1/3 эт.
    20 000 Р
    Агент
    +7 (919) Показать номер
    Посмотреть контакты
    Офис в Пермский край, Верещагино Октябрьская ул., 68 (29 м) - Фото 1
    1-й этаж, всего 5 этажей

    Сдается в аренду помещение свободного назначения на 1 этаже жилого дома.Характеристики: • Площадь: 28,7 м (два смежных кабинета 19,6 и 9.1 кв.м) • 1 этаж, удобный вход • Хорошая видимость с улицы • Подходит под:офис, салон красоты, кабинет услуг, магазин,...
    • 1/5 эт.
    21 525 Р
    Агент
    +7 (919) Показать номер
    Посмотреть контакты
    Офис в Крым, Симферополь ул. Гагарина, 14А (21 м) - Фото 1
    Офис в Крым, Симферополь ул. Гагарина, 14А (21 м) - Фото 2
    3-й этаж, всего 6 этажей

    Объект 2693. Сдается в долгосрочную аренду офисное помещение под различные виды деятельности (парикмах., салон красоты, турфирма, учеб.цели, бизнес-центр, оф. здание). С/у на этаже, видеонаблюдение, пож. Сигнализация. Площадь 21 кв.м. 3 этаж из 6 этажей....
    • 3/6 эт.
    20 000 Р
    Агент
    +7 (918) Показать номер
    Посмотреть контакты
    Офис в Татарстан, Казань ул. Журналистов, 27 (20 м) - Фото 1
    Офис в Татарстан, Казань ул. Журналистов, 27 (20 м) - Фото 2
    3-й этаж, всего 3 этажа

    Сдается офисные помещенияНаходятся в офисном здании на ул Журналистов на первой линииХарактеристики:находятся на 3 этажесделан ремонтплощадь 20, 40, 10 мдоступ 24/7Рядом остановки общественного транспортаАрт.
    • 3/3 эт.
    20 000 Р
    Агент
    +7 (987) Показать номер
    Посмотреть контакты
    Сдается офис (B+) в бизнес-центре «9 Акров» - Фото 1
    Сдается офис (B+) в бизнес-центре «9 Акров» - Фото 2
    Сдается офис (B+) в бизнес-центре «9 Акров» - Фото 3
    Сдается офис (B+) в бизнес-центре «9 Акров» - Фото 4
    Сдается офис (B+) в бизнес-центре «9 Акров» - Фото 5
    Сдается офис (B+) в бизнес-центре «9 Акров» - Фото 6
    Сдается офис (B+) в бизнес-центре «9 Акров» - Фото 7
    Сдается офис (B+) в бизнес-центре «9 Акров» - Фото 8
    Сдается офис (B+) в бизнес-центре «9 Акров» - Фото 9
    Сдается офис (B+) в бизнес-центре «9 Акров» - Фото 10
    Сдается офис (B+) в бизнес-центре «9 Акров» - Фото 11
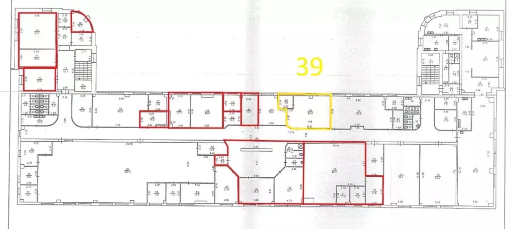
    реализуемая площадь 215.3м², 3-й этаж, всего 10 этажей, коридорно-кабинетная планировка

    Сдается в аренду офисное помещение, расположенное на 3-м этаже БЦ "9 акров" по адресу: Научный проезд д. 19. Площадь - 215,3 кв. м. Планировка open space (свободная планировка) + кабинет руководителя, серверная комната, кухня, женские и мужские туалетные...
    • 215.3 м²
    • B+
    • 3/10 эт.
    • парковка
    360 000 Р /в месяц
    Агент
    +7 (939) Показать номер
    Посмотреть контакты

    Не нашли подходящего объявления?

    Оставьте заявку, и наши риэлторы подберут офис в районе Перми

    (0)