1 160 000 Р 15 070 $ или 12 890

Информация о помещении и здании

1
Этаж
4
Этажность
Развернуть
Агент
+7 (909) 729-61-08
Начать чат с агентом

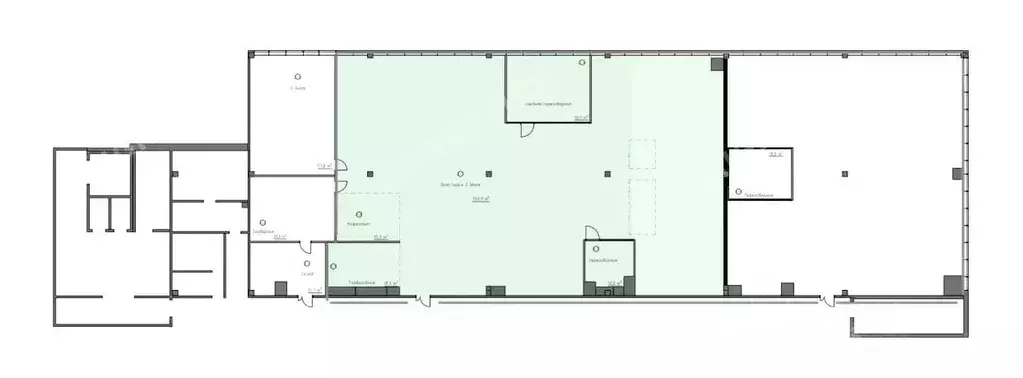
Офис (725.2 м)

Сдаётся в аренду новое административно-офисное здание в центре города по адресу: ул. Пушкина, д. 1/1. Общая площадь составляет 725 кв. м.Здание предлагает удобную транспортную и пешеходную доступность. Объект выполнен с современным ремонтом и имеет 4 этажа + цокольный уровень. Внутри вас встретит стильный ресепшн, переговорные комнаты и индивидуальная мебель. На каждом этаже расположены санузлы. В цоколе обустроено просторное помещение с кухней и зоной отдыха, а на четвёртом этаже — лаунж-зона.Инфраструктура включает системы кондиционирования и вентиляции. Территория огорожена и охраняется. Для вашего транспорта предусмотрена парковка на 14 мест и зарядное устройство для электротранспорта. Код пользователя: 199291Номер в базе:

Читать полностью
    Позвонить Написать
    1 160 000 Р15 070 $ или 12 890
    Агент
    +7 (909) 729-61-08
    Начать чат с агентом
    Похожие предложения
    Офис в Пермский край, Пермь ул. Пушкина, 1 (725 м) - Фото 1
    Офис в Пермский край, Пермь ул. Пушкина, 1 (725 м) - Фото 2
    1-й этаж, всего 4 этажа

    Продаётся современное офисное здание с полной инфраструктурой для комфортной и безопасной работы. Объект оснащён автономными инженерными системами: электричество 160 кВт от собственной линии, прямое подключение воды к городской сети, газовая котельная...
    • 1/4 эт.
    1 160 000 Р
    Агент
    +7 (912) Показать номер
    Посмотреть контакты
    Офис в Москва 1-й Рижский пер., 2Г (620 м) - Фото 1
    Офис в Москва 1-й Рижский пер., 2Г (620 м) - Фото 2
    2-й этаж, всего 6 этажей

    Бизнес-центр в 1-м Рижском переулке, 2Г современный офис в центре деловой жизни Москвы ОБЪЯВЛЕНИЕ ОТ СОБСТВЕННИКАИщете пространство для успешного бизнеса? У нас есть решение Бизнес-центр класса B, по адресу: Москва, 1-й Рижский переулок, 2Г, идеально...
    • 2/6 эт.
    1 240 000 Р
    Агент
    +7 (989) Показать номер
    Посмотреть контакты
    Офис в Хабаровский край, Хабаровск ул. Тургенева, 46 (1000 м) - Фото 1
    Офис в Хабаровский край, Хабаровск ул. Тургенева, 46 (1000 м) - Фото 2
    4-й этаж, всего 7 этажей

    ВАЖНО БЕЗ КОМИССИИ. Предложение от собственника.Звоните. Сообщения не читаем.Просторное помещение под любой вид деятельности с отельным входом , светлоес ремонтом. Доступ 24/7.Возможно частичная арендаОфисное помещение, в Центральном районе по улице:...
    • 4/7 эт.
    1 300 000 Р
    Агент
    +7 (914) Показать номер
    Посмотреть контакты
    Офис в Москва Верейская ул., 11 (312 м) - Фото 1
    Офис в Москва Верейская ул., 11 (312 м) - Фото 2
    2-й этаж, всего 6 этажей

    Офисное помещение 312 кв. м в бизнес-центре Квадрат .Округ: Западный (ЗАО). Район: Можайский. Ближайшие станции метро: Давыдково, Аминьевская. Характеристики:- Класс: A; - Арендопригодная площадь: 8300; - Код налоговой: 31; - Размер типового этажа: 2275;...
    • 2/6 эт.
    1 248 000 Р
    Агент
    +7 (915) Показать номер
    Посмотреть контакты
    Офис в Санкт-Петербург наб. Обводного Канала, 28 (551 м) - Фото 1
    Офис в Санкт-Петербург наб. Обводного Канала, 28 (551 м) - Фото 2
    2-й этаж, всего 3 этажа

    Офисное помещение 550.7 кв. м в бизнес-центре Обводный 28 .Район: Невский. Ближайшие станции метро: Обводный канал, Лиговский проспект. Характеристики:- Класс: B; - Арендопригодная площадь: 12300; - Код налоговой: 11; - Развозка: Утро/вечер; - Кол-во...
    • 2/3 эт.
    1 101 400 Р
    Агент
    +7 (981) Показать номер
    Посмотреть контакты

    Не нашли подходящего объявления?

    Оставьте заявку, и наши риэлторы подберут офис в районе Перми

    (0)