Реализация объекта недвижимости приостановлена

Информация об помещении

1
Этаж

Состояние и оснащение

Количество этажей
25
Развернуть

Помещение свободного назначения в Пермский край, Пермь Уинская ул., 43 ...

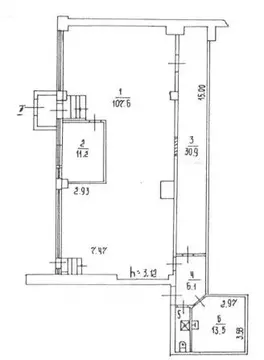
Предлагаем в аренду коммерческое помещение на улице Уинская 43 (жилой район Ива)Отлично подойдет под услуги/магазин/офис.Фасад и вход выходят на автодорогу.Первый этаж.Планировка свободная -277 м2Отдельный вход, есть дополнительный в торцаПотолки - 2,75Отличная коммерческая отделкаВ наличии - вентиляция, пожарная, охранная сигнализации.Ваш магазин/салон/офис расположен в густонаселенном районе и рядом с движением ваших потенциальных клиентов.100 метров до остановки общественного транспорта(Никаких других комиссий не берем) Код пользователя: 67474Номер в базе: 8515784

Читать полностью

    Реализация объекта недвижимости приостановлена

    Не нашли подходящего объявления?

    Оставьте заявку, и наши риэлторы подберут псн в районе Перми

    (0)