650 000 Р 8 350 $ или 7 180

Информация об помещении

4
Этаж

Состояние и оснащение

Количество этажей
4
Развернуть
Агент
+7 (912) 310-22-16
Начать чат с агентом

Помещение свободного назначения в Пермский край, Пермь ул. ...

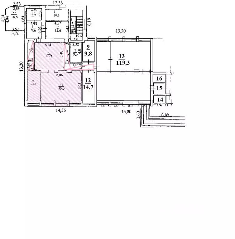
Cдается в аренду 4-этажное офисно-производственное здание в Индустриальном районе. Есть возможность организовать склады.Первый этаж идеально подойдет под пищевое производство, лабораторию. Имеется вытяжка. Помещения второго этажа подходят под пищевое производство. Ранее в помещениях производилось сыроварение. Имеются все необходимые коммуникации под общепит.Часть помещений третьего этажа идеально подойдет под спортзал, площадку для мероприятий, связанных с активным досугом. Также на этаже есть офисные помещения. Можно убрать перегородки и организовать open space.Четвертый этаж - теплое складское помещение. Удобные подъездные пути, парковка для грузового и легкового транспорта.Есть возможность организовать паркинг около здания. Имеется внутренняя парковка.Коммунальные услуги оплачиваются дополнительно. Арендатору могут быть предоставлены арендные каникулы на проведение ремонтных работ и подготовку к коммерческой деятельности.Звоните. Ответим на Ваши вопросы и организуем показ в удобное для Вас время.Номер объекта: 1/714909/9738

Читать полностью
    Позвонить Написать
    650 000 Р8 350 $ или 7 180
    Агент
    +7 (912) 310-22-16
    Начать чат с агентом
    Похожие предложения
    Помещение свободного назначения в Пермский край, Пермь ул. Ленина, 3 ... - Фото 1
    Помещение свободного назначения в Пермский край, Пермь ул. Ленина, 3 ... - Фото 2
    Сдается в аренду здание в центре города Идеальное место под офис крупной компании или под медицинский центр Можно также использовать под частную школу или школу дополнительного образования. Три этажа и цоколь. Внутри выполнена качественная отделка, есть...
    • 4/4 эт.
    650 000 Р
    Агент
    +7 (912) Показать номер
    Посмотреть контакты
    Помещение свободного назначения в Санкт-Петербург Ленинский просп., ... - Фото 1
    Помещение свободного назначения в Санкт-Петербург Ленинский просп., ... - Фото 2
    Помещение расположено в центре густонаселенного спального района, в суперпроходном месте, в шаге от ст. метро Ленинский проспект 1-й этаж, первая линия, 163м2, евростандарт, все городские коммуникации, 15кВт, высота потолков: 3м, отдельный вход (в процессе...
    • 1/1 эт.
    652 000 Р
    Агент
    +7 (981) Показать номер
    Посмотреть контакты
    Помещение свободного назначения в Иркутская область, Ангарск ул. ... - Фото 1
    Помещение свободного назначения в Иркутская область, Ангарск ул. ... - Фото 2
    Сдается производственное помещение:1 этаж- цех 750 кв.м, душевые и раздевалка 100 кв.м., кроме этого на этаже расположены -сан.узел, комната отдыха, токарная и слесарная мастерская, комната видеонаблюдения. В цехе есть кран-балка 10 тонн, вальцы, гильотина...
    • 2/2 эт.
    650 000 Р
    Агент
    +7 (914) Показать номер
    Посмотреть контакты
    Помещение свободного назначения в Санкт-Петербург 1-й Верхний пер., 10 ... - Фото 1
    Помещение свободного назначения в Санкт-Петербург 1-й Верхний пер., 10 ... - Фото 2
    Складской Комплекс в 1-м Верхнем переулке, находится недалеко от метро - Парнас, Гражданский проспект.Налоговая: 17. Лифты: Нет. Вентиляция: Естественная. Кондиционирование: Нет. Безопасность: Круглосуточный доступ, Контроль доступа, Система пожаротушений,...
    • 1/2 эт.
    650 000 Р
    Агент
    +7 (933) Показать номер
    Посмотреть контакты
    Помещение свободного назначения в Татарстан, Казань ул. Юлиуса Фучика, ... - Фото 1
    Помещение свободного назначения в Татарстан, Казань ул. Юлиуса Фучика, ... - Фото 2
    **Аренда коммерческой недвижимости**Сдается просторное торговое помещение общей площадью 500 * на втором этаже двухэтажного торгового центра в Советском районе Казани. Это отличное место для вашего бизнеса Особенности помещения:- Удобная **открытая планировка**...
    • 2/2 эт.
    650 000 Р
    Агент
    +7 (987) Показать номер
    Посмотреть контакты

    Не нашли подходящего объявления?

    Оставьте заявку, и наши риэлторы подберут псн в районе Перми

    (0)