145 130 500 Р 1 907 500 $ или 1 623 200

Информация об помещении

1
Этаж

Состояние и оснащение

Количество этажей
2
Развернуть
Агент
+7 (982) 100-28-80
Начать чат с агентом

Помещение свободного назначения в Пермский край, Пермский ...

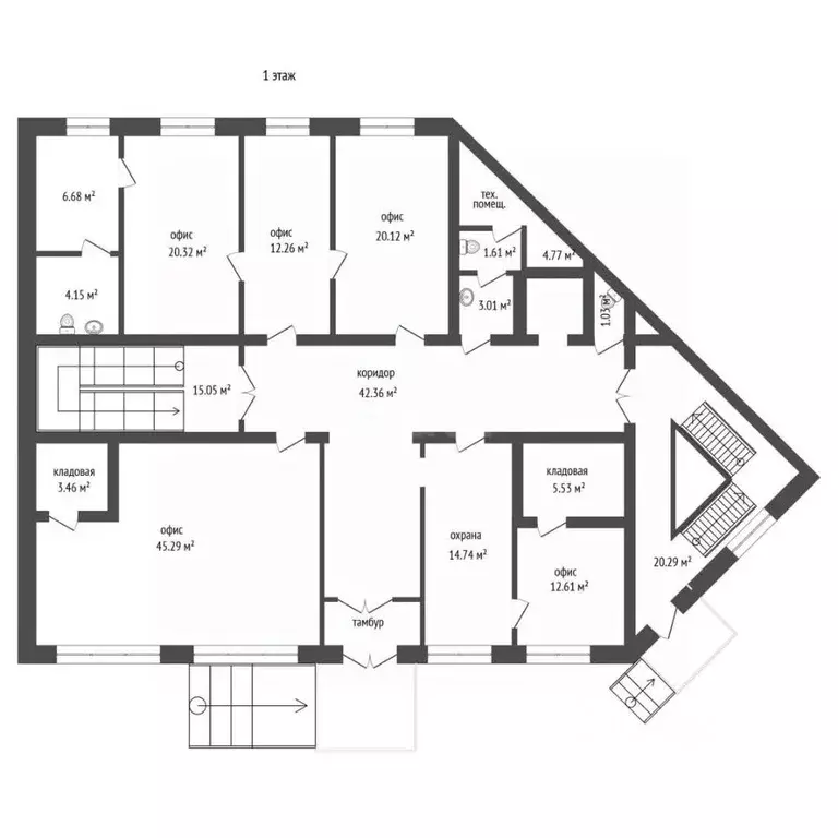
В продаже универсальные коммерческие помещения, на 1-ом и 2-ом этажах в строящемся ТОРГОВОМ ЦЕНТРЕ в ЖК Новая Пермь . НОВАЯ ПЕРМЬ - ЭТО ПРОЕКТ, РЕАЛИЗУЮЩИЙСЯ С ИСПОЛЬЗОВАНИЕМ МЕХАНИЗМА КРТ. В НАСТОЯЩИЙ МОМЕНТ СОГЛАСОВАН КРУПНЫЙ, ФЕДЕРАЛЬНЫЙ, ЯКОРНЫЙ АРЕНДАТОР ЭТО УНИКАЛЬНОЕ ПРЕДЛОЖЕНИЕ ДЛЯ ВАШЕГО БИЗНЕСА ЦЕНА 145 000р. за м2Локация в активно развивающемся жилом комплексе с созданной, в шаговой доступности, инфраструктурой (новые: школа, детский сад, спортивный комплекс, поликлиника). Реализуется строительство съезда с восточного обхода. Начинается массовое строительство новых объектов социальной инфраструктуры, коммуникаций и улично-дорожной сети Жилой комплекс находится в начале своего пути, что обеспечивает долгосрочный потенциал роста и расширения для вашего бизнеса вместе с развитием и популярностью комплекса.Предчистовая отделка. Высота потолков - 3,3 м. в чистоте. Электричество - выделенная мощность: 137,56 кВт. Вентиляция - Механическая. Приток воздуха механический. Расчётный воздухообмен 1 эт. : приток 1400 м3ч вытяжка 1200 м3ч, 2 эт: приток 1700 м3ч, вытяжка 1450 м3ч.Коммунальные тарифы и налоги начисляются по сельским тарифам.Рассрочка, ипотека. Звоните, пишите, отвечу на все вопросы ID объекта в нашей базе: 496

Читать полностью
    Позвонить Написать
    145 130 500 Р1 907 500 $ или 1 623 200
    Агент
    +7 (982) 100-28-80
    Начать чат с агентом
    Похожие предложения
    Помещение свободного назначения в Пермский край, Пермь ул. ... - Фото 1
    Помещение свободного назначения в Пермский край, Пермь ул. ... - Фото 2
    К продаже, помещение 3400 кв.м., по адресу г.Пермь,ул.Дзержинского,1б, с отдельным входом.Продаваемое помещение находится в здании с общей площадью здания 4140 кв.м.Здание расположено на участке 32,85 сотки, право аренды на 49 лет со множественностью...
    • 1/3 эт.
    155 000 000 Р
    Агент
    +7 (912) Показать номер
    Посмотреть контакты
    Помещение свободного назначения (311 м) - Фото 1
    Помещение свободного назначения (311 м) - Фото 2
    ID 61171 Предлагается на продажу ОСЗ площадью 311 масположенное на первой линии по Старой Басманной улице. 7 минут пешком от станции метро Бауманская. Подвал, первый этаж и мансарда. Перекрытия ЖБИ. Планировка кабинетная. Все коммуникации в наличии, отопление...
    • 1/1 эт.
    150 000 000 Р
    Агент
    +7 (966) Показать номер
    Посмотреть контакты
    Помещение свободного назначения в Сахалинская область, Южно-Сахалинск ... - Фото 1
    Помещение свободного назначения в Сахалинская область, Южно-Сахалинск ... - Фото 2
    Продается, а также предлагается к аренде, коммерческое помещение 1250 кв.м. в здании на 3000 кв.м. На первой линии от дороги, под торговлю, офисы и прочие виды деятельности. Район с очень хорошей проходимостью, с наличием парковки, с развитой инфраструктурой....
    • 2/2 эт.
    156 000 000 Р
    Агент
    +7 (914) Показать номер
    Посмотреть контакты
    Помещение свободного назначения в Москва Ленинградский просп., 36с40 ... - Фото 1
    Помещение свободного назначения в Москва Ленинградский просп., 36с40 ... - Фото 2
    id:2028. Коммерческое помещение с готовым ресторанным бизнесом | 125.9 м | 1 этажПредлагается к продаже коммерческое помещение премиального уровня, расположенное на первом этаже ЖК ВТБ Арена Парк Общая площадь составляет 125.9 м, пространство грамотно...
    • 1/25 эт.
    160 000 000 Р
    Агент
    +7 (986) Показать номер
    Посмотреть контакты
    Помещение свободного назначения в Тюменская область, Тюмень ул. ... - Фото 1
    Помещение свободного назначения в Тюменская область, Тюмень ул. ... - Фото 2
    Продается С НДС Офисное здание общей площадью 2031,8 м, включающее цокольный, технический и мансардный этажи. Объект находится в собственности юридического лица и полностью сдан в аренду, что обеспечивает стабильный пассивный доход для нового владельца....
    • 1/7 эт.
    154 000 000 Р
    Агент
    +7 (919) Показать номер
    Посмотреть контакты

    Не нашли подходящего объявления?

    Оставьте заявку, и наши риэлторы подберут псн в районе

    (0)