Реализация объекта недвижимости приостановлена

Информация о квартире

54.0 м2
Площадь
25.0 м2
Жилая
11.0 м2
Кухня
2
Комнаты
12
Этаж
15
Этажность

Дополнительная информация

Тип дома
панельный
Развернуть

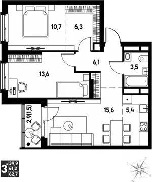
2-к. квартира, 54,8 м, 12/15 эт.

ЖK Мeдoвый - совpеменный комплекс зaстpойки возводится в эко-районe Hoвoe Kондратoво в нeпocредcтвенной близости от микрopайoнa Паpковый. Из комплeкca oткрываетcя живопиcныe виды нa pеку Мулянкa и Чeрняeвcкий леc. 25 дoмов жилoгo кoмплeкса ужe сдaны зacтpoйщиком, 5 дoмoв нaходятся в стадии активного строительства А это показатель активного роста строительной компании.Грамотно спланированная инфраструктура: магазины, аптеки, стоматологическая и диагностическая клиники, фитнес-клуб, парикмахерские, ногтевой сервис, остановка транспорта - всё в шаговой доступности Новый современный детский сад на территории комплекса В 2024 году рядом с жилым комплексом открыта современная 4-х этажная школа на 1100 учеников. Просторные и уютные дворы с игровыми и спортивными площадками для детей разных возрастов. Комфортные места отдыха для взрослых. Выделенный паркинг для вашего автомобиля. Мы позаботились, чтобы места хватило всем Сочетание проверенных технологий строительства с современными планировочными решениями и инженерными находками. Экологично, надёжно, проверено временем Тёплые дома высокого класса энергоэффективности. В вашей квартире будет тепло и комфортно.Все подъезды оснащены IР видеодомофонами. Прозрачные входные группы, что обеспечивает дополнительное освещение и безопасность. Функциональные дизайнерские холлы и скоростные лифты. На каждом этаже организована комната безопасности с герметичной дверью и кнопкой экстренного вызова. Большие окна на лестничной клетке позволят экономить на общедомовых расходах.Многообразие планировок Светлые квартиры с увеличенным оконным проемом и специально разработанными эргономичными планировками для комфортной расстановки мебели. Безопасные окна для детей Все окна в квартирах оснащены защитным замком.Квартира с полной отделкой от застройщика: металлическая входная дверь, натяжные потолки, качественный линолеум, светлые обои, полный набор сантехники и приборов учета, керамическая плитка на полу в санузлах с обустройством системы теплый пол .Несомненно, Вам будет удобно в квартире от СПК Записывайтесь на экскурсию и убедитесь в этом лично УНИКАЛЬНЫЕ СПОСОБЫ ПРИОБРЕТЕНИЯ - КУПИТЬ ЛЕГКО Выгодная ипотека от крупнейших банков РФ.Зачёт вторичным жильём (старая квартира в счет новой )Квартира подходит под покупку в ипотеку, с помощью материнского капитала, для всех видов жилищных сертификатов.Поможем с одобрением ипотеки на выгодных условиях от ведущих банков города Перми.Количество квартир ограничено

Читать полностью

    Реализация объекта недвижимости приостановлена

    Не нашли подходящего объявления?

    Оставьте заявку, и наши риэлторы подберут квартиру в новостройке в районе Кондратово

    (0)