Россия, Пермский край, Пермский район, Култаево, коттеджный посёлок Южный ветер
7 660 800 Р 96 080 $ или 81 880

Информация о квартире

60 м2
Площадь
3
Комнаты
4
Этаж
5
Этажность
Развернуть
Агент
+7 (984) 233-96-83
Начать чат с агентом

3-к кв. Пермский край, Пермский муниципальный округ, с. Култаево, ...

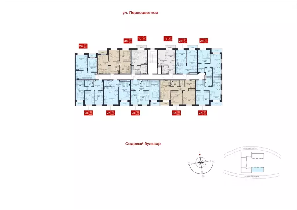
Продаётся 3-комнатная квартира в строящемся доме (Садовый, 73), срок сдачи: IV-кв. 2027, общей площадью 60.8 кв.м., на 4 этаже. Новый жилой комплекс Миниполис Култаево Парк от Специализированного застройщика Миниполис Култаево Паркасположен в с. Култаево по ул. Садовый бульвар.

Читать полностью
    Позвонить Написать
    7 660 800 Р96 080 $ или 81 880
    Агент
    +7 (984) 233-96-83
    Начать чат с агентом
    Похожие предложения
    3-к кв. Пермский край, Пермский муниципальный округ, с. Култаево, ... - Фото 1
    3-к кв. Пермский край, Пермский муниципальный округ, с. Култаево, ... - Фото 2
    3-комнатная квартира, общая площадь 62м²

    Продаётся 3-комнатная квартира в строящемся доме (Садовый, 73), срок сдачи: IV-кв. 2027, общей площадью 62 кв.м., на 3 этаже. Новый жилой комплекс Миниполис Култаево Парк от Специализированного застройщика Миниполис Култаево Паркасположен в с. Култаево...
    • 62 м²
    • 3-ком
    • 3/5 эт.
    7 688 000 Р
    Агент
    +7 (984) Показать номер
    Посмотреть контакты
    2-к кв. Пермский край, д. Кондратово ул. Водопроводная, 5 (48.9 м) - Фото 1
    2-к кв. Пермский край, д. Кондратово ул. Водопроводная, 5 (48.9 м) - Фото 2
    2-комнатная квартира, общая площадь 48м², жилая 22м², кухня 11м²

    Жилой дом QUATRO от ИНГРУПП - все преимущества городской жизни в зеленом микрорайоне, рядом с лесом и рекой.В QUATRO вас ждут:Безопасность: современные технологии строительства защитят приватность и спокойствие жильцов, а интеллектуальные системы умного...
    • 48 м²
    • 2-ком
    • 16/16 эт.
    7 674 000 Р
    Агент
    +7 (980) Показать номер
    Посмотреть контакты
    2-к кв. Пермский край, д. Кондратово ул. Водопроводная, 5 (48.8 м) - Фото 1
    2-к кв. Пермский край, д. Кондратово ул. Водопроводная, 5 (48.8 м) - Фото 2
    2-комнатная квартира, общая площадь 48м², жилая 22м², кухня 10м²

    Жилой дом QUATRO от ИНГРУПП - все преимущества городской жизни в зеленом микрорайоне, рядом с лесом и рекой.В QUATRO вас ждут:Безопасность: современные технологии строительства защитят приватность и спокойствие жильцов, а интеллектуальные системы умного...
    • 48 м²
    • 2-ком
    • 16/16 эт.
    7 710 000 Р
    Агент
    +7 (980) Показать номер
    Посмотреть контакты
    2-к кв. Пермский край, д. Кондратово ул. Н.М. Яблокова, 2 (49.77 м) - Фото 1
    2-к кв. Пермский край, д. Кондратово ул. Н.М. Яблокова, 2 (49.77 м) - Фото 2
    2-комнатная квартира, общая площадь 49м², жилая 27м², кухня 5м²

    ЖК Медовый - современный жилой комплекс в экологически чистом районе Новое Кондратово, всего в нескольких шагах от мкр. Парковый. Наслаждайтесь живописными видами на реку Мулянку и Черняевский лес прямо из своего окна Преимущества комплекса:Готовые и...
    • 49 м²
    • 2-ком
    • 12/15 эт.
    • панельный
    7 794 604 Р
    Агент
    +7 (977) Показать номер
    Посмотреть контакты
    2-к кв. Пермский край, д. Кондратово ул. Н.М. Яблокова, 2 (54.77 м) - Фото 1
    2-к кв. Пермский край, д. Кондратово ул. Н.М. Яблокова, 2 (54.77 м) - Фото 2
    2-комнатная квартира, общая площадь 54м², жилая 25м², кухня 11м²

    ЖК Медовый - современный жилой комплекс в экологически чистом районе Новое Кондратово, всего в нескольких шагах от мкр. Парковый. Наслаждайтесь живописными видами на реку Мулянку и Черняевский лес прямо из своего окна Преимущества комплекса:Готовые и...
    • 54 м²
    • 2-ком
    • 6/15 эт.
    • панельный
    7 646 577 Р
    Агент
    +7 (977) Показать номер
    Посмотреть контакты

    Не нашли подходящего объявления?

    Оставьте заявку, и наши риэлторы подберут квартиру в новостройке в районе Култаево

    (0)