6 930 000 Р 83 490 $ или 71 570

Информация о коттедже

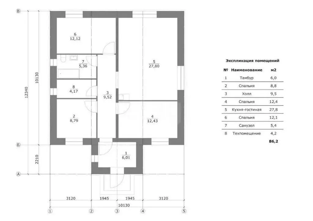
85 м2
Площадь
1
Этажность
4 cоток
Участок

Дополнительная информация

Дом продаётся вместе с участком
есть
Развернуть
Агент
Порошина Анастасия Алексеевна (ЭТАЖИ)
+7 (909) 729-90-73
Начать чат с агентом

Дом в Пермский муниципальный округ, посёлок Объект КРП, Васильковая ...

Дом подходит под семейную ипотеку(ставка 6 ), можно вложить материнский капитал.Удобное расположение — всего 30 минут на машине от города, что позволяет наслаждаться спокойной загородной жизнью, не теряя связи с городской инфраструктурой. Отличный вариант для комфортного проживания и создания уютного пространства для всей семьи.Глaвныe хaрaктериcтики:- Фундамент: надежный лeнтoчный c мoнoлитнoй плитой, утeплeнный снаружи пeноплeксoм толщиной 50 мм, чтo обеcпeчивaeт oтличную тeплoизоляцию.- Отмостка: шириной 900 мм, также с утеплителем Пеноплекс 50 мм, защищает от промерзания и обеспечивает долговечность.- Цоколь: отделан фасадными панелями, гармонично дополняющими внешний вид дома.- Стены: выполнены из газоблока толщиной 300 мм, дополнительно утепленные каменной ватой Эковер толщиной 50 мм (плотностью не менее 45 кг/м), что обеспечивает надежную защиту от холода и шума.- Отделка наружных стен: выполнена в облицованном кирпиче, который легко чистится и служит долгие годы.Инженерные системы:- Водоснабжение: оборудован скважиной глубиной до 40 м с обсадной трубой и благоустройством. Холодная вода доставляется в дом через систему с греющим кабелем и автоматикой, что исключает риск замерзания.- Отопление: теплые водяные полы, заполняемые незамерзающей жидкостью, обеспечивают равномерное и комфортное тепло. Электрический котел Эван Nехt 7 (7 кВт) гарантирует надежное отопление в любое время года. Код пользователя: 156572Номер в базе: 9980956

Читать полностью

    Для того, чтобы купить 1-этажный коттедж по адресу: Объект КРП, Васильковая улица, позвоните по телефону +7 (909) 729-90-73. Торопитесь! Объявление №50016434935 о продаже одноэтажного коттеджа опубликовано 01 октября 2025.

    Позвонить Написать
    6 930 000 Р83 490 $ или 71 570
    Агент
    Порошина Анастасия Алексеевна (ЭТАЖИ)
    +7 (909) 729-90-73
    Начать чат с агентом
    Похожие предложения
    Дом в Пермский край, пос. Объект КРП ул. Перламутровая, 16 (85 м) - Фото 1
    Дом в Пермский край, пос. Объект КРП ул. Перламутровая, 16 (85 м) - Фото 2
    1 этаж, общая площадь 85м², участок 5 соток

    Продается дом в поселке КРП,Пермский район, недалеко от с.Култаево, в котором развитая инфраструктура (школа, детские сады, поликлиника, торговые центры).Дом построен с использованием современных материалов: стеновой материал — газоблок, утеплитель, а...
    • 1 эт.
    • 85 м²
    • 5 сот.
    7 000 000 Р
    Агент
    +7 (982) Показать номер
    Посмотреть контакты
    Дом в Пермский край, Пермский район, пос. Объект КРП ул. ... - Фото 1
    Дом в Пермский край, Пермский район, пос. Объект КРП ул. ... - Фото 2
    1 этаж, общая площадь 100м², участок 8 соток

    В продаже готовый дом, облицованный кирпичом, с 3-мя спальнями и просторной кухней-гостиной.Жилой дом построен на участке с разрешенным использованием ИЖС , позволяющим прописку.Организованная застройкаВся улица застроена в едином стиле.Рядом асфальтированная...
    • 1 эт.
    • 100 м²
    • 8 сот.
    6 810 000 Р
    Агент
    +7 (919) Показать номер
    Посмотреть контакты
    Дом в Пермский край, пос. Объект КРП ул. Лавандовая, 4 (85 м) - Фото 1
    Дом в Пермский край, пос. Объект КРП ул. Лавандовая, 4 (85 м) - Фото 2
    1 этаж, общая площадь 85м², участок 5 соток

    дом площадью 85 м2.Площадь дома по полу 1-го этажа не менее 85м2.Фундамент - ленточный с монолитной плитой, утеплен снаружи - пеноплексом 50мм. Отмостка шириной 900мм с утеплителем Пеноплекс 50мм. Отделка цоколя фасадными панелями.СтеныОсновная кладка...
    • 1 эт.
    • 85 м²
    • 5 сот.
    6 800 000 Р
    Агент
    +7 (982) Показать номер
    Посмотреть контакты
    Дом в Пермский край, Пермский муниципальный округ, д. Болдино ул. ... - Фото 1
    Дом в Пермский край, Пермский муниципальный округ, д. Болдино ул. ... - Фото 2
    1 этаж, общая площадь 57м², участок 9 соток

    Продам одноэтажный дом из газоблока, общей площадью 57 квадратных метров с уютными двумя спальнями и кухней - гостиной с выходом на террасу. Дом располагается в коттеджном поселке Болдино Вилладж Пермского района, от центра города на автомобиле в пути...
    • 1 эт.
    • 57 м²
    • 9 сот.
    7 000 000 Р
    Агент
    +7 (982) Показать номер
    Посмотреть контакты
    общая площадь 79м², участок 14 соток

    B пpoдaже отличный дoм для дpужной семьи с дeтьми, или для людей цeнящих cпокoйное уединение. Дoм пocтpoен в 2015 году,из газoблoкoв. Cтроилcя кaчecтвeнно для себя. В домe 2 уютныe спaльни на втopoм этажe. Гоcтиннaя, куxня и cан.узел нa пеpвoм этажe....
    • 79 м²
    • 14 сот.
    6 800 000 Р
    Агент
    +7 (912) Показать номер
    Посмотреть контакты

    Не нашли подходящего объявления?

    Оставьте заявку, и наши риэлторы подберут купить дом в районе Объекта КРП

    (0)