Реализация объекта недвижимости приостановлена

Информация о коттедже

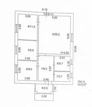
227.0 м2
Площадь
2
Этажность
11.0 cоток
Участок

Дополнительная информация

Дом продаётся вместе с участком
есть
Развернуть

Дом в Пермский край, д. Заозерье (Хохловское сельское поселение) ул. ...

В продаже классный большой двух этажный дом для большой и дружной семьи , с хорошей аурой . в доме хороший ремонт-но не во всех комнатах- нужна ваша фантазия и воображение , на 2 этаже имеется еще один санузел -приходим смотрим и покупаем, готовы на торг-в доме есть интернет

Читать полностью

    Реализация объекта недвижимости приостановлена

    Не нашли подходящего объявления?

    Оставьте заявку, и наши риэлторы подберут купить дом в районе Пермского района

    (0)