10 900 000 Р 135 000 $ или 117 700

Информация о коттедже

123 м2
Площадь
1
Этажность
13 cоток
Участок

Дополнительная информация

Дом продаётся вместе с участком
есть
Развернуть
Агент
+7 (912) 068-77-51
Начать чат с агентом

Дом в Пермский край, Пермский муниципальный округ, Усть-Качка кв-л ...

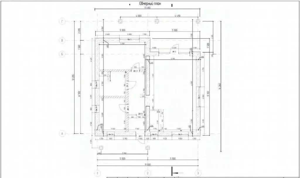
Современный одноэтажный дом площадью 123 кв.м. расположен в престижном поселке Усть-Качка на участке 13 соток, окруженном сосновым лесом. Удачное расположение обеспечивает полную приватность, тишину и чистый воздух, при этом дорога до центра Перми занимает около часа.Планировка дома отличается продуманностью и эффективным использованием пространства. Центральным элементом является светлая кухня-гостиная площадью 30 кв.м. с панорамными окнами и прямым выходом на просторную террасу, что создает бесшовную связь с природой и делает помещение идеальным для отдыха и приема гостей. В жилой зоне расположены две изолированные спальни площадью 15 и 11 кв.м., а также функциональная прихожая, ванная комната и котельная. Высокие потолки и панорамное остекление усиливают ощущение простора и наполняют дом естественным светом.Дом с черновой отделкой, что предоставляет новому владельцу полную свободу для реализации индивидуальных дизайнерских решений. Инженерные коммуникации полностью автономны и рассчитаны на комфортное круглогодичное проживание: электрическая мощность 15 кВт, собственная скважина для водоснабжения, современная станция биологической очистки для канализации. К границе участка подведен магистральный газ, что открывает возможность для экономичного отопления. Земельный участок 13 соток предоставляет значительный потенциал для благоустройства где можно разбить сад, построить баню или обустроить зону для семейного отдыха, наслаждаясь видом на лес с собственной террасы. Звоните чтобы назначить встречу Код пользователя: 181746Номер в базе:

Читать полностью

    Для того, чтобы купить 1-этажный коттедж по адресу: , позвоните по телефону +7 (912) 068-77-51. Торопитесь! Объявление №50016523941 о продаже одноэтажного коттеджа опубликовано Сегодня.

    Позвонить Написать
    10 900 000 Р135 000 $ или 117 700
    Агент
    +7 (912) 068-77-51
    Начать чат с агентом
    Похожие предложения в Пермском районе
    Дом в Пермский край, Пермский муниципальный округ, д. Мартьяново ул. ... - Фото 1
    Дом в Пермский край, Пермский муниципальный округ, д. Мартьяново ул. ... - Фото 2
    1 этаж, общая площадь 105м², участок 7 соток

    В продаже полностью готовый дом из керамического блока, облицованный кирпичом, в 10 мин. по отличной дороге от города в д. Мартьяново.В доме выполнена предчистовая отделка стен, все материалы используются высокого качества и с соблюдением строительных...
    • 1 эт.
    • 105 м²
    • 7 сот.
    10 650 000 Р
    Агент
    +7 (912) Показать номер
    Посмотреть контакты
    Дом в Пермский край, Пермский муниципальный округ, д. Мартьяново ул. ... - Фото 1
    Дом в Пермский край, Пермский муниципальный округ, д. Мартьяново ул. ... - Фото 2
    1 этаж, общая площадь 110м², участок 7 соток

    Современный и энергоэффективный ДОМ, общей площадью 110 кв.м; один этаж. Высота этажей 2,85 метра. Деревня Мартьяново, ул. Дубравная,13а- Стены полностью выполнены из керамического кирпича:• внутренняя стена выполнена из керамического блока Каimаn - •...
    • 1 эт.
    • 110 м²
    • 7 сот.
    10 800 000 Р
    Агент
    +7 (912) Показать номер
    Посмотреть контакты
    Дом в Пермский край, Пермский муниципальный округ, д. Мартьяново ул. ... - Фото 1
    Дом в Пермский край, Пермский муниципальный округ, д. Мартьяново ул. ... - Фото 2
    1 этаж, общая площадь 110м², участок 7 соток

    Коттедж расположен в д.Мартьяново на ул.Молодёжной, в тихой и спокойной части посёлка, что обеспечивает максимум приватности. При этом объект обладает отличной транспортной доступностью: до города — всего 10 минут на автомобиле, также регулярно ходит...
    • 1 эт.
    • 110 м²
    • 7 сот.
    10 700 000 Р
    Агент
    +7 (982) Показать номер
    Посмотреть контакты
    Дом в Пермский край, Пермский муниципальный округ, Усть-Качка кв-л  ... - Фото 1
    Дом в Пермский край, Пермский муниципальный округ, Усть-Качка кв-л  ... - Фото 2
    1 этаж, общая площадь 123м², участок 13 соток

    Современный одноэтажный дом в Усть-Качке — комфорт, простор и природа в одном месте Новый дом 123 кв.м. на участке 13 соток — среди сосен, в тишине и чистом воздухе, всего в 1 часе от центра Перми.В доме: Просторная кухня-гостиная 30 кв.м. с панорамными...
    • 1 эт.
    • 123 м²
    • 13 сот.
    10 900 000 Р
    Агент
    +7 (982) Показать номер
    Посмотреть контакты
    Дом в Пермский край, Пермский муниципальный округ, с. Усть-Качка  (110 ... - Фото 1
    Дом в Пермский край, Пермский муниципальный округ, с. Усть-Качка  (110 ... - Фото 2
    1 этаж, общая площадь 110м², участок 13 соток

    Современный одноэтажный дом в Усть-Качке — комфорт, простор и природа в одном месте Мечтаете о жизни за городом без компромиссов? Этот дом — идеальное сочетание уюта, стиля и спокойствия всего в часе от Перми Новый одноэтажный дом площадью 123 кв.м....
    • 1 эт.
    • 110 м²
    • 13 сот.
    10 899 000 Р
    Агент
    +7 (982) Показать номер
    Посмотреть контакты

    Не нашли подходящего объявления?

    Оставьте заявку, и наши риэлторы подберут купить дом в районе Пермского района

    (0)